HO
Bell View, St. Albans, AL4
By Hopcroft Property Experts
£ 475,000
Reviews
3 out of 5 stars
Hopcroft Property Experts says ..
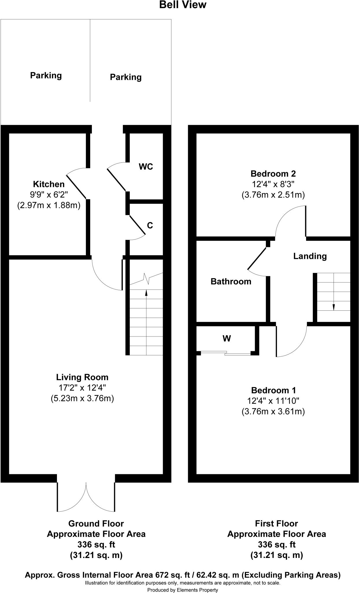
A well presented two double bedroom mid terrace family home with scope to extend, in a peaceful Cul de sac. Located in St Albans, AL4
Property Oracle says ..
Therefore, we give this property 7 / 10. *Disclaimer: This is our option and does constitute a recommendation or financial advice. Do your own research. *
- Price
- 7
- Condition
- 7
- Location
- 8
- Land
- 6
- Bedrooms
- 2
- Bathrooms
- 1
- Sqft (est)
- 513.93
The heatmap indicates the level of crime in the area. The color of the heatmap indicates the crime severity and recency.
Metrics Year-on-Year
- Average area value
- 445,205.00 £Decreased by 3.69 %
- Est sale value
- 331,484.85 £Increased by 20.34 %
- Average area rental value
- 1,836.00 £/moIncreased by 4.79 %
- Est letting value
- 1,027.86 £/moUnchanged by 0.00 %
- Est rental Yield
- 4.95 %Increased by 8.79 %
- Crime Rate
- 6.00 %Unchanged by 0.00 %
from 462,259.00 £
from 275,466.48 £
from 1,752.00 £/mo
from 1,027.86 £/mo
from 4.55 %
from 6.00 %
Agent Activity
Hopcroft Property Experts created the listing.
Nearby Schools
| Name | Type | Ofsted | Distance |
|---|---|---|---|
| Links Academy | Academy Alternative Provision Converter | Good | 0.35 KM |
| Beaumont School | Academy Converter | Outstanding | 0.63 KM |
| Oakwood Primary School | Community School | Outstanding | 0.87 KM |
| Nicholas Breakspear Catholic School | Academy Converter | Good | 0.93 KM |
| Oaklands College | Further Education | Requires improvement | 1.10 KM |
Images
Nearby Streets
| Name | Average Price | Average Sqft | Distance |
|---|---|---|---|
| Bramley Way | £ 0 | 0 | 0.00 KM |
| Cranwell Close | £ 0 | 0 | 0.00 KM |
| Ashley Road | £ 600,000 | 0 | 0.00 KM |
| Falcon Way | £ 0 | 0 | 0.00 KM |
| Merryfields | £ 0 | 0 | 0.00 KM |
Nearby Transport
| Name | NLC | TLC | Distance |
|---|---|---|---|
| St Albans City | 1548 | SAC | 3.40 KM |
| St Albans Abbey | 1562 | SAA | 5.09 KM |
| Park Street | 1561 | PKT | 5.53 KM |
| How Wood (Hertfordshire) | 1563 | HWW | 6.40 KM |
| Radlett | 1546 | RDT | 7.57 KM |
Nearby Listings
| Address | Price | Type | Score | Distance |
|---|---|---|---|---|
| Bell View, St. Albans, AL4 | £ 475,000 | BUY | 7 / 10 | 0.00 KM |
| Bell View, St. Albans | £ 600,000 | BUY | 6 / 10 | 0.09 KM |
| Bell View, St Albans | £ 650,000 | BUY | 7 / 10 | 0.09 KM |
| Cedarwood Drive, St. Albans, AL4 0DW | £ 500,000 | BUY | 6 / 10 | 0.12 KM |
| Cedarwood Drive, St. Albans, Hertfordshire, AL4 | £ 560,000 | BUY | 7 / 10 | 0.12 KM |
Nearby Properties
| Address | Price | Distance |
|---|---|---|
| 13 Bell View | £ 500,000 | 0.09 KM |
| 3 Bell View | £ 286,250 | 0.09 KM |
| 24 Bell View | £ 315,000 | 0.09 KM |
| 31 Bell View | £ 535,000 | 0.09 KM |
| 27 Bell View | £ 239,950 | 0.09 KM |