Abbeydale, Appley Bridge, Wigan
By Tracy Phillips Estates
£ 250,000
Reviews
3 out of 5 stars
Tracy Phillips Estates says ..
This well maintained three bedroom detached house isnestled on a sought after estate in the heart of Appley Bridge. Withscenic local walks on the doorstep, excellent transport links including AppleyBridge train station just five minutes away, and easy access to junction 27 ofthe M6, the location ...
Property Oracle says ..
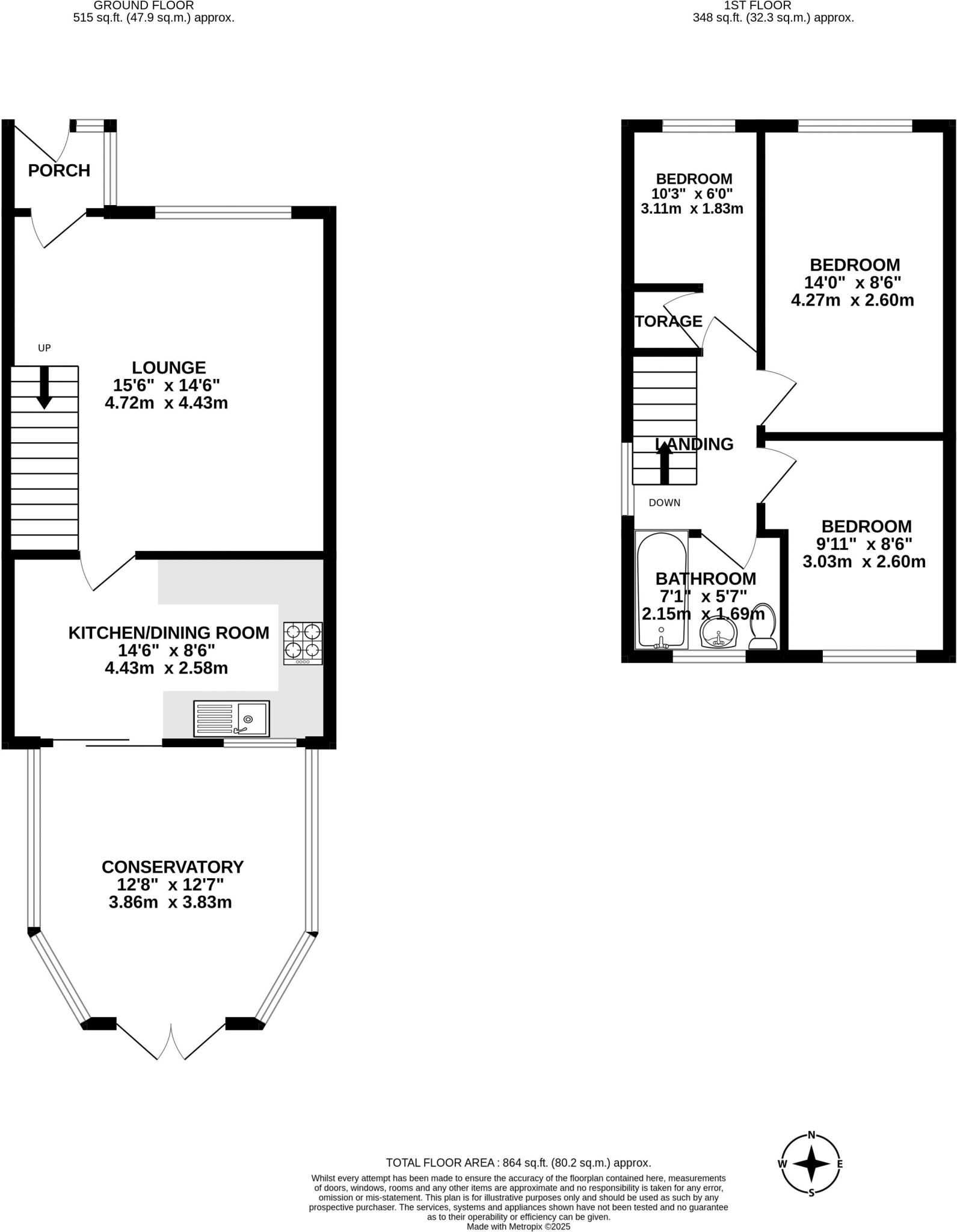
This is a detached property located in Appley Bridge, Wigan. It features three bedrooms and one bathroom. The property includes a garden with a shed and a conservatory. While the property is generally well-maintained, some areas, like the kitchen and bathroom, could use updating. The location is convenient, with nearby schools and transportation links. The asking price of £250,000 seems fair considering the property’s size and location, but potential buyers might factor in renovation costs.
Therefore, we give this property 6 / 10. *Disclaimer: This is our option and does constitute a recommendation or financial advice. Do your own research. *
- Price
- 7
- Condition
- 6
- Location
- 7
- Land
- 7
- Bedrooms
- 3
- Bathrooms
- 1
- Sqft (est)
- 863.27
The heatmap indicates the level of crime in the area. The color of the heatmap indicates the crime severity and recency.
Metrics Year-on-Year
- Average area value
- 270,000.00 £Increased by 5.95 %
- Est sale value
- 145,892.63 £Decreased by 28.99 %
- Average area rental value
- 1,038.00 £/moDecreased by 7.73 %
- Est letting value
- 0.00 £/moDecreased by 100.00 %
- Est rental Yield
- 4.61 %Decreased by 13.02 %
- Crime Rate
- 0.00 %
Agent Activity
Tracy Phillips Estates created the listing.
Nearby Schools
| Name | Type | Ofsted | Distance |
|---|---|---|---|
| Fir Tree Fishery Cic | Special Post 16 Institution | 0.71 KM | |
| Shevington Vale Primary School | Community School | Good | 0.96 KM |
| Shevington Sure Start Children'S Centre | Children's Centre Linked Site | 1.33 KM | |
| Appley Bridge All Saints Church Of England Primary School | Voluntary Aided School | Good | 1.84 KM |
| St Bernadette'S Catholic Primary School | Voluntary Aided School | Good | 2.57 KM |
Images
Nearby Streets
| Name | Average Price | Average Sqft | Distance |
|---|---|---|---|
| Herons Wharf | £ 0 | 0 | 0.00 KM |
| Stockley Drive | £ 0 | 0 | 0.00 KM |
| Glen Drive | £ 0 | 0 | 0.00 KM |
| Bank Road | £ 0 | 0 | 0.00 KM |
| The Oval | £ 195,000 | 0 | 0.00 KM |
Nearby Transport
| Name | NLC | TLC | Distance |
|---|---|---|---|
| Appley Bridge | 2396 | APB | 0.84 KM |
| Gathurst | 2397 | GST | 2.75 KM |
| Orrell | 2259 | ORR | 5.20 KM |
| Upholland | 2364 | UPL | 6.32 KM |
| Parbold | 2402 | PBL | 6.69 KM |
Nearby Listings
| Address | Price | Type | Score | Distance |
|---|---|---|---|---|
| Abbeydale, Appley Bridge, Wigan | £ 250,000 | BUY | 6 / 10 | 0.00 KM |
| Abbey Dale Appley Bridge Wigan WN6 9HX | £ 190,000 | BUY | 6 / 10 | 0.03 KM |
| Abbeydale, Appley Bridge, WN6 | £ 260,000 | BUY | 6 / 10 | 0.05 KM |
| Ash Close, Appley Bridge, WN6 | £ 220,000 | BUY | 6 / 10 | 0.11 KM |
| Chisacre Drive, Shevington, WN6 | £ 210,000 | BUY | 6 / 10 | 0.12 KM |
Nearby Properties
| Address | Price | Distance |
|---|---|---|
| 14 Abbey Dale | £ 166,077 | 0.01 KM |
| 31 Abbey Dale | £ 162,500 | 0.01 KM |
| 17 Abbey Dale | £ 166,000 | 0.01 KM |
| 15 Abbey Dale | £ 164,500 | 0.01 KM |
| 4 Abbey Dale | £ 130,000 | 0.01 KM |