Hunter French says ..
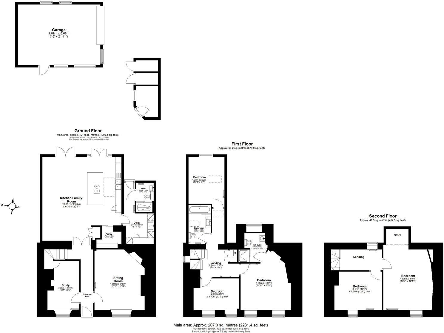
An outstanding end of terrace townhouse set in the heart of Wickwar which has been extended and modernised to an exceptionally high specification throughout to create an impressive five-bedroom home with three bathrooms. There is a generous garden, home office, off road parking and a gar...
Property Oracle says ..
This end-of-terrace property on High Street in Wickwar presents a blend of period charm and modern updates. The house features five bedrooms and three bathrooms, making it suitable for a large family. The modern kitchen and bathrooms enhance the property’s appeal, while the substantial garden provides ample outdoor space. The property includes a garage and additional parking, adding to its practicality. While the listing price is higher than the local average, the property’s size, condition, and features justify the premium.
Therefore, we give this property 7 / 10. *Disclaimer: This is our option and does constitute a recommendation or financial advice. Do your own research. *
- Price
- 6
- Condition
- 8
- Location
- 7
- Land
- 9
- Bedrooms
- 5
- Bathrooms
- 3
- Sqft (est)
- 2,231.36
The heatmap indicates the level of crime in the area. The color of the heatmap indicates the crime severity and recency.
Metrics Year-on-Year
- Average area value
- 434,167.00 £Decreased by 19.88 %
- Est sale value
- 1,305,345.60 £Increased by 71.05 %
- Average area rental value
- 1,367.00 £/moDecreased by 27.48 %
- Est letting value
- 2,231.36 £/moUnchanged by 0.00 %
- Est rental Yield
- 3.78 %Decreased by 9.35 %
- Crime Rate
- 46.00 %Unchanged by 0.00 %
Agent Activity
Hunter French created the listing.
Nearby Schools
| Name | Type | Ofsted | Distance |
|---|---|---|---|
| Alexander Hosea Primary School | Community School | Good | 0.38 KM |
| Charfield Primary School | Academy Sponsor Led | Outstanding | 3.91 KM |
| Kingswood Primary School | Community School | Good | 5.12 KM |
| Brimsham Green School | Community School | Good | 5.41 KM |
| St Andrew'S Church Of England Primary School, Cromhall | Voluntary Controlled School | Good | 5.51 KM |
Images
Nearby Streets
| Name | Average Price | Average Sqft | Distance |
|---|---|---|---|
| The Downs | £ 0 | 0 | 0.00 KM |
| Chase Lane | £ 695,000 | 0 | 0.00 KM |
| Station Road | £ 225,000 | 0 | 0.00 KM |
| Station Road | £ 0 | 0 | 0.00 KM |
Nearby Transport
| Name | NLC | TLC | Distance |
|---|---|---|---|
| Yate | 3380 | YAE | 6.92 KM |
Nearby Listings
| Address | Price | Type | Score | Distance |
|---|---|---|---|---|
| High Street, Wickwar | £ 899,950 | BUY | 7 / 10 | 0.00 KM |
| High Street, Wickwar, Wotton-under-Edge, Gloucestershire, GL12 | £ 850,000 | BUY | 5 / 10 | 0.02 KM |
| High Street, Wickwar, GL12 | £ 585,000 | BUY | 7 / 10 | 0.10 KM |
| High Street, Wickwar, Wotton-Under-Edge | £ 430,000 | BUY | 7 / 10 | 0.11 KM |
| High Street, Wickwar, Wotton-Under-Edge | £ 625,000 | BUY | 7 / 10 | 0.11 KM |
Nearby Properties
| Address | Price | Distance |
|---|---|---|
| The Coach House | £ 250,000 | 0.08 KM |
| 2 Back Lane | £ 240,000 | 0.08 KM |
| 12 Back Lane | £ 235,000 | 0.08 KM |
| Cotswold Lodge | £ 380,000 | 0.08 KM |
| 4 Back Lane | £ 48,000 | 0.08 KM |