Winkworth says ..
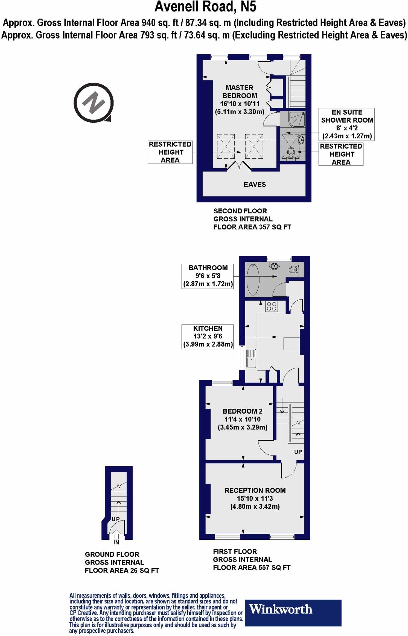
A stunning, two double bedrooms, two-bathroom, period conversion set across the first and second floor of this handsome Victorian building in Highbury, N5. Standing at an impressive 940 sqft, the property has been finished to the highest of standards whilst offering flexible accommodation should ...
Property Oracle says ..
This is a well-presented 2-bedroom apartment in a sought-after location in Highbury West, Islington. The property benefits from its proximity to good schools and transport links. The interior appears to be in good condition, with modern fixtures and fittings. While it’s an apartment and therefore has limited land, the location and condition make it an attractive property. The price is in line with the local market.
Therefore, we give this property 6 / 10. *Disclaimer: This is our option and does constitute a recommendation or financial advice. Do your own research. *
- Price
- 7
- Condition
- 8
- Location
- 8
- Land
- 3
- Bedrooms
- 2
- Bathrooms
- 2
- Sqft (est)
- 690.43
The heatmap indicates the level of crime in the area. The color of the heatmap indicates the crime severity and recency.
Metrics Year-on-Year
- Average area value
- 676,538.00 £Decreased by 22.00 %
- Est sale value
- 624,839.15 £Decreased by 5.83 %
- Average area rental value
- 2,530.00 £/moIncreased by 2.22 %
- Est letting value
- 2,071.29 £/moIncreased by 50.00 %
- Est rental Yield
- 4.49 %Increased by 31.29 %
- Crime Rate
- 2.00 %Unchanged by 0.00 %
Agent Activity
Winkworth created the listing.
Nearby Schools
| Name | Type | Ofsted | Distance |
|---|---|---|---|
| Ambler Primary School And Children'S Centre | Community School | Outstanding | 0.33 KM |
| St John'S Highbury Vale Cofe Primary School | Voluntary Aided School | Outstanding | 0.37 KM |
| Gillespie Primary School | Community School | Outstanding | 0.38 KM |
| Ambler Children'S Centre | Children's Centre | 0.38 KM | |
| Conewood Street Children'S Centre | Children's Centre | 0.42 KM |
Images
Nearby Streets
| Name | Average Price | Average Sqft | Distance |
|---|---|---|---|
| Vivian Comma Close | £ 0 | 0 | 0.00 KM |
| Ashburton Triangle | £ 0 | 0 | 0.00 KM |
| Citizen Road | £ 500,000 | 0 | 0.00 KM |
| Kings Crescent | £ 0 | 0 | 0.00 KM |
| Cornwallis Square | £ 250,000 | 0 | 0.00 KM |
Nearby Transport
| Name | NLC | TLC | Distance |
|---|---|---|---|
| Finsbury Park | 6119 | FPK | 0.56 KM |
| Drayton Park | 6000 | DYP | 0.85 KM |
| Highbury And Islington | 6009 | HHY | 1.55 KM |
| Canonbury | 1441 | CNN | 1.78 KM |
| Harringay | 6012 | HGY | 1.93 KM |
Nearby Listings
| Address | Price | Type | Score | Distance |
|---|---|---|---|---|
| Avenell Road, London, N5 | £ 750,000 | BUY | Unknown | 0.00 KM |
| Avenell Road, London, N5 | £ 725,000 | BUY | 6 / 10 | 0.00 KM |
| Avenell Road,, London, N5 | £ 1,750,000 | BUY | 7 / 10 | 0.01 KM |
| Avenell Road, London, N5 | £ 1,750,000 | BUY | 7 / 10 | 0.06 KM |
| Ambler Road, London, N4 | £ 1,850,000 | BUY | 8 / 10 | 0.09 KM |
Nearby Properties
| Address | Price | Distance |
|---|---|---|
| 36 Avenell Road | £ 475,000 | 0.05 KM |
| 3 Avenell Road | £ 600,000 | 0.05 KM |
| 2 Avenell Road | £ 1,135,000 | 0.05 KM |
| 9 Avenell Road | £ 347,000 | 0.05 KM |
| 24 Avenell Road | £ 1,080,000 | 0.05 KM |