Montague Road, Dalston, London, E8
By Property Inc
£ 550,000
Reviews
4 out of 5 stars
Property Inc says ..
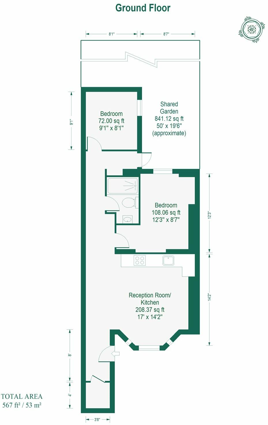
Nestled in the vibrant heart of Hackney Central, this charming Ground Floor flat is set on a peaceful residential street, just moments away from Hackney Downs and Hackney Central Overground Stations. This delightful home is part of a semi-detached period property and boasts private access along ...
Property Oracle says ..
This property is a beautifully refurbished two-bedroom flat located in Hackney Central, London. The flat boasts a private entrance, elegant wooden flooring, restored sash windows, and a garden. The location benefits from proximity to several Overground stations (Hackney Downs, Dalston Junction, Dalston Kingsland, and Hackney Central) and several well-regarded schools such as Mossbourne Community Academy and Mossbourne Parkside Academy. The average property price in the area is £545,333, with an average price per sqft of £665. While the provided listing does not specify the exact square footage, the list price of £550,000 appears to be in line with the average price for the area, considering the property’s apparent excellent condition and inclusion of a garden.
Therefore, we give this property 8 / 10. *Disclaimer: This is our option and does constitute a recommendation or financial advice. Do your own research. *
- Price
- 8
- Condition
- 9
- Location
- 9
- Land
- 8
- Bedrooms
- 2
- Bathrooms
- 1
- Sqft (est)
- 567.00
- Lot (est)
- 841.12
The heatmap indicates the level of crime in the area. The color of the heatmap indicates the crime severity and recency.
Metrics Year-on-Year
- Average area value
- 440,000.00 £Decreased by 31.24 %
- Est sale value
- 432,621.00 £Increased by 0.26 %
- Average area rental value
- 2,681.00 £/moIncreased by 3.51 %
- Est letting value
- 2,268.00 £/moIncreased by 33.33 %
- Est rental Yield
- 7.31 %Increased by 50.41 %
- Crime Rate
- 3.00 %Unchanged by 0.00 %
Agent Activity
Property Inc created the listing.
Nearby Schools
| Name | Type | Ofsted | Distance |
|---|---|---|---|
| Brook Satellite Children'S Centre | Children's Centre Linked Site | 0.46 KM | |
| Mossbourne Parkside Academy | Academy Converter | Good | 0.46 KM |
| Mossbourne Community Academy | Academy Sponsor Led | Outstanding | 0.62 KM |
| The Petchey Academy | Academy Sponsor Led | Good | 0.63 KM |
| Halley House School | Free Schools | Good | 0.70 KM |
Images
Nearby Streets
| Name | Average Price | Average Sqft | Distance |
|---|---|---|---|
| Blakeney Close | £ 0 | 0 | 0.00 KM |
| Foxley Close | £ 0 | 0 | 0.00 KM |
| Bridge Mews | £ 625,000 | 0 | 0.00 KM |
| Ritson Road | £ 1,516,667 | 0 | 0.00 KM |
| Electric Avenue | £ 0 | 0 | 0.00 KM |
Nearby Transport
| Name | NLC | TLC | Distance |
|---|---|---|---|
| Hackney Downs | 6867 | HAC | 0.64 KM |
| Dalston Junction | 1443 | DLJ | 1.02 KM |
| Dalston Kingsland | 1429 | DLK | 1.02 KM |
| Rectory Road | 6967 | REC | 1.03 KM |
| Hackney Central | 6977 | HKC | 1.19 KM |
Nearby Listings
| Address | Price | Type | Score | Distance |
|---|---|---|---|---|
| Montague Road, Dalston, London, E8 | £ 550,000 | BUY | Unknown | 0.00 KM |
| Montague Road, Dalston, London, E8 | £ 550,000 | BUY | 8 / 10 | 0.00 KM |
| Flat B, 43 Montague Road, Hackney, London, E8 2HN | £ 300,000 | BUY | Unknown | 0.01 KM |
| Montague Road, Hackney Downs | £ 525,000 | BUY | 8 / 10 | 0.06 KM |
| Flat A, 24 Montague Road, Hackney, London, E8 2HW | £ 575,000 | BUY | 6 / 10 | 0.07 KM |
Nearby Properties
| Address | Price | Distance |
|---|---|---|
| 23a Montague Road | £ 15,000 | 0.01 KM |
| 23b Montague Road | £ 50,000 | 0.01 KM |
| 13a Montague Road | £ 470,000 | 0.01 KM |
| 29b Montague Road | £ 940,000 | 0.01 KM |
| 17b Montague Road | £ 452,950 | 0.01 KM |