Avenue Road Extension, Leicester
BA

Avenue Road Extension, Leicester

By Barkers

£ 220,000

Reviews

3 out of 5 stars

Barkers says ..

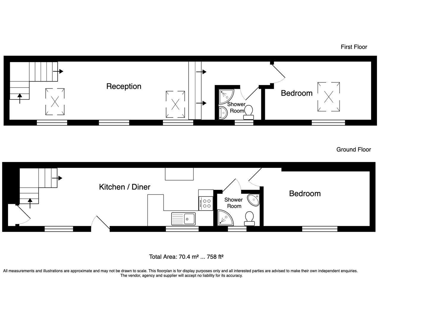
A rare opportunity to purchase this SPACIOUS TWO BEDROOM, TWO SHOWER ROOM house that is hidden away being set back from the road and with A GOOD COURTYARD SIZE GARDEN. GUIDE PRICE £220,000 to £230,000. The stylish accommodation is over two floors and briefly comprises of an open...

Property Oracle says ..

The property is a 2 bedroom, 1 bathroom terraced house located on Avenue Road Extension in Leicester. The property benefits from a rear garden. Based on the images provided the property appears to be in good condition and has recently been modernised. The kitchen and bathroom appear new. The property is located within easy reach of Leicester city centre and benefits from being close to Avenue Primary School (rated ‘Good’ by Ofsted). Transport links are also good with Leicester train station approximately 2km away. While the list price is below the average price for the area (£220,000 vs £302,231), the average price per sqft is considerably higher (£288 vs approximately £291 based on the list price). However, given that the property has recently been modernised and is situated in a convenient location, the list price appears reasonable. The nearby comparable properties support this conclusion, although the sqft data for these properties is missing, making an exact comparison difficult. The smaller plot size (758 sqft) compared to the area average (1047 sqft) may also contribute to the lower list price.

Therefore, we give this property 7 / 10. *Disclaimer: This is our option and does constitute a recommendation or financial advice. Do your own research. *

Price
7
Condition
8
Location
7
Land
6
Bedrooms
2
Bathrooms
1
Sqft (est)
758.00
Lot (est)
758.00

The heatmap indicates the level of crime in the area. The color of the heatmap indicates the crime severity and recency.

Metrics Year-on-Year

Average area value
273,747.00 £
Decreased by 7.23 %
from 295,097.00 £
Est sale value
277,428.00 £
Increased by 23.65 %
from 224,368.00 £
Average area rental value
1,032.00 £/mo
Decreased by 0.77 %
from 1,040.00 £/mo
Est letting value
758.00 £/mo
Unchanged by 0.00 %
from 758.00 £/mo
Est rental Yield
4.52 %
Increased by 6.86 %
from 4.23 %
Crime Rate
1.00 %
Unchanged by 0.00 %
from 1.00 %

Agent Activity

  • Barkers created the listing.

Nearby Schools

NameTypeOfstedDistance
Avenue Primary SchoolCommunity SchoolGood0.41 KM
Wqe And Regent College GroupFurther Education0.63 KM
Millgate SchoolAcademy Special Converter0.66 KM
Sir Jonathan North Girls CollegeAcademy Converter0.79 KM
University Of LeicesterHigher Education Institutions0.92 KM

Images

Image 20_.jpg KITCHEN/DINING ROOM OTHER ASPECT FREE VALUATION KITCHEN AREA Image 04_.jpg Image 05_.jpg OTHER ASPECT SHOWER ROOM 1 BEDROOM ONE Image 10_.jpg LOUNGE Image 16_.jpg Image 11_.jpg BEDROOM TWO SHOWER ROOM 2 Image 19_.jpg OUTSIDE GENERAL REMARKS FRONT GATED ENTRANCE

Nearby Streets

NameAverage PriceAverage SqftDistance
Oxford Road £ 375,00000.00 KM
Kingsley Street £ 000.00 KM
Greenhill Road £ 000.00 KM
Queens Road £ 271,66700.00 KM
Avenue Road Extension £ 240,00000.00 KM

Nearby Transport

NameNLCTLCDistance
Leicester1947LEI1.99 KM
South Wigston1949SWS3.73 KM

Nearby Listings

AddressPriceTypeScoreDistance
Avenue Road Extension, Leicester £ 220,000BUY7 / 100.00 KM
Avenue Road Extension, Leicester £ 190,000BUY6 / 100.01 KM
Avenue Road Extension, Leicester, LE2 3EL £ 220,000BUY7 / 100.01 KM
Avenue Road Extension, Clarendon Park, Leicester £ 230,000BUY6 / 100.02 KM
Avenue Road Extension, Leicester £ 200,000BUY6 / 100.03 KM

Nearby Properties

AddressPriceDistance
236 Avenue Road Extension £ 218,0000.01 KM
220 Avenue Road Extension £ 125,0000.01 KM
246 Avenue Road Extension £ 145,0000.01 KM
254 Avenue Road Extension £ 149,5000.01 KM
238 Avenue Road Extension £ 118,0000.01 KM