52 Clarion Crescent, Glasgow, Glasgow City, G13
AB

52 Clarion Crescent, Glasgow, Glasgow City, G13

By Aberdein Considine

£ 195,000

Reviews

3 out of 5 stars

Aberdein Considine says ..

Charming Two-Bedroom Semi Detached Home with Versatile Converted Loft in Sought After Knightswood Discover the perfect family sanctuary in this beautifully presented two bedroom semi detached home, nestled in a peaceful and well established residential neighborhood in Knightswood. This...

Property Oracle says ..

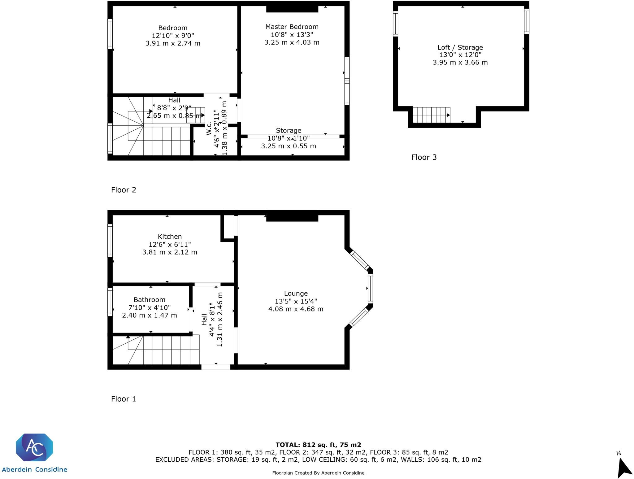
This is a semi-detached property located in the Garscadden/Scotstounhill area of Glasgow. It features two bathrooms and two bedrooms, with a total square footage of 837.20. The property benefits from a modern kitchen and a garden with sheds and a greenhouse. While some areas may benefit from modernisation, the property is generally well-maintained and offers good value for money. Nearby transportation includes Drumchapel and Garscadden train stations. The property is listed with Aberdein Considine.

Therefore, we give this property 7 / 10. *Disclaimer: This is our option and does constitute a recommendation or financial advice. Do your own research. *

Price
8
Condition
7
Location
7
Land
7
Bedrooms
2
Bathrooms
2
Sqft (est)
837.20

The heatmap indicates the level of crime in the area. The color of the heatmap indicates the crime severity and recency.

Metrics Year-on-Year

Average area value
155,333.00 £
Decreased by 5.91 %
from 165,090.00 £
Est sale value
170,788.80 £
Increased by 5.70 %
from 161,579.60 £
Average area rental value
977.00 £/mo
Increased by 2.41 %
from 954.00 £/mo
Est letting value
837.20 £/mo
Unchanged by 0.00 %
from 837.20 £/mo
Est rental Yield
7.55 %
Increased by 8.95 %
from 6.93 %
Crime Rate
0.00 %
from 0.00 %

Agent Activity

  • Aberdein Considine created the listing.

Images

Picture No. 21 Picture No. 31 Picture No. 36 Picture No. 15 Picture No. 33 Picture No. 34 Picture No. 32 Picture No. 01 Picture No. 35 Picture No. 37 Picture No. 02 Picture No. 03 Picture No. 11 Picture No. 04 Picture No. 05 Picture No. 06 Picture No. 07 Picture No. 08 Picture No. 09 Picture No. 10 Picture No. 13 Picture No. 12 Picture No. 25 Picture No. 27 Picture No. 28 Picture No. 29 Picture No. 22 Picture No. 17 Picture No. 19 Picture No. 14

Nearby Streets

NameAverage PriceAverage SqftDistance
Bard Avenue £ 000.00 KM
Loanfoot Avenue £ 149,00000.00 KM
Clarion Road £ 000.00 KM
Moraine Circus £ 000.00 KM
Kearn Avenue £ 000.00 KM

Nearby Transport

NameNLCTLCDistance
Drumchapel9994DMC0.94 KM
Garscadden9979GRS1.09 KM
Scotstounhill9996SCH1.55 KM
Yoker9990YOK2.84 KM
Drumry9993DMY2.86 KM

Nearby Listings

AddressPriceTypeScoreDistance
52 Clarion Crescent, Glasgow, Glasgow City, G13 £ 195,000BUY7 / 100.00 KM
Clarion Crescent, Knightswood, Glasgow, G13 £ 220,000BUY6 / 100.01 KM
Archerhill Road, Glasgow £ 134,995BUY6 / 100.09 KM
Rampart Avenue, Glasgow, G13 £ 125,000BUYUnknown0.13 KM
Glanderston Drive, Knightswood £ 205,000BUY6 / 100.15 KM