Plot of Land Maidenwellbrow Cottage, Tarbrax, West Calder, EH55 8LP
McEwan Fraser Legal logo

Plot of Land Maidenwellbrow Cottage, Tarbrax, West Calder, EH55 8LP

By McEwan Fraser Legal

£ 125,000

Reviews

2 out of 5 stars

McEwan Fraser Legal says ..

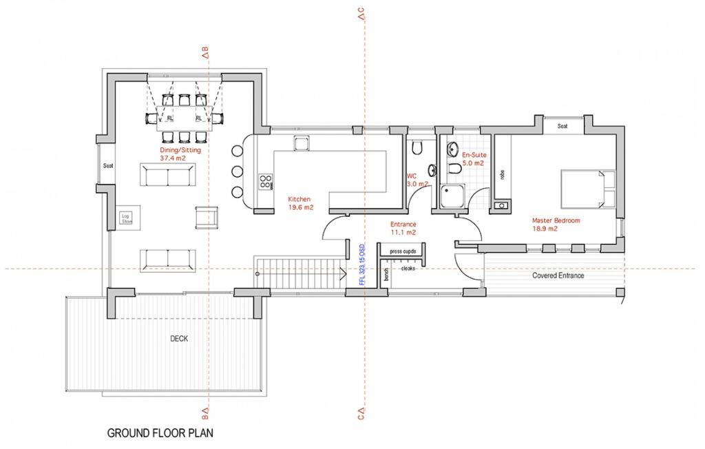
Plot of land with planning consents and detailed drawings for a split level home.

Property Oracle says ..

This listing presents a unique opportunity to purchase a plot of land at Plot of Land Maidenwellbrow Cottage, Tarbrax, West Calder, EH55 8LP with approved planning permission for a new split level home. The land itself is located adjacent to the A70 and whilst a rural setting, requires some distance to travel to access nearby towns and amenities. The existing structure on the site is in disrepair and will require demolition, so the buyer should budget for this. Planning permission and detailed drawings are provided, making the construction process more straightforward. The plans show a modern design spanning two floors, suggesting ample space and desirable modern features. The cost of building a house of this size will be substantial and should be factored into the budget along with the purchase price, which may represent good value depending on the eventual build cost. Given the rural nature of the area and relative remoteness from local amenities, buyers should consider whether they are prepared to live in this isolated setting.

Therefore, we give this property 4 / 10. *Disclaimer: This is our option and does constitute a recommendation or financial advice. Do your own research. *

Price
7
Condition
2
Location
4
Land
6
Bedrooms
0
Bathrooms
0
Sqft (est)
1,644.51

The heatmap indicates the level of crime in the area. The color of the heatmap indicates the crime severity and recency.

Metrics Year-on-Year

Average area value
344,529.00 £
Increased by 5.99 %
from 325,067.00 £
Est sale value
596,957.13 £
Increased by 26.48 %
from 471,974.37 £
Average area rental value
1,333.00 £/mo
Decreased by 14.93 %
from 1,567.00 £/mo
Est letting value
1,644.51 £/mo
Unchanged by 0.00 %
from 1,644.51 £/mo
Est rental Yield
4.64 %
Decreased by 19.72 %
from 5.78 %
Crime Rate
0.00 %
from 0.00 %

Agent Activity

  • McEwan Fraser Legal created the listing.

Images

MFL3222799_424.JPG MFL3222799_493.JPG MFL3222799_527.jpg MFL3222799_141.jpg MFL3222799_917.png MFL3222799_961.png MFL3222799_677.png MFL3222799_005.JPG MFL3222799_213.JPG MFL3222799_324.JPG MFL3222799_533.JPG MFL3222799_212.JPG MFL3222799_759.JPG MFL3222799_199.png MFL3222799_282.jpg MFL3222799_625.jpg MFL3222799_595.jpg MFL3222799_283.jpg MFL3222799_604.jpg

Nearby Streets

NameAverage PriceAverage SqftDistance
A70 £ 000.00 KM

Nearby Transport

NameNLCTLCDistance
West Calder9250WCL8.87 KM

Nearby Listings