Hamptons Sales says ..
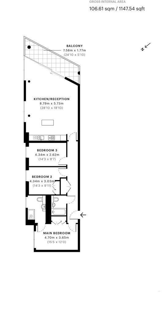
Guide Price £575,000 to £600,000 This spacious three double bedroom apartment offers plenty of room to live and relax. It features a bright, south-west facing open-plan living area and three generously sized bedrooms. Residents benefit from underground parking, a concierge service, and access to...
Property Oracle says ..
This is a modern flat in Canning Town South, offering three bedrooms and two bathrooms. The property is in good condition and benefits from its location, with easy access to local amenities and transportation links. The asking price is reasonable when compared to the average price per square foot in the area. While it lacks a garden, the balcony provides some outdoor space. The proximity to schools may also appeal to families.
Therefore, we give this property 6 / 10. *Disclaimer: This is our option and does constitute a recommendation or financial advice. Do your own research. *
- Price
- 6
- Condition
- 8
- Location
- 7
- Land
- 3
- Bedrooms
- 3
- Bathrooms
- 2
- Sqft (est)
- 1,147.54
The heatmap indicates the level of crime in the area. The color of the heatmap indicates the crime severity and recency.
Metrics Year-on-Year
- Average area value
- 388,267.00 £Decreased by 11.51 %
- Est sale value
- 605,901.12 £Decreased by 4.00 %
- Average area rental value
- 2,387.00 £/moIncreased by 9.80 %
- Est letting value
- 3,442.62 £/moIncreased by 50.00 %
- Est rental Yield
- 7.38 %Increased by 24.03 %
- Crime Rate
- 4.00 %Unchanged by 0.00 %
Agent Activity
Hamptons Sales created the listing.
Nearby Schools
| Name | Type | Ofsted | Distance |
|---|---|---|---|
| Hallsville Primary School | Academy Converter | 0.46 KM | |
| St Luke'S Primary School | Voluntary Aided School | Good | 0.71 KM |
| Keir Hardie Primary School | Community School | Good | 0.90 KM |
| Learningsure College | Other Independent School | 0.90 KM | |
| Keir Hardie Children'S Centre | Children's Centre | 0.91 KM |
Images
Nearby Streets
| Name | Average Price | Average Sqft | Distance |
|---|---|---|---|
| Seagull Lane | £ 429,286 | 0 | 0.00 KM |
| Mason Close | £ 0 | 0 | 0.00 KM |
| Victoria Dock Road | £ 0 | 0 | 0.00 KM |
| Kamal Chunchie Way | £ 0 | 0 | 0.00 KM |
| Chaseway Lodge | £ 295,000 | 0 | 0.00 KM |
Nearby Transport
| Name | NLC | TLC | Distance |
|---|---|---|---|
| West Ham | 7474 | WEH | 2.61 KM |
| Westcombe Park | 5151 | WCB | 2.73 KM |
| Charlton | 5144 | CTN | 2.84 KM |
| Maze Hill | 5149 | MZH | 3.36 KM |
| Maryland | 6970 | MYL | 4.37 KM |
Nearby Listings
| Address | Price | Type | Score | Distance |
|---|---|---|---|---|
| Seagull Lane, London, E16 | £ 575,000 | BUY | 6 / 10 | 0.00 KM |
| Ross Apartments, Royal Victoria Dock, E16 | £ 450,000 | BUY | 6 / 10 | 0.02 KM |
| Ross Apartments, Royal Victoria Dock E16 | £ 700,000 | BUY | Unknown | 0.02 KM |
| Atlantic Apartments, Royal Victoria Dock, E16 | £ 335,000 | BUY | 6 / 10 | 0.03 KM |
| Western Gateway, Royal Docks, London, E16 | £ 375,000 | BUY | Unknown | 0.04 KM |
Nearby Properties
| Address | Price | Distance |
|---|---|---|
| 6 Pollard Close | £ 84,000 | 0.11 KM |
| 9 Pollard Close | £ 333,500 | 0.11 KM |
| 17 Pollard Close | £ 467,000 | 0.11 KM |
| 16 Pollard Close | £ 130,000 | 0.11 KM |
| 1 Pollard Close | £ 470,000 | 0.11 KM |