Little Common, Stanmore, HA7
Davidson Frost-Wellings logo

Little Common, Stanmore, HA7

By Davidson Frost-Wellings

£ 480,000

Reviews

2 out of 5 stars

Davidson Frost-Wellings says ..

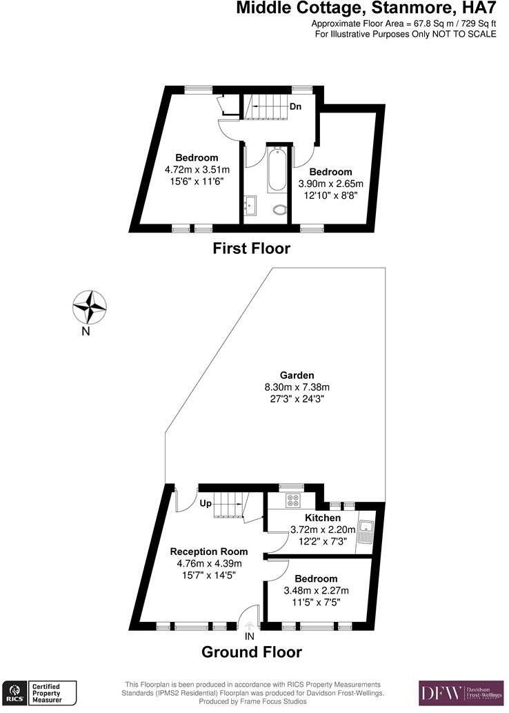
A charming cottage available chain free with Davidson Frost-Wellings on the ever popular Little Common. On the ground floor the house has two reception rooms and a kitchen. Access to the garden is off the main reception room. Upstairs the house has two bedrooms and a family bathroom.

Property Oracle says ..

Therefore, we give this property 5 / 10. *Disclaimer: This is our option and does constitute a recommendation or financial advice. Do your own research. *

Price
7
Condition
3
Location
7
Land
5
Bedrooms
2
Bathrooms
1
Sqft (est)
1,346.62

The heatmap indicates the level of crime in the area. The color of the heatmap indicates the crime severity and recency.

Metrics Year-on-Year

Average area value
892,211.00 £
Increased by 5.89 %
from 842,593.00 £
Est sale value
1,508,214.40 £
Increased by 56.64 %
from 962,833.30 £
Average area rental value
2,230.00 £/mo
Decreased by 30.05 %
from 3,188.00 £/mo
Est letting value
2,693.24 £/mo
Unchanged by 0.00 %
from 2,693.24 £/mo
Est rental Yield
3.00 %
Decreased by 33.92 %
from 4.54 %
Crime Rate
6.00 %
Unchanged by 0.00 %
from 6.00 %

Agent Activity

  • Davidson Frost-Wellings created the listing.

Nearby Schools

NameTypeOfstedDistance
St John'S Cofe SchoolVoluntary Aided SchoolGood0.44 KM
Stanmore ParkChildren's Centre Linked Site1.12 KM
Stanmore CollegeFurther EducationGood1.65 KM
Bentley Wood High SchoolAcademy ConverterOutstanding1.65 KM
Avanti House Primary SchoolFree SchoolsGood2.11 KM

Images

Davidson Frost-Wellings, DFW, Little Common, Stanm Davidson Frost-Wellings, DFW, Little Common, Stanm Davidson Frost-Wellings, DFW, Little Common, Stanm Davidson Frost-Wellings, DFW, Little Common, Stanm Davidson Frost-Wellings, DFW, Little Common, Stanm Davidson Frost-Wellings, DFW, Little Common, Stanm Davidson Frost-Wellings, DFW, Little Common, Stanm Davidson Frost-Wellings, DFW, Little Common, Stanm Davidson Frost-Wellings, DFW, Little Common, Stanm Davidson Frost-Wellings, DFW, Little Common, Stanm

Nearby Streets

NameAverage PriceAverage SqftDistance
Holland Close £ 1,416,66700.00 KM
Linden Close £ 1,650,00000.00 KM
Priory Close £ 2,500,00000.00 KM
Ray Gardens £ 350,00000.00 KM
William Drive £ 000.00 KM

Nearby Transport

NameNLCTLCDistance
Harrow And Wealdstone1397HRW4.01 KM
Kenton1399KNT4.81 KM
Headstone Lane1434HDL4.85 KM
Elstree And Borehamwood1542ELS5.37 KM
Harrow-On-The-Hill598HOH5.46 KM

Nearby Listings

AddressPriceTypeScoreDistance
Little Common, Stanmore, HA7 £ 480,000BUY5 / 100.00 KM
Little Common, Stanmore, HA7 £ 695,000BUY8 / 100.07 KM
Stanmore Hall, Wood Lane, Stanmore, HA7 £ 775,000BUY7 / 100.07 KM
Wood Lane, Stanmore, Greater London, HA7 £ 950,000BUY6 / 100.08 KM
Stanmore Hill, Stanmore, HA7 £ 2,250,000BUY7 / 100.08 KM

Nearby Properties

AddressPriceDistance
16 Little Common £ 260,0000.10 KM
13 Little Common £ 640,0000.10 KM
28 Little Common £ 455,0000.10 KM
27 Little Common £ 475,0000.10 KM
25 Little Common £ 425,0000.10 KM