Eglinton Hill, Shooters Hill, SE18
By Robinson Jackson
£ 300,000
Reviews
3 out of 5 stars
Robinson Jackson says ..
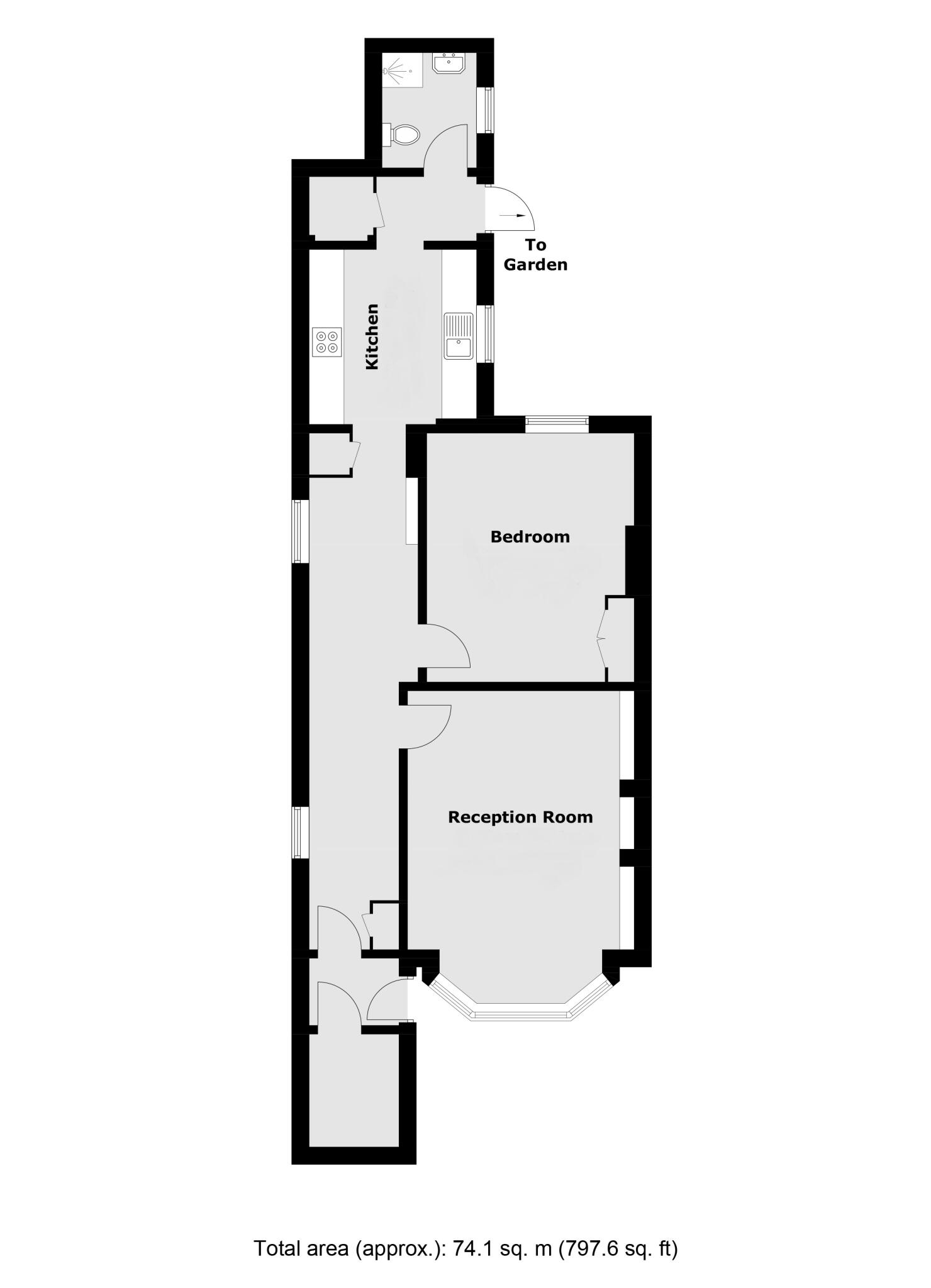
**Guide Price: £300,000 - £325,000** A spacious and beautifully refurbished one-bedroom flat, set on the ground floor of an attractive Victorian conversion. With its own entrance, garden and driveway, located just off Shooters Hill.
Property Oracle says ..
This is a well-presented one-bedroom flat in the desirable Shooters Hill area of Greenwich. The property benefits from recent modernisations, including a stylish kitchen and bathroom. The inclusion of a garden is a significant bonus. The location offers a blend of suburban tranquility with convenient access to central London and local amenities. The proximity to schools makes it an attractive option for families or those planning to start a family. Overall, this property represents a solid investment opportunity or a comfortable home for a single person or couple.
Therefore, we give this property 7 / 10. *Disclaimer: This is our option and does constitute a recommendation or financial advice. Do your own research. *
- Price
- 7
- Condition
- 8
- Location
- 7
- Land
- 6
- Bedrooms
- 1
- Bathrooms
- 1
- Sqft (est)
- 797.61
The heatmap indicates the level of crime in the area. The color of the heatmap indicates the crime severity and recency.
Metrics Year-on-Year
- Average area value
- 515,833.00 £Increased by 0.04 %
- Est sale value
- 291,925.26 £Decreased by 23.27 %
- Average area rental value
- 2,036.00 £/moIncreased by 4.25 %
- Est letting value
- 797.61 £/moUnchanged by 0.00 %
- Est rental Yield
- 4.74 %Increased by 4.18 %
- Crime Rate
- 4.00 %Unchanged by 0.00 %
Agent Activity
Robinson Jackson created the listing.
Nearby Schools
| Name | Type | Ofsted | Distance |
|---|---|---|---|
| Eglinton Children'S Centre | Children's Centre | 0.46 KM | |
| Eglinton Primary School | Community School | Good | 0.49 KM |
| Notre Dame Catholic Primary School | Voluntary Aided School | Good | 0.53 KM |
| Plumcroft Primary School | Community School | Good | 0.66 KM |
| Shooters Hill Sixth Form College | Academy 16-19 Converter | Good | 0.73 KM |
Images
Nearby Streets
| Name | Average Price | Average Sqft | Distance |
|---|---|---|---|
| Ripon Road | £ 425,000 | 0 | 0.00 KM |
| Adj. Road | £ 0 | 0 | 0.00 KM |
| Butterfield Mews | £ 0 | 0 | 0.00 KM |
| Rose Court | £ 725,000 | 0 | 0.00 KM |
| St. Margaret's Grove | £ 340,000 | 0 | 0.00 KM |
Nearby Transport
| Name | NLC | TLC | Distance |
|---|---|---|---|
| Woolwich Arsenal | 5152 | WWA | 1.48 KM |
| Woolwich Dockyard | 5153 | WWD | 2.23 KM |
| Plumstead | 5208 | PLU | 2.27 KM |
| Falconwood | 5137 | FCN | 2.28 KM |
| Eltham | 5103 | ELW | 2.94 KM |
Nearby Listings
| Address | Price | Type | Score | Distance |
|---|---|---|---|---|
| Eglinton Hill, Shooters Hill, SE18 | £ 300,000 | BUY | 7 / 10 | 0.00 KM |
| Eglinton Hill, London | £ 285,000 | BUY | 6 / 10 | 0.01 KM |
| Eglinton Hill, Shooters Hill, London, SE18 | £ 1,395,000 | BUY | Unknown | 0.01 KM |
| Eglinton Hill, Woolwich | £ 325,000 | BUY | Unknown | 0.01 KM |
| Eglington Hill, Shooters Hill, SE18 3NR | £ 300,000 | BUY | 6 / 10 | 0.03 KM |
Nearby Properties
| Address | Price | Distance |
|---|---|---|
| 34c Eglinton Hill | £ 40,000 | 0.01 KM |
| 44d Eglinton Hill | £ 30,000 | 0.01 KM |
| 54 Eglinton Hill | £ 530,000 | 0.01 KM |
| 44b - 44d Eglinton Hill | £ 85,000 | 0.01 KM |
| 58a Eglinton Hill | £ 390,000 | 0.01 KM |