Wormholt Road, Shepherd's Bush, London, W12
By Foxtons
£ 550,000
Reviews
2 out of 5 stars
Foxtons says ..
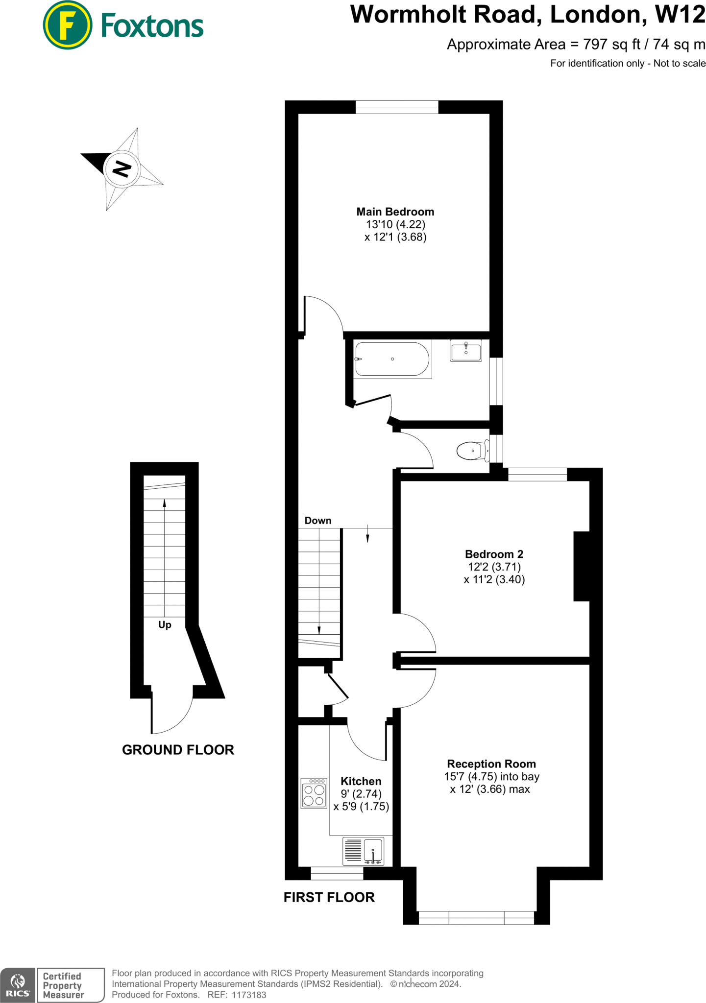
This superb 2 bedroom flat is on the first floor and offers comfortable and bright accommodation throughout including a spacious reception room and 2 double bedrooms.
Property Oracle says ..
This 2-bedroom flat located on Wormholt Road, Shepherd’s Bush, is listed for £550,000. The property is presented as a well-maintained, modern apartment with a renovated bathroom and kitchen. Interior photos showcase a neutral, bright living space. However, there is minimal external space or a private garden. The overall condition, while good, could benefit from some enhancements to reach its full potential. It’s within reasonable proximity to schools such as Wormholt Park Primary School (rated ‘Good’ by Ofsted) and several other options, making it family-friendly. Its location in Shepherd’s Bush offers access to shops, amenities, and transport links, though travel times to central London may vary. The price point appears competitive, considering nearby property listings and the London market; however, the lack of external space and precise square footage data hinder a definitive valuation. Prospective buyers should consider the absence of a garden or outdoor area and compare the property’s features and price to similar options in the immediate area.
Therefore, we give this property 5 / 10. *Disclaimer: This is our option and does constitute a recommendation or financial advice. Do your own research. *
- Price
- 7
- Condition
- 6
- Location
- 7
- Land
- 1
- Bedrooms
- 2
- Bathrooms
- 1
- Sqft (est)
- 797.00
The heatmap indicates the level of crime in the area. The color of the heatmap indicates the crime severity and recency.
Metrics Year-on-Year
- Average area value
- 603,333.00 £Decreased by 25.74 %
- Est sale value
- 800,985.00 £Increased by 40.95 %
- Average area rental value
- 1,627.00 £/moDecreased by 25.78 %
- Est letting value
- 1,594.00 £/moIncreased by 100.00 %
- Est rental Yield
- 3.24 %Unchanged by 0.00 %
- Crime Rate
- 2.00 %Unchanged by 0.00 %
Agent Activity
Foxtons created the listing.
Nearby Schools
| Name | Type | Ofsted | Distance |
|---|---|---|---|
| Queensmill School | Academy Special Converter | 0.24 KM | |
| Q+ | Special Post 16 Institution | 0.24 KM | |
| Wormholt Park Primary School | Community School | Good | 0.47 KM |
| Greenside Primary School | Academy Converter | Good | 0.58 KM |
| Phoenix Academy | Academy Sponsor Led | Good | 0.66 KM |
Images
Nearby Streets
| Name | Average Price | Average Sqft | Distance |
|---|---|---|---|
| Askham Court | £ 900,000 | 0 | 0.00 KM |
| Gravesend Road | £ 0 | 0 | 0.00 KM |
| Becklow Mews | £ 0 | 0 | 0.00 KM |
| The Vale/Uxbridge Road | £ 0 | 0 | 0.00 KM |
| Uxbridge Road | £ 0 | 0 | 0.00 KM |
Nearby Transport
| Name | NLC | TLC | Distance |
|---|---|---|---|
| Acton Central | 1404 | ACC | 2.48 KM |
| Shepherd'S Bush | 9587 | SPB | 2.55 KM |
| Willesden Junction | 1457 | WIJ | 2.78 KM |
| Kensal Green | 1447 | KNL | 3.05 KM |
| Acton Main Line | 3000 | AML | 3.08 KM |
Nearby Listings
| Address | Price | Type | Score | Distance |
|---|---|---|---|---|
| Wormholt Road, Shepherd's Bush, London, W12 | £ 1,750,000 | BUY | Unknown | 0.00 KM |
| Wormholt Road, Shepherd's Bush, London, W12 | £ 550,000 | BUY | 5 / 10 | 0.00 KM |
| Wormholt Road, London | £ 1,850,000 | BUY | 7 / 10 | 0.03 KM |
| Wormholt Road, London | £ 550,000 | BUY | Unknown | 0.04 KM |
| Wormholt Road, London | £ 175,000 | BUY | 6 / 10 | 0.06 KM |
Nearby Properties
| Address | Price | Distance |
|---|---|---|
| 42 Wormholt Road | £ 250,000 | 0.02 KM |
| 28 Wormholt Road | £ 1,261,000 | 0.02 KM |
| 56 Wormholt Road | £ 665,000 | 0.02 KM |
| 6 Wormholt Road | £ 712,500 | 0.02 KM |
| 14 Wormholt Road | £ 890,000 | 0.02 KM |