Long Lane, Halesowen
By Bloore King & Kavanagh
£ 210,000
Reviews
3 out of 5 stars
Bloore King & Kavanagh says ..
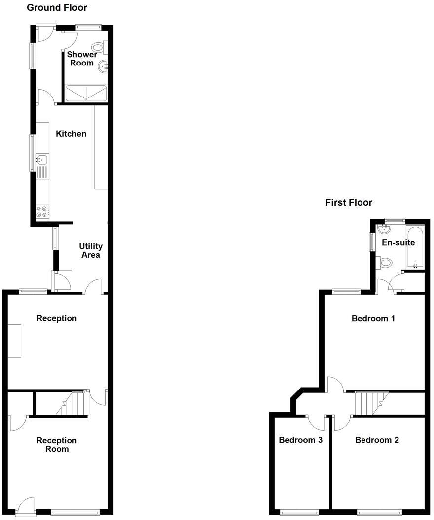
A very well presented THREE bedroom end of terraced property. This lovely property briefly comprises: two reception rooms, cellarette, UTILITY AREA, fitted kitchen, downstairs shower room, landing, three bedrooms, MASTER WITH ENSUITE. To the front of the property is a walled are...
Property Oracle says ..
The property is a 3 bedroom semi-detached house located on Long Lane in Halesowen, West Midlands. It benefits from being close to several primary and secondary schools, all within a 1km radius, including Halesbury School and Leasowes High School, both rated as ‘Good’ by Ofsted. Several train stations are also within reasonable commuting distance, with Rowley Regis station being the closest at approximately 1.3km.
The property itself appears to be in good condition, with a recently modernised kitchen and bathrooms. The interior is presented well, and the images show a clean and well-maintained property. There is also a garden to the rear, which is a significant advantage in this market.
Given the average price per square foot in the area is £329, and this property is 890 sqft, a fair market value might be around £292,610. However, the list price is £210,000, which is significantly lower than the average. This suggests the property may represent good value for money, although further investigation into the specific reasons for the lower price may be warranted. The lower price could be due to factors not immediately apparent from the provided information. The lower price could be due to factors not immediately apparent from the provided information.
Therefore, we give this property 7 / 10. *Disclaimer: This is our option and does constitute a recommendation or financial advice. Do your own research. *
- Price
- 9
- Condition
- 8
- Location
- 7
- Land
- 7
- Bedrooms
- 3
- Bathrooms
- 2
- Sqft (est)
- 890.00
The heatmap indicates the level of crime in the area. The color of the heatmap indicates the crime severity and recency.
Metrics Year-on-Year
- Average area value
- 327,363.00 £Increased by 26.97 %
- Est sale value
- 341,760.00 £Increased by 70.67 %
- Average area rental value
- 1,112.00 £/moIncreased by 23.69 %
- Est letting value
- 890.00 £/mo
- Est rental Yield
- 4.08 %Decreased by 2.39 %
- Crime Rate
- 3.00 %Unchanged by 0.00 %
Agent Activity
Bloore King & Kavanagh created the listing.
Nearby Schools
| Name | Type | Ofsted | Distance |
|---|---|---|---|
| Halesbury School | Foundation Special School | Good | 0.25 KM |
| Olive Hill Primary Academy | Academy Converter | 0.44 KM | |
| Hurst Green Primary School | Community School | Good | 0.45 KM |
| Olive Hill Children'S Centre | Children's Centre | 0.49 KM | |
| Leasowes High School | Academy Converter | Good | 0.73 KM |
Images
Nearby Streets
| Name | Average Price | Average Sqft | Distance |
|---|---|---|---|
| Beaumont Road | £ 199,994 | 0 | 0.00 KM |
| Pottery Farm | £ 1,200,000 | 0 | 0.00 KM |
| St Loye's Close | £ 0 | 0 | 0.00 KM |
| Dale Road | £ 360,000 | 0 | 0.00 KM |
| Green Lane | £ 194,375 | 0 | 0.00 KM |
Nearby Transport
| Name | NLC | TLC | Distance |
|---|---|---|---|
| Rowley Regis | 4606 | ROW | 1.30 KM |
| Old Hill | 4641 | OHL | 2.97 KM |
| Langley Green | 4607 | LGG | 4.17 KM |
| Sandwell And Dudley | 1149 | SAD | 5.19 KM |
| Cradley Heath | 4639 | CRA | 6.72 KM |
Nearby Listings
| Address | Price | Type | Score | Distance |
|---|---|---|---|---|
| Long Lane, Halesowen | £ 210,000 | BUY | 7 / 10 | 0.00 KM |
| Long Lane, Halesowen | £ 360,000 | BUY | 6 / 10 | 0.04 KM |
| Long Lane, Halesowen, B62 9JX | £ 225,000 | BUY | 6 / 10 | 0.05 KM |
| Long Lane, Halesowen, B62 9JX | £ 375,000 | BUY | 5 / 10 | 0.05 KM |
| HALESOWEN, Long Lane | £ 325,000 | BUY | 7 / 10 | 0.11 KM |
Nearby Properties
| Address | Price | Distance |
|---|---|---|
| 240 Long Lane | £ 120,000 | 0.04 KM |
| 241 Long Lane | £ 176,000 | 0.04 KM |
| 249 Long Lane | £ 123,000 | 0.04 KM |
| 261 Long Lane | £ 139,000 | 0.04 KM |
| 245 Long Lane | £ 103,000 | 0.04 KM |