St. Thomas's Road, London
By Alwyne Estate Agents
£ 575,000
Reviews
3 out of 5 stars
Alwyne Estate Agents says ..
This stunning two-bedroom flat offering a fresh and modern living space that is perfect for both relaxation and entertaining. The open-plan fitted kitchen and reception room create a seamless flow, ideal for hosting friends or enjoying a quiet evening at home. The kitchen is equipped with high-qu...
Property Oracle says ..
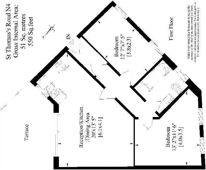
This property is a two-bedroom apartment located in the Highbury West area of Islington, London. The apartment is in good condition and benefits from a private patio. The location is convenient, with Finsbury Park station just a short walk away, providing excellent transport links. There are also several highly-rated primary schools within a reasonable distance. While the property itself is modern and well-maintained, the lack of square footage information makes a definitive price assessment challenging. However, considering comparable properties in the area, the list price appears to be in line with the market. The small plot size of 550 sqft is a notable factor.
Therefore, we give this property 7 / 10. *Disclaimer: This is our option and does constitute a recommendation or financial advice. Do your own research. *
- Price
- 7
- Condition
- 9
- Location
- 9
- Land
- 3
- Bedrooms
- 2
- Bathrooms
- 1
- Lot (est)
- 550.00
The heatmap indicates the level of crime in the area. The color of the heatmap indicates the crime severity and recency.
Metrics Year-on-Year
- Average area value
- 676,538.00 £Decreased by 22.00 %
- Average area rental value
- 2,530.00 £/moIncreased by 2.22 %
- Est rental Yield
- 4.49 %Increased by 31.29 %
- Crime Rate
- 4.00 %Unchanged by 0.00 %
Agent Activity
Alwyne Estate Agents created the listing.
Nearby Schools
| Name | Type | Ofsted | Distance |
|---|---|---|---|
| Ambler Primary School And Children'S Centre | Community School | Outstanding | 0.39 KM |
| Ambler Children'S Centre | Children's Centre | 0.52 KM | |
| Stroud Green Children'S Centre | Children's Centre Linked Site | 0.63 KM | |
| Gillespie Primary School | Community School | Outstanding | 0.64 KM |
| St John'S Highbury Vale Cofe Primary School | Voluntary Aided School | Outstanding | 0.70 KM |
Images
Nearby Streets
| Name | Average Price | Average Sqft | Distance |
|---|---|---|---|
| Vivian Comma Close | £ 0 | 0 | 0.00 KM |
| Cornwallis Square | £ 250,000 | 0 | 0.00 KM |
| Ashburton Triangle | £ 0 | 0 | 0.00 KM |
| Citizen Road | £ 500,000 | 0 | 0.00 KM |
| Dulas Street | £ 0 | 0 | 0.00 KM |
Nearby Transport
| Name | NLC | TLC | Distance |
|---|---|---|---|
| Finsbury Park | 6119 | FPK | 0.22 KM |
| Drayton Park | 6000 | DYP | 1.09 KM |
| Crouch Hill | 7406 | CRH | 1.64 KM |
| Harringay | 6012 | HGY | 1.65 KM |
| Harringay Green Lanes | 7401 | HRY | 1.81 KM |
Nearby Listings
| Address | Price | Type | Score | Distance |
|---|---|---|---|---|
| St. Thomas's Road, London | £ 575,000 | BUY | 7 / 10 | 0.00 KM |
| St. Thomas's Road, London | £ 595,000 | BUY | Unknown | 0.03 KM |
| Plimsoll Road, Finsbury Park | £ 695,000 | BUY | 8 / 10 | 0.05 KM |
| St. Thomas's Road, London, N4 | £ 1,395,000 | BUY | Unknown | 0.06 KM |
| Prah Road, London | £ 550,000 | BUY | Unknown | 0.14 KM |
Nearby Properties
| Address | Price | Distance |
|---|---|---|
| 38b St Thomas's Road | £ 281,000 | 0.01 KM |
| 15 Prah Road | £ 1,475,000 | 0.06 KM |
| 26 Prah Road | £ 1,500,000 | 0.06 KM |
| 20 Prah Road | £ 1,635,000 | 0.06 KM |
| 24 Prah Road | £ 1,375,000 | 0.06 KM |