Radcliffe Road, Hitchin, SG5
By Country Properties
£ 465,000
Reviews
3 out of 5 stars
Country Properties says ..
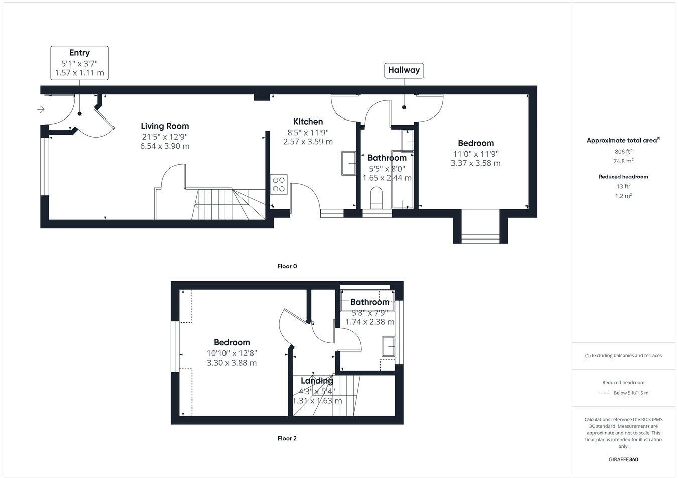
Elegant Two Bedroom Mews Home in a Coveted LocationTucked away in an exclusive setting, this property offers a rare opportunity to own a beautifully presented two bedroom mews house that blends contemporary comfort with timeless charm.Step inside to a light filled open plan livin...
Property Oracle says ..
This is a well-presented terraced property located in a desirable area of Hitchin. The house benefits from its proximity to good schools, transportation links, and local amenities. The interior is modern and well-maintained, and the property includes a pleasant garden. While the square footage is relatively modest, the price appears reasonable for the location and condition of the property.
Therefore, we give this property 7 / 10. *Disclaimer: This is our option and does constitute a recommendation or financial advice. Do your own research. *
- Price
- 7
- Condition
- 8
- Location
- 8
- Land
- 7
- Bedrooms
- 2
- Bathrooms
- 2
- Sqft (est)
- 759.87
The heatmap indicates the level of crime in the area. The color of the heatmap indicates the crime severity and recency.
Metrics Year-on-Year
- Average area value
- 593,750.00 £Increased by 27.70 %
- Est sale value
- 487,076.67 £Increased by 37.85 %
- Average area rental value
- 1,334.00 £/moDecreased by 3.82 %
- Est letting value
- 759.87 £/moUnchanged by 0.00 %
- Est rental Yield
- 2.70 %Decreased by 24.58 %
- Crime Rate
- 23.00 %Unchanged by 0.00 %
Agent Activity
Country Properties created the listing.
Nearby Schools
| Name | Type | Ofsted | Distance |
|---|---|---|---|
| St Andrew'S Church Of England Voluntary Aided Primary School, Hitchin | Voluntary Aided School | Outstanding | 0.53 KM |
| Hitchin Girls' School | Academy Converter | Outstanding | 0.54 KM |
| Highbury Infant School And Nursery | Community School | Good | 0.84 KM |
| Nh7 York Road Family Centre | Children's Centre | 0.99 KM | |
| York Road Nursery School | Local Authority Nursery School | Outstanding | 1.01 KM |
Images
Nearby Streets
| Name | Average Price | Average Sqft | Distance |
|---|---|---|---|
| Radcliffe Road | £ 595,000 | 0 | 0.00 KM |
| Saint Anne's Court | £ 0 | 0 | 0.00 KM |
| Forge Close | £ 400,000 | 0 | 0.00 KM |
| King's Road | £ 482,500 | 0 | 0.00 KM |
| Nightingale Cottages | £ 333,750 | 0 | 0.00 KM |
Nearby Transport
| Name | NLC | TLC | Distance |
|---|---|---|---|
| Hitchin | 6086 | HIT | 0.65 KM |
| Letchworth Garden City | 6089 | LET | 5.37 KM |
| Arlesey | 6171 | ARL | 8.16 KM |
| Stevenage | 6092 | SVG | 8.93 KM |
Nearby Listings
| Address | Price | Type | Score | Distance |
|---|---|---|---|---|
| Radcliffe Road, Hitchin, SG5 | £ 465,000 | BUY | 7 / 10 | 0.00 KM |
| Radcliffe Road, Hitchin | £ 525,000 | BUY | 7 / 10 | 0.04 KM |
| St. Annes Road, Hitchin | £ 190,000 | BUY | 6 / 10 | 0.07 KM |
| Radcliffe Road, Hitchin, Herts SG5 1QG | £ 750,000 | BUY | 7 / 10 | 0.09 KM |
| St. Annes Road | £ 760,000 | BUY | 5 / 10 | 0.10 KM |
Nearby Properties
| Address | Price | Distance |
|---|---|---|
| 36 Radcliffe Road | £ 208,000 | 0.04 KM |
| 34 Radcliffe Road | £ 115,000 | 0.04 KM |
| 55a Radcliffe Road | £ 200,000 | 0.04 KM |
| 22 Radcliffe Road | £ 35,000 | 0.04 KM |
| 41 Radcliffe Road | £ 260,000 | 0.04 KM |