Nicholls Street, Grappenhall, Warrington
By Gascoigne Halman
£ 315,000
Reviews
3 out of 5 stars
Gascoigne Halman says ..
A three bedroom semi detached property situated on a quiet road yet within easy reach of amenities and transport links. The property offers fantastic potential to extend (subject to permissions) with an enclosed rear garden and garaging.
Property Oracle says ..
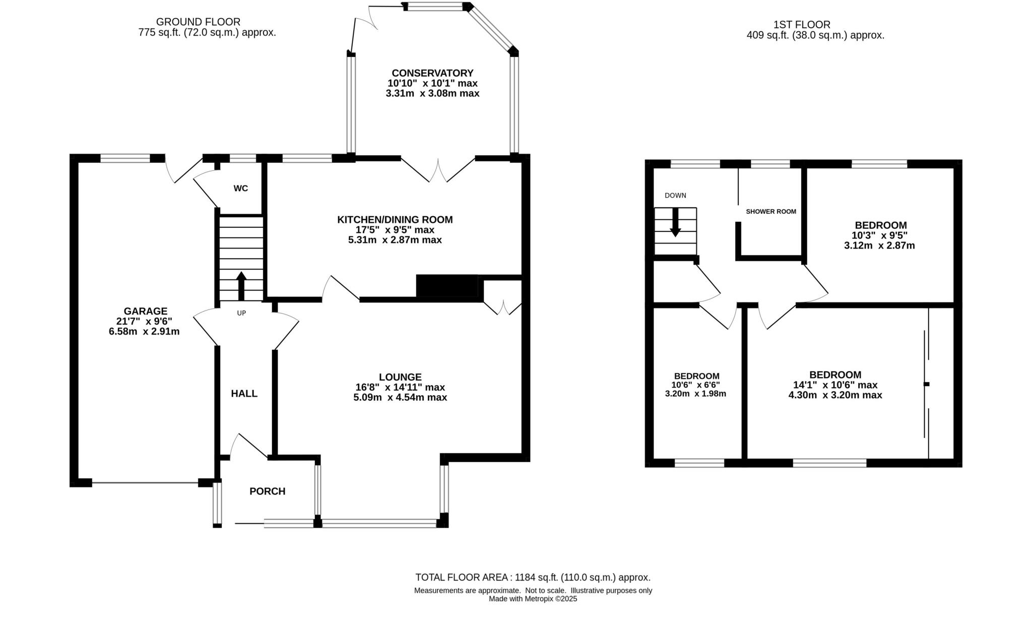
This three-bedroom semi-detached house in Grappenhall, Warrington, is located in a highly sought-after residential area. The property benefits from being within easy reach of highly-rated primary schools, including Bradshaw Community Primary School and Grappenhall St Wilfrid’s Cofe Primary School, and good junior schools. Train stations are also within a reasonable driving distance. While the exterior of the property looks well-maintained, the interior photos reveal that the property’s decor and fixtures are dated. Carpets, wallpaper, and kitchen/bathroom fittings are noticeably outdated and would require significant modernisation. However, the property does include a generous-sized enclosed rear garden. The listing price falls within the range of comparable properties in the area, but potential buyers might want to account for the renovation costs required to update the interior. Overall, the property presents a good opportunity for someone seeking a family home in a prime location, prepared to undertake modernisation work.
Therefore, we give this property 6 / 10. *Disclaimer: This is our option and does constitute a recommendation or financial advice. Do your own research. *
- Price
- 7
- Condition
- 5
- Location
- 7
- Land
- 6
- Bedrooms
- 3
- Bathrooms
- 1
- Sqft (est)
- 1,184.00
The heatmap indicates the level of crime in the area. The color of the heatmap indicates the crime severity and recency.
Metrics Year-on-Year
- Average area value
- 958,333.00 £Increased by 113.58 %
- Est sale value
- 499,648.00 £Increased by 29.85 %
- Average area rental value
- 1,117.00 £/moDecreased by 34.29 %
- Est letting value
- 0.00 £/moDecreased by 100.00 %
- Est rental Yield
- 1.40 %Decreased by 69.23 %
- Crime Rate
- 3.00 %Unchanged by 0.00 %
Agent Activity
Gascoigne Halman marked this listing as sold.
Gascoigne Halman created the listing.
Nearby Schools
| Name | Type | Ofsted | Distance |
|---|---|---|---|
| Bradshaw Community Primary School | Community School | Good | 0.24 KM |
| Grappenhall St Wilfrid'S Cofe Primary School | Voluntary Aided School | Good | 0.48 KM |
| Thelwall Infant School | Academy Converter | 0.82 KM | |
| Thelwall Community Junior School | Community School | Good | 1.92 KM |
| Grappenhall Heys Community Primary School | Community School | Outstanding | 2.00 KM |
Images
Nearby Streets
| Name | Average Price | Average Sqft | Distance |
|---|---|---|---|
| Saint Anne's Avenue | £ 0 | 0 | 0.00 KM |
| Kensington Avenue | £ 395,000 | 0 | 0.00 KM |
| Stockton Lane | £ 275,000 | 0 | 0.00 KM |
| Telford Close | £ 265,000 | 0 | 0.00 KM |
| York Road | £ 449,000 | 0 | 0.00 KM |
Nearby Transport
| Name | NLC | TLC | Distance |
|---|---|---|---|
| Padgate | 2387 | PDG | 3.47 KM |
| Birchwood | 2304 | BWD | 4.60 KM |
| Warrington Central | 2390 | WAC | 5.52 KM |
| Warrington Bank Quay | 2384 | WBQ | 6.36 KM |
Nearby Listings
| Address | Price | Type | Score | Distance |
|---|---|---|---|---|
| Nicholls Street, Grappenhall, Warrington | £ 315,000 | BUY | 6 / 10 | 0.00 KM |
| Georges Crescent, Grappenhall, WA4 | £ 330,000 | BUY | 7 / 10 | 0.09 KM |
| Georges Crescent, Grappenhall, WA4 | £ 315,000 | BUY | 7 / 10 | 0.10 KM |
| Euclid Avenue, Grappenhall, Warrington | £ 330,000 | BUY | Unknown | 0.15 KM |
| Knutsford Road, Grappenhall, Warrington | £ 350,000 | BUY | 6 / 10 | 0.18 KM |
Nearby Properties
| Address | Price | Distance |
|---|---|---|
| 9 Nicholls Street | £ 292,500 | 0.02 KM |
| 8 Nicholls Street | £ 253,000 | 0.02 KM |
| 7 Nicholls Street | £ 215,000 | 0.02 KM |
| 1 Nicholls Street | £ 429,000 | 0.02 KM |
| 52 Georges Crescent | £ 375,000 | 0.04 KM |