Ashbrook Road, Old Windsor, Berkshire, SL4
By The Frost Partnership
£ 550,000
Reviews
3 out of 5 stars
The Frost Partnership says ..
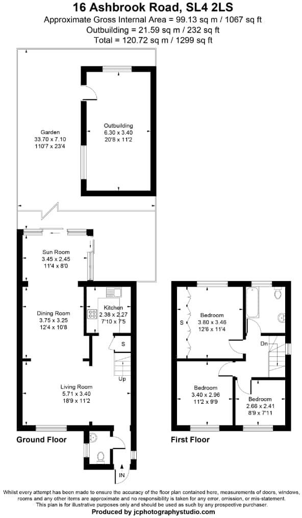
A very well presented, extended 3 bedroom semi detached house with large rear garden and large detached garage situated on one of the most popular roads in the village. The property is well located for all of the village amenities and offers substantial scope (STPP) for further extensions to maxi...
Property Oracle says ..
This is a three-bedroom semi-detached property located on Ashbrook Road in Old Windsor. The property benefits from a modern kitchen and bathroom, off-street parking, and a garden. The property is located close to local schools and amenities. The property is in generally good condition, although some areas may benefit from updating. Overall, this property represents a solid opportunity for families or individuals looking for a home in a desirable location.
Therefore, we give this property 6 / 10. *Disclaimer: This is our option and does constitute a recommendation or financial advice. Do your own research. *
- Price
- 7
- Condition
- 7
- Location
- 7
- Land
- 6
- Bedrooms
- 3
- Bathrooms
- 1
- Sqft (est)
- 1,067.03
The heatmap indicates the level of crime in the area. The color of the heatmap indicates the crime severity and recency.
Metrics Year-on-Year
- Average area value
- 790,416.00 £Increased by 5.96 %
- Est sale value
- 697,837.62 £Increased by 11.41 %
- Average area rental value
- 2,477.00 £/moIncreased by 5.45 %
- Est letting value
- 2,134.06 £/moIncreased by 100.00 %
- Est rental Yield
- 3.76 %Decreased by 0.53 %
- Crime Rate
- 7.00 %Unchanged by 0.00 %
Agent Activity
The Frost Partnership created the listing.
Nearby Schools
| Name | Type | Ofsted | Distance |
|---|---|---|---|
| Little Cygnets (Old Windsor) | Children's Centre | 0.36 KM | |
| King'S Court First School | Community School | Good | 0.36 KM |
| St Johns Beaumont | Other Independent School | 1.06 KM | |
| St Peter'S Church Of England Middle School | Academy Sponsor Led | Good | 1.59 KM |
| Bishopsgate School | Other Independent School | 1.65 KM |
Images
Nearby Streets
| Name | Average Price | Average Sqft | Distance |
|---|---|---|---|
| Miller's Lane | £ 0 | 0 | 0.00 KM |
| Ham Lane | £ 1,750,000 | 0 | 0.00 KM |
| Magna Carta Park | £ 0 | 0 | 0.00 KM |
Nearby Transport
| Name | NLC | TLC | Distance |
|---|---|---|---|
| Sunnymeads | 5675 | SNY | 2.83 KM |
| Datchet | 5668 | DAT | 3.27 KM |
| Wraysbury | 5673 | WRY | 4.10 KM |
| Egham | 5669 | EGH | 4.46 KM |
| Windsor And Eton Riverside | 5672 | WNR | 4.70 KM |
Nearby Listings
| Address | Price | Type | Score | Distance |
|---|---|---|---|---|
| Ashbrook Road, Old Windsor, Berkshire, SL4 | £ 550,000 | BUY | 6 / 10 | 0.00 KM |
| Ashbrook Road, Windsor, Berkshire, SL4 | £ 550,000 | BUY | 7 / 10 | 0.02 KM |
| Keppel Spur, Old Windsor, Windsor | £ 675,000 | BUY | 7 / 10 | 0.06 KM |
| Ashbrook Road, Old Windsor, Windsor | £ 675,000 | BUY | 7 / 10 | 0.08 KM |
| Keppel Spur, Old Windsor, Berkshire, SL4 | £ 525,000 | BUY | 7 / 10 | 0.09 KM |
Nearby Properties
| Address | Price | Distance |
|---|---|---|
| 35 Walpole Road | £ 490,000 | 0.08 KM |
| 27 Walpole Road | £ 247,500 | 0.08 KM |
| 21 Walpole Road | £ 459,000 | 0.08 KM |
| 17 Walpole Road | £ 310,000 | 0.08 KM |
| 11a Walpole Road | £ 500,000 | 0.08 KM |