Temple Street, Sidmouth, Devon, EX10
YO

Temple Street, Sidmouth, Devon, EX10

By YOUR MOVE - Edwards

£ 345,000

Reviews

3 out of 5 stars

YOUR MOVE - Edwards says ..

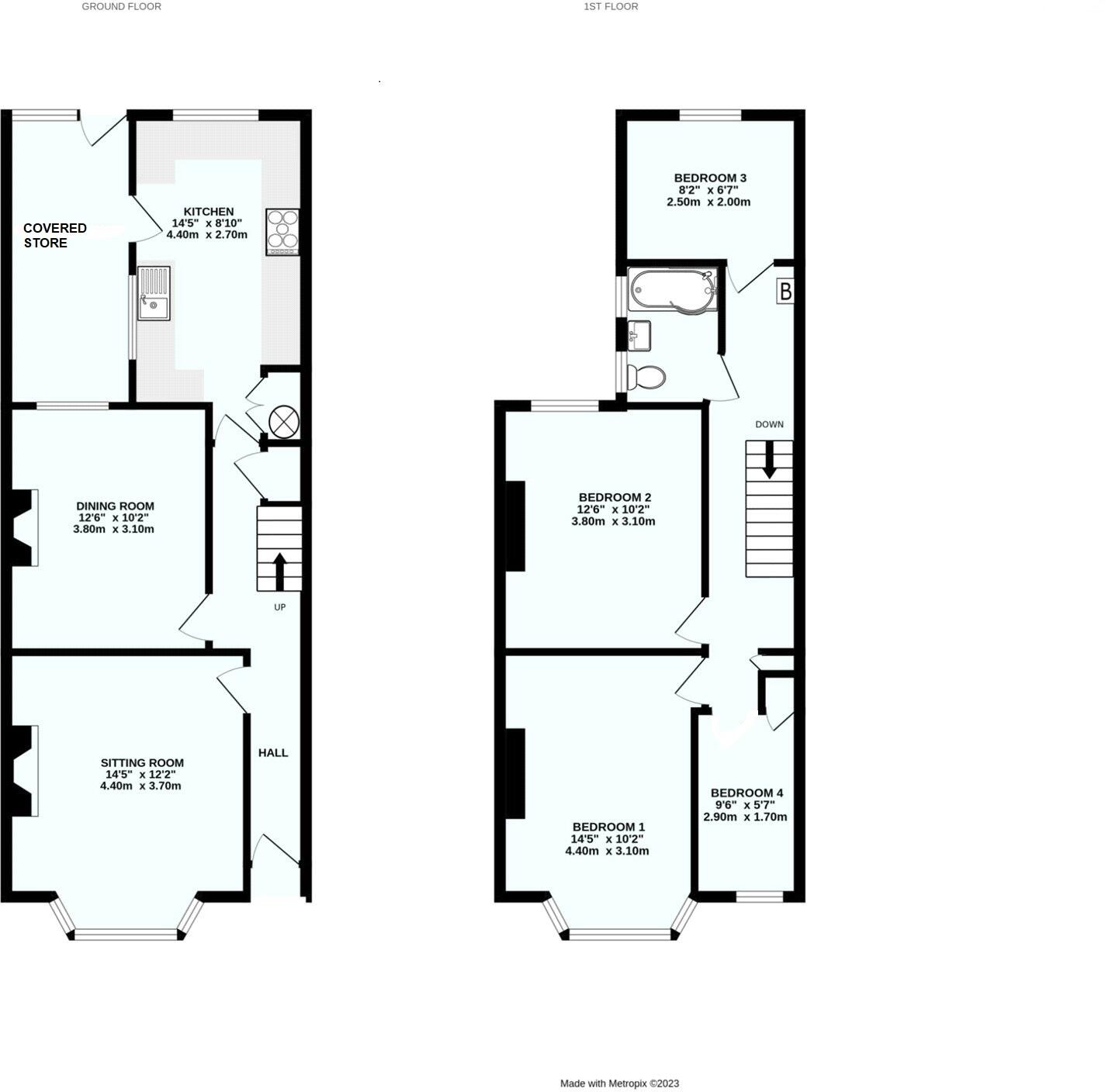
• Four Bedrooms • Two Reception Rooms • Modern Kitchen • Contemporary Bathroom • Countryside Views • Within 150m Of The Byes Walk

Property Oracle says ..

This four-bedroom property in Sidmouth, Devon is listed at £345,000. The property benefits from a good location, being close to local schools such as Sidmouth Church of England Primary School (0.96km) and Sidmouth College (1.06km). While the plot size is not specified, the photos show a small, enclosed rear garden. The property appears to be in good condition, with a recently modernised kitchen and bathroom visible in the photos. However, the average price per square foot in the area is £370, and this property is considerably smaller than average (776.75 sqft vs 1207 sqft average). The average house price in the area is significantly higher at £446,743. Considering the smaller size and lower average price per sqft compared to the surrounding properties, the asking price of £345,000 might be considered reasonable, especially given its good condition and location. More information on the plot size would be beneficial for a more comprehensive evaluation.

Therefore, we give this property 7 / 10. *Disclaimer: This is our option and does constitute a recommendation or financial advice. Do your own research. *

Price
7
Condition
8
Location
8
Land
6
Bedrooms
4
Bathrooms
1
Sqft (est)
776.75

The heatmap indicates the level of crime in the area. The color of the heatmap indicates the crime severity and recency.

Metrics Year-on-Year

Average area value
494,894.00 £
Decreased by 1.40 %
from 501,942.00 £
Est sale value
361,965.50 £
Increased by 142.71 %
from 149,136.00 £
Average area rental value
1,244.00 £/mo
Increased by 14.23 %
from 1,089.00 £/mo
Est letting value
776.75 £/mo
from 0.00 £/mo
Est rental Yield
3.02 %
Increased by 16.15 %
from 2.60 %
Crime Rate
15.00 %
Unchanged by 0.00 %
from 15.00 %

Agent Activity

  • YOUR MOVE - Edwards created the listing.

Nearby Schools

NameTypeOfstedDistance
Sidmouth Church Of England (Va) Primary SchoolAcademy ConverterGood0.96 KM
Sidmouth CollegeCommunity SchoolGood1.06 KM
Sidmouth Children'S CentreChildren's Centre1.49 KM
St John'S SchoolOther Independent School1.59 KM
Sidbury Church Of England Primary SchoolAcademy ConverterGood3.87 KM

Images

Picture No. 05 Picture No. 06 Picture No. 16 Picture No. 09 Picture No. 25 Picture No. 14 Picture No. 17 Picture No. 20 Picture No. 19 Picture No. 07 Picture No. 13 Picture No. 11 Picture No. 18 Picture No. 02 Picture No. 23 Picture No. 21 Picture No. 24

Nearby Streets

NameAverage PriceAverage SqftDistance
Winslade Road £ 260,00000.00 KM
Elim Close £ 355,00000.00 KM
Hill View £ 000.00 KM
Denbiegh Terrace £ 000.00 KM
The Grove £ 430,00000.00 KM

Nearby Listings

AddressPriceTypeScoreDistance
Temple Street, Sidmouth, Devon £ 245,000BUY6 / 100.07 KM
Temple Street, Sidmouth, Devon, EX10 £ 195,000BUY7 / 100.11 KM
Temple Gardens, Sidmouth £ 105,000BUY7 / 100.11 KM
Temple Street, Sidmouth, Devon, EX10 £ 340,000BUY7 / 100.12 KM
Temple Gardens, Sidmouth, Devon £ 70,250BUY7 / 100.12 KM

Nearby Properties

AddressPriceDistance
132 Temple Street £ 99,9500.01 KM
106 Temple Street £ 200,0000.01 KM
128 Temple Street £ 271,0000.01 KM
88 Temple Street £ 245,0000.01 KM
122 Temple Street £ 250,0000.01 KM