CA
Harold Grove, Leeds
By Castlehill
£ 995
Castlehill says ..
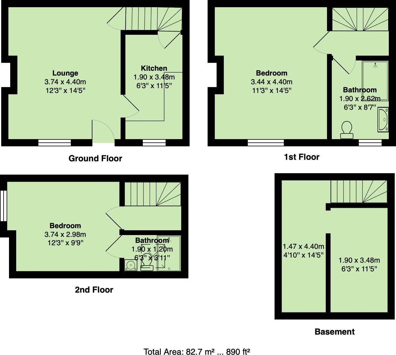
FULLY REFURBISHED & BRAND NEW INTERIOR - A MUST SEE ASAP! You will not be disappointed and early viewing strongly recommended! The property now enjoys extremely good quality, brand new accommodation comprising, newly fitted kitchen, two new shower rooms & wc's, new flooring, fu...
- Bedrooms
- 2
- Bathrooms
- 2
The heatmap indicates the level of crime in the area. The color of the heatmap indicates the crime severity and recency.
Metrics Year-on-Year
- Average area value
- 319,056.00 £Increased by 4.59 %
- Average area rental value
- 864.00 £/moDecreased by 2.92 %
- Est rental Yield
- 3.25 %Decreased by 7.14 %
- Crime Rate
- 14.00 %Unchanged by 0.00 %
from 305,060.00 £
from 890.00 £/mo
from 3.50 %
from 14.00 %
Agent Activity
Castlehill created the listing.
Nearby Schools
| Name | Type | Ofsted | Distance |
|---|---|---|---|
| Brudenell Primary School | Foundation School | Good | 0.55 KM |
| Rosebank Primary School | Foundation School | Good | 0.81 KM |
| Burley Park Children'S Centre | Children's Centre | 0.87 KM | |
| Spring Bank Primary School | Community School | Requires improvement | 0.99 KM |
| Burley St Matthias Church Of England Voluntary Controlled Primary School | Voluntary Controlled School | Good | 1.05 KM |
Images
Nearby Streets
| Name | Average Price | Average Sqft | Distance |
|---|---|---|---|
| Back Autumn Road | £ 0 | 0 | 0.00 KM |
| Back Chiswick Terrace | £ 0 | 0 | 0.00 KM |
| Kelsall Road | £ 0 | 0 | 0.00 KM |
| Hill Top Road | £ 0 | 0 | 0.00 KM |
| Alexandra Park | £ 255,350 | 0 | 0.00 KM |
Nearby Transport
| Name | NLC | TLC | Distance |
|---|---|---|---|
| Burley Park | 8500 | BUY | 0.74 KM |
| Headingley | 8498 | HDY | 2.67 KM |
| Leeds | 8487 | LDS | 3.02 KM |
| Cottingley | 8505 | COT | 4.90 KM |
| Kirkstall Forge | 6544 | KLF | 5.83 KM |
Nearby Listings
| Address | Price | Type | Score | Distance |
|---|---|---|---|---|
| Harold Grove, Leeds | £ 800 | RENT | Unknown | 0.00 KM |
| Harold Grove, Leeds | £ 524 | RENT | Unknown | 0.00 KM |
| Harold Grove, Leeds | £ 850 | RENT | Unknown | 0.00 KM |
| Harold Grove, Leeds | £ 995 | RENT | Unknown | 0.00 KM |
| Harold Street, Hyde Park Leeds LS6 1PL | £ 1,000 | RENT | Unknown | 0.00 KM |
Nearby Properties
| Address | Price | Distance |
|---|---|---|
| 53 Harold Grove | £ 60,000 | 0.00 KM |
| 9 Harold Street | £ 154,250 | 0.00 KM |
| 37 Harold Street | £ 86,500 | 0.00 KM |
| 1 Harold Grove | £ 112,000 | 0.00 KM |
| 54 Harold Grove | £ 149,500 | 0.00 KM |