Westminster Chambers, Gell Street, Sheffield, S3
By Crapper & Haigh
£ 825
Crapper & Haigh says ..
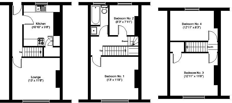
4 WESTMINSTER CHAMBERS, GELL STREET, SHEFFIELD, S3 7QW <br /> <br />(REF:- 1522) <br /> <br />RENT - £ 825 pcm. <br /> <br />Looking out over Glossop Road, only a stones throw from Sheffield University Main Campus, and also within walking distance of the Hallamshire Hospital, Children's Hospital and Weston Park Hospital. <br /> <br />The property offers spacious accommodation which has been recently refurbished and, whilst available to Let on an UnFurnished basis, is carpeted throughout and also has blinds to the windows. <br /> <br />With the benefit of gas fired small bore central heating and uPVC framed double glazed replacement windows, the accommodation comprises:- <br /> <br />ON THE FIRST FLOOR <br /> <br />ENTRANCE HALL. <br />LOUNGE (about 13' x 11'6") having a window looking out over Glossop Road and a period slate cast and tile fireplace surround. A picture rail to the walls. <br />KITCHEN (about 10'10" x 9'6") having a stainless steel sink unit with mixer tap set into a working surface with cupboards and drawers below together with space, plumbing and drainage for an automatic washing machine. Facing is a further working surface with a built in oven and hob and space for an under counter refrigerator. There are ranges of wall cupboards which part conceal the central heating boiler and the walls above the working surfaces are part clad. The original range has been returned as a decorative feature and there are a range of alcove cupboards to one side. Under stairs STORE/PANTRY. <br /> <br />ON THE SECOND FLOOR <br /> <br />LANDING. <br />BEDROOM NO.1 (about 13' x 11'8") looking to the front of the property and having a period fireplace surround. <br />BEDROOM NO.2 (about 8'3" x 7'11") being to the rear and having a period fireplace surround. <br />Refitted BATHROOM/W.C., having a white suite with chrome fittings comprising panel bath, with mains shower over, pedestal wash hand basin and low flush W.C. The walls are part ceramic tiled. <br /> <br />ON THE THIRD FLOOR <br /> <br />LANDING with Velux roof light. <br />BEDROOM NO.3 (about 12'11" x 11'8") having a period fireplace surround and a closet off. <br />BEDROOM NO.4 (about 12'11" x 8'3") looking to the rear. <br /> <br />OUTSIDE <br /> <br />A small BALCONY AREA subject to Cross Rights for Occupiers of adjoining properties. <br /> <br />GENERAL REMARKS <br /> <br />TENURE The property is available to Let on an UnFurnished basis for a period of between 6 and 12 months certain by way of an Assured Shorthold Tenancy at a rental of £825 per calendar month Exclusive. <br /> <br />RATING ASSESSMENT We are verbally advised by the Local Authority that the property is assessed for Council Tax purposes to Band A. <br /> <br />INVENTORY An Inventory of Contents and Report on Condition will be prepared for attaching to the lease. <br /> <br />DEPOSIT A Deposit of £875 will be required to be held against possible breakage or damage. <br /> <br />VIEWING To view and for any additional information please contact the Sole Letting Agents:- Messrs. Crapper & Haigh, Chartered Valuation Surveyors, Auctioneers & Estate Agents, 9-11 Figtree Lane, Sheffield.S1.2DJ.
- Bedrooms
- 4
- Bathrooms
- 0
The heatmap indicates the level of crime in the area. The color of the heatmap indicates the crime severity and recency.
Metrics Year-on-Year
- Average area value
- 123,441.00 £Decreased by 13.64 %
- Average area rental value
- 1,222.00 £/moIncreased by 27.69 %
- Est rental Yield
- 11.88 %Increased by 47.95 %
- Crime Rate
- 3.00 %Unchanged by 0.00 %
Agent Activity
Crapper & Haigh created the listing.
Nearby Schools
| Name | Type | Ofsted | Distance |
|---|---|---|---|
| Springfield Primary School | Community School | Good | 0.31 KM |
| Broomhall Nursery School | Local Authority Nursery School | Outstanding | 0.66 KM |
| University Of Sheffield | Higher Education Institutions | Good | 0.67 KM |
| Bethany School | Other Independent School | Good | 0.70 KM |
| Netherthorpe Primary School | Community School | Good | 0.71 KM |
Images
Nearby Streets
| Name | Average Price | Average Sqft | Distance |
|---|---|---|---|
| Conway Street | £ 0 | 0 | 0.00 KM |
| Gell Street | £ 0 | 0 | 0.00 KM |
| Leavy Greave Road | £ 0 | 0 | 0.00 KM |
| Brook Hill | £ 0 | 0 | 0.00 KM |
| Brook Lane | £ 0 | 0 | 0.00 KM |
Nearby Transport
| Name | NLC | TLC | Distance |
|---|---|---|---|
| Sheffield | 6691 | SHF | 2.30 KM |
| Dore And Totley | 6690 | DOR | 6.84 KM |
| Darnall | 6729 | DAN | 7.79 KM |
| Meadowhall | 6663 | MHS | 8.79 KM |
| Dronfield | 6616 | DRO | 8.89 KM |
Nearby Listings
| Address | Price | Type | Score | Distance |
|---|---|---|---|---|
| 82 Gell Street, Broomhall, Sheffield | £ 510 | RENT | Unknown | 0.06 KM |
| Wilkinson Street, Sheffield | £ 96 | RENT | Unknown | 0.07 KM |
| Victoria House, Victoria Street, Sheffield City Centre, S3 | £ 1,175 | RENT | Unknown | 0.09 KM |
| Victoria House, Victoria Street, Sheffield, S3 | £ 1,150 | RENT | Unknown | 0.09 KM |
| Victoria House, 52 Victoria Street, Sheffield, S3 | £ 775 | RENT | Unknown | 0.09 KM |
Nearby Properties
| Address | Price | Distance |
|---|---|---|
| 70 Victoria Street | £ 36,000 | 0.09 KM |
| 76 Victoria Street | £ 63,000 | 0.09 KM |
| 10 Wilkinson Street | £ 350,000 | 0.10 KM |
| 11 Wilkinson Street | £ 382,000 | 0.10 KM |
| 9 Wilkinson Street | £ 332,000 | 0.10 KM |