Winkworth says ..
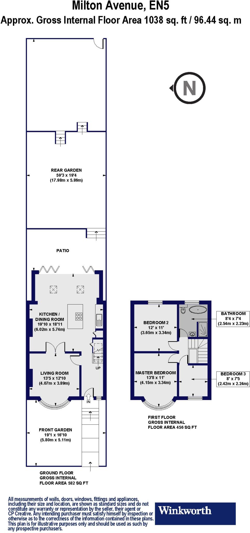
A three bedroom 1930's built terraced family house which has been the subject of improvement and extension. There is an open plan kitchen/breakfast/dining room at the rear with a centre island and bi-fold doors across the rear to the garden. In addition there is a front reception room and three b...
Property Oracle says ..
This three-bedroom terraced house in Barnet, Greater London is listed at £675,000. The property boasts a modern, extended kitchen with bi-fold doors leading to a garden with a pizza oven. The location is convenient, with nearby schools and transportation links. However, the average price per square foot in the area is £561, and this property is smaller than average at 942 sqft. While the property appears to be in good condition and has been recently updated, the asking price may be slightly higher than the average for similar properties in the area.
Therefore, we give this property 7 / 10. *Disclaimer: This is our option and does constitute a recommendation or financial advice. Do your own research. *
- Price
- 7
- Condition
- 9
- Location
- 8
- Land
- 7
- Bedrooms
- 3
- Bathrooms
- 1
- Sqft (est)
- 942.00
- Lot (est)
- 1,038.00
The heatmap indicates the level of crime in the area. The color of the heatmap indicates the crime severity and recency.
Metrics Year-on-Year
- Average area value
- 611,244.00 £Decreased by 15.06 %
- Est sale value
- 513,390.00 £Decreased by 7.78 %
- Average area rental value
- 2,619.00 £/moIncreased by 31.34 %
- Est letting value
- 1,884.00 £/moIncreased by 100.00 %
- Est rental Yield
- 5.14 %Increased by 54.82 %
- Crime Rate
- 5.00 %Unchanged by 0.00 %
Agent Activity
Winkworth created the listing.
Nearby Schools
| Name | Type | Ofsted | Distance |
|---|---|---|---|
| Queen Elizabeth'S Girls' School | Academy Converter | Good | 0.49 KM |
| St Catherine'S Rc School | Voluntary Aided School | Outstanding | 0.52 KM |
| Barnet And Southgate College | Further Education | Requires improvement | 0.62 KM |
| Susi Earnshaw Theatre School | Other Independent School | 0.66 KM | |
| Ark Pioneer Academy | Free Schools | 0.73 KM |
Images
Nearby Streets
| Name | Average Price | Average Sqft | Distance |
|---|---|---|---|
| Hermes Close | £ 0 | 0 | 0.00 KM |
| Finch Close | £ 0 | 0 | 0.00 KM |
| Underhill | £ 325,000 | 0 | 0.00 KM |
| Lion Yard | £ 0 | 0 | 0.00 KM |
| Oyster Close | £ 725,000 | 0 | 0.00 KM |
Nearby Transport
| Name | NLC | TLC | Distance |
|---|---|---|---|
| New Barnet | 6018 | NBA | 2.79 KM |
| Hadley Wood | 6075 | HDW | 3.37 KM |
| Oakleigh Park | 6020 | OKL | 3.71 KM |
| Potters Bar | 6022 | PBR | 5.54 KM |
| Mill Hill Broadway | 1527 | MIL | 6.82 KM |
Nearby Listings
| Address | Price | Type | Score | Distance |
|---|---|---|---|---|
| Milton Avenue, Barnet, EN5 | £ 675,000 | BUY | 7 / 10 | 0.00 KM |
| Milton Avenue, Barnet, EN5 | £ 700,000 | BUY | 7 / 10 | 0.06 KM |
| Milton Avenue, Barnet, EN5 | £ 735,000 | BUY | 6 / 10 | 0.08 KM |
| Woodfall Avenue, High Barnet, EN5 | £ 750,000 | BUY | 8 / 10 | 0.13 KM |
| Woodfall Avenue, High Barnet, Hertfordshire, EN5 | £ 975,000 | BUY | 7 / 10 | 0.15 KM |
Nearby Properties
| Address | Price | Distance |
|---|---|---|
| 57 Milton Avenue | £ 480,000 | 0.01 KM |
| 49 Milton Avenue | £ 250,000 | 0.01 KM |
| 55 Milton Avenue | £ 250,000 | 0.01 KM |
| 39 Milton Avenue | £ 325,000 | 0.01 KM |
| 29 Milton Avenue | £ 625,000 | 0.01 KM |