OC
Priory Gardens, Shirehampton, Bristol
By Ocean
£ 525,000
Reviews
3 out of 5 stars
Ocean says ..
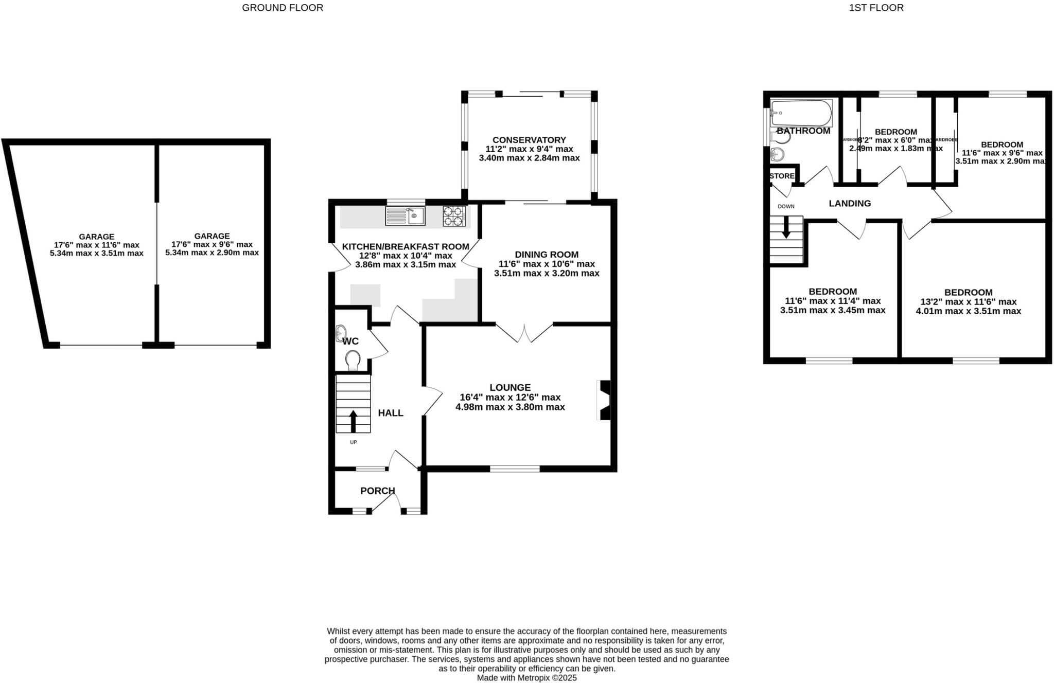
Rarely available four-bedroom detached house with two garages and no onward chain.
Property Oracle says ..
Therefore, we give this property 6 / 10. *Disclaimer: This is our option and does constitute a recommendation or financial advice. Do your own research. *
- Price
- 5
- Condition
- 6
- Location
- 7
- Land
- 7
- Bedrooms
- 4
- Bathrooms
- 1
- Sqft (est)
- 1,368.08
The heatmap indicates the level of crime in the area. The color of the heatmap indicates the crime severity and recency.
Metrics Year-on-Year
- Average area value
- 314,285.00 £Decreased by 23.82 %
- Est sale value
- 470,619.52 £Increased by 13.53 %
- Average area rental value
- 1,470.00 £/moIncreased by 11.20 %
- Est letting value
- 1,368.08 £/mo
- Est rental Yield
- 5.61 %Increased by 45.71 %
- Crime Rate
- 21.00 %Unchanged by 0.00 %
from 412,530.00 £
from 414,528.24 £
from 1,322.00 £/mo
from 0.00 £/mo
from 3.85 %
from 21.00 %
Agent Activity
Ocean created the listing.
Nearby Schools
| Name | Type | Ofsted | Distance |
|---|---|---|---|
| Shirehampton Primary School | Community School | Good | 0.37 KM |
| Oasis Academy Brightstowe | Academy Sponsor Led | Good | 0.68 KM |
| Nova Primary School | Community School | Good | 0.76 KM |
| Avonmouth Children'S Centre | Children's Centre | 1.38 KM | |
| Avonmouth Church Of England Primary School | Voluntary Controlled School | Good | 1.40 KM |
Images
Nearby Streets
| Name | Average Price | Average Sqft | Distance |
|---|---|---|---|
| Saint Tecla Close | £ 196,975 | 0 | 0.00 KM |
| Woodview Close | £ 0 | 0 | 0.00 KM |
| Stroud Road | £ 0 | 0 | 0.00 KM |
| Watchhouse Road | £ 325,000 | 0 | 0.00 KM |
| Catherine Street | £ 225,000 | 0 | 0.00 KM |
Nearby Transport
| Name | NLC | TLC | Distance |
|---|---|---|---|
| Shirehampton | 3206 | SHH | 0.66 KM |
| Avonmouth | 3200 | AVN | 2.51 KM |
| St Andrews Road | 3252 | SAR | 3.14 KM |
| Sea Mills | 3254 | SML | 3.43 KM |
| Severn Beach | 3205 | SVB | 7.93 KM |
Nearby Listings
| Address | Price | Type | Score | Distance |
|---|---|---|---|---|
| Priory Gardens, Shirehampton, Bristol | £ 525,000 | BUY | 6 / 10 | 0.00 KM |
| *INVESTMENT OPPORTUNITY* Shirehampton, High Street, Bristol, BS11 | £ 1,150,000 | BUY | 6 / 10 | 0.04 KM |
| Priory Gardens, Shirehampton, Bristol | £ 440,000 | BUY | 6 / 10 | 0.04 KM |
| Tregenna House, High Street, Shirehampton, Bristol | £ 170,000 | BUY | Unknown | 0.06 KM |
| Tregenna House, 70 High Street, Shirehampton, Bristol | £ 180,000 | BUY | 7 / 10 | 0.06 KM |
Nearby Properties
| Address | Price | Distance |
|---|---|---|
| 9 Priory Gardens | £ 177,500 | 0.03 KM |
| 10 Priory Gardens | £ 208,000 | 0.03 KM |
| 12 Priory Gardens | £ 220,000 | 0.03 KM |
| 4 Priory Gardens | £ 231,000 | 0.03 KM |
| 13 Priory Gardens | £ 195,000 | 0.03 KM |