The Green, Acomb, York
EM

The Green, Acomb, York

By Emsley Mavor

£ 419,950

Reviews

3 out of 5 stars

Emsley Mavor says ..

STYLE - Beautifully Styled Period Terraced Home HIGHLIGHTS - Sympathetically Updated (See Agents Note), Any Lucky Buyer can Simply Move Their Furniture in and Call it HOME! THREE WORDS - Character. Perfect. Lifestyle.

Property Oracle says ..

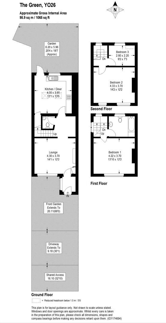
This three-bedroom terraced house is located on The Green in Acomb, York. The property benefits from a good-sized rear garden, which is a significant advantage given the lack of plot size information in the listing. The interior is presented in good condition, with a modern kitchen and updated bathrooms. The property features exposed beams, adding character and charm, and appears well-maintained. The location in Acomb places it within reasonable distance of York city centre and benefits from nearby schools and transport links. However, the average price per square foot in the area is considerably higher than that of the subject property, suggesting it may represent good value. More information regarding the plot size would provide a more comprehensive analysis.

Therefore, we give this property 7 / 10. *Disclaimer: This is our option and does constitute a recommendation or financial advice. Do your own research. *

Price
9
Condition
8
Location
7
Land
7
Bedrooms
3
Bathrooms
1
Sqft (est)
1,064.55

The heatmap indicates the level of crime in the area. The color of the heatmap indicates the crime severity and recency.

Metrics Year-on-Year

Average area value
591,875.00 £
Increased by 5.13 %
from 562,987.00 £
Est sale value
507,790.35 £
Decreased by 6.47 %
from 542,920.50 £
Average area rental value
1,194.00 £/mo
Decreased by 3.63 %
from 1,239.00 £/mo
Est letting value
0.00 £/mo
Decreased by 100.00 %
from 1,064.55 £/mo
Est rental Yield
2.42 %
Decreased by 8.33 %
from 2.64 %
Crime Rate
7.00 %
Unchanged by 0.00 %
from 7.00 %

Agent Activity

  • Emsley Mavor created the listing.

Nearby Schools

NameTypeOfstedDistance
York High SchoolAcademy Sponsor Led0.77 KM
Carr Children'S CentreChildren's Centre0.91 KM
Carr Junior SchoolAcademy Converter0.91 KM
Carr Infant SchoolCommunity SchoolGood0.93 KM
Westfield Children'S CentreChildren's Centre0.95 KM

Images

29_The_Green_13.jpg 29_The_Green__9.jpg 29_The_Green__8.jpg 29_The_Green__1.jpg 29_The_Green__5.jpg 29_The_Green_1.jpg 29_The_Green_25.jpg 29_The_Green_22.jpg 29_The_Green_31.jpg 29_The_Green_34.jpg 29_The_Green_37.jpg 29_The_Green_46.jpg 29_The_Green_28.jpg 29_The_Green__3.jpg 29_The_Green__2.jpg 29_The_Green_4.jpg 29_The_Green_7.jpg 29_The_Green_10.jpg 29_The_Green__4.jpg 29_The_Green__6.jpg 29_The_Green__7.jpg 29_The_Green_19.jpg 29_The_Green_16.jpg 29_The_Green_40.jpg 29_The_Green_43.jpg 29_The_Green_49.jpg

Nearby Streets

NameAverage PriceAverage SqftDistance
Meeting House Lane £ 000.00 KM
Vyner House £ 000.00 KM
Croft Way £ 000.00 KM
Rosemary Road £ 356,41200.00 KM
St Anthony Court £ 000.00 KM

Nearby Transport

NameNLCTLCDistance
Poppleton8254POP3.03 KM
York8263YRK4.13 KM

Nearby Listings

AddressPriceTypeScoreDistance
The Green, Acomb, York £ 419,950BUY7 / 100.00 KM
The Green, Acomb, York £ 420,000BUYUnknown0.00 KM
The Green, Acomb, YO26 £ 575,000BUY6 / 100.02 KM
Church Mews, Stockton on Forest, York £ 345,000BUYUnknown0.12 KM
Church Mews, Acomb, York, YO26 £ 170,000BUY5 / 100.15 KM

Nearby Properties

AddressPriceDistance
7 The Green £ 300,0000.01 KM
23 The Green £ 132,5000.01 KM
13 The Green £ 96,2500.01 KM
29 The Green £ 281,5000.01 KM
5 The Green £ 354,0000.01 KM