Nelson Street, Shotton, Deeside, Flintshire, CH5
By William Gleave
£ 160,000
Reviews
3 out of 5 stars
William Gleave says ..
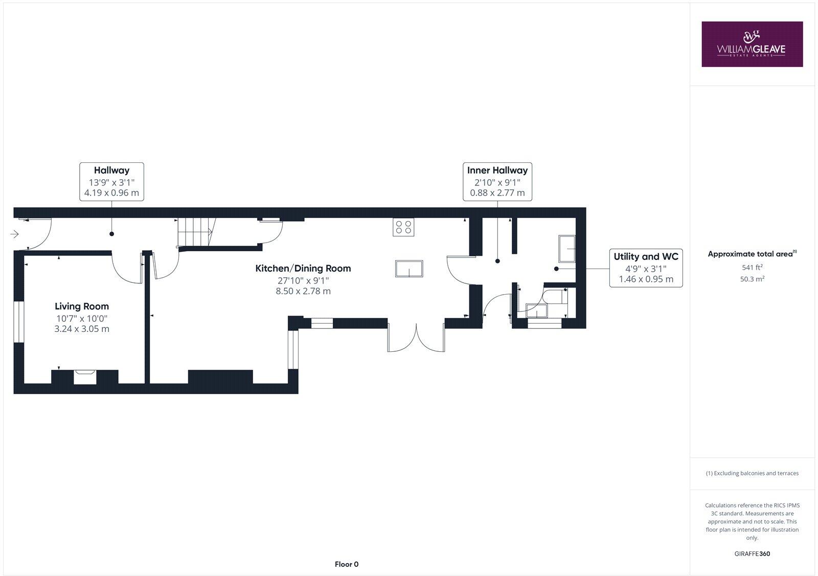
NO ONWARD CHAIN | RECENTLY RENOVATED THROUGHOUT | THREE BEDROOMS | FAMILY BATHROOM AND DOWNSTAIRS WC | PARKING TO THE REAR | LOW MAINTENANCE GARDENS We are pleased to market this three-bedroom mid terraced house that has recently been renovated throughout. Ideal for first-time buyers, ...
Property Oracle says ..
This is a terraced property located on Nelson Street in Shotton, Flintshire. The house has 3 bedrooms and 2 bathrooms. The property appears to be in good condition, with modern interior finishes. It includes a small garden. The location offers proximity to schools and transportation, including the Shotton train station. The asking price is £160,000, which is above the average price per square foot for the area, but the condition of the property justifies this.
Therefore, we give this property 6 / 10. *Disclaimer: This is our option and does constitute a recommendation or financial advice. Do your own research. *
- Price
- 7
- Condition
- 8
- Location
- 6
- Land
- 6
- Bedrooms
- 3
- Bathrooms
- 2
- Sqft (est)
- 412.93
The heatmap indicates the level of crime in the area. The color of the heatmap indicates the crime severity and recency.
Metrics Year-on-Year
- Average area value
- 267,500.00 £Decreased by 0.99 %
- Est sale value
- 106,123.01 £Increased by 5.33 %
- Average area rental value
- 1,107.00 £/moDecreased by 6.11 %
- Est letting value
- 412.93 £/moUnchanged by 0.00 %
- Est rental Yield
- 4.97 %Decreased by 5.15 %
- Crime Rate
- 27.00 %Unchanged by 0.00 %
Agent Activity
William Gleave created the listing.
Nearby Schools
| Name | Type | Ofsted | Distance |
|---|---|---|---|
| Plas Derwen | Welsh Establishment | 0.35 KM | |
| Ven. Edward Morgan R.C. Primary School | Welsh Establishment | 0.39 KM | |
| Queens Ferry C.P. School | Welsh Establishment | 1.00 KM | |
| St Ethelwold'S Primary School | Welsh Establishment | 1.20 KM | |
| Penarlag C.P. School | Welsh Establishment | 2.37 KM |
Images
Nearby Streets
| Name | Average Price | Average Sqft | Distance |
|---|---|---|---|
| Llys Tomos | £ 0 | 0 | 0.00 KM |
| Marina Drive | £ 0 | 0 | 0.00 KM |
| Connaught Avenue | £ 0 | 0 | 0.00 KM |
| Clarence Street | £ 100,000 | 0 | 0.00 KM |
| Llys Ceibren | £ 0 | 0 | 0.00 KM |
Nearby Transport
| Name | NLC | TLC | Distance |
|---|---|---|---|
| Shotton | 2546 | SHT | 0.14 KM |
| Hawarden Bridge | 2146 | HWB | 0.78 KM |
| Hawarden | 2428 | HWD | 3.08 KM |
| Buckley | 2422 | BCK | 5.89 KM |
| Penyffordd | 2433 | PNF | 7.97 KM |
Nearby Listings
| Address | Price | Type | Score | Distance |
|---|---|---|---|---|
| Nelson Street, Shotton, Deeside, Flintshire, CH5 | £ 160,000 | BUY | 6 / 10 | 0.00 KM |
| Chester Close, Shotton, CH5 | £ 220,000 | BUY | 7 / 10 | 0.15 KM |
| Chester Road East, Shotton, Deeside | £ 110,000 | BUY | 5 / 10 | 0.16 KM |
| 52 Ash Grove, Shotton, Deeside, Flintshire CH5 1AG | £ 40,000 | BUY | 5 / 10 | 0.18 KM |
| Alexandra Street, Shotton, Deeside | £ 110,000 | BUY | 5 / 10 | 0.18 KM |
Nearby Properties
| Address | Price | Distance |
|---|---|---|
| 41 Nelson Street | £ 104,050 | 0.03 KM |
| 71b Nelson Street | £ 23,000 | 0.03 KM |
| 25 Nelson Street | £ 112,500 | 0.03 KM |
| 23 Nelson Street | £ 62,000 | 0.03 KM |
| 27 Nelson Street | £ 97,000 | 0.03 KM |