The Waldrons, Rowplatt Lane, Felbridge, RH19
By Trilogy
£ 650,000
Reviews
3 out of 5 stars
Trilogy says ..
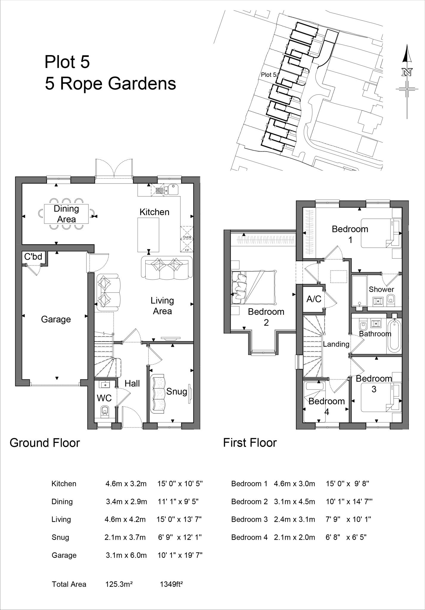
LAST PLOT REMAINING! READY FOR OCCUPATION! An exceptionally well designed and meticulously specified three/four bedroom, two bathroom semi-detached family home, located in a small and exclusive development. The Waldrons is an exclusive collection of nine, detached & semi-detac...
Property Oracle says ..
This is a modern semi-detached property located in Felbridge, Surrey. The house features four bedrooms and two bathrooms, making it suitable for families. The interior is in excellent condition, with modern fixtures and fittings throughout. It benefits from off-street parking and a garden. Felbridge Primary School is nearby, and East Grinstead train station is approximately 4km away. The property is listed at £650,000, which is higher than the average price per square foot for the area, but this reflects the property’s excellent condition and recent construction.
Therefore, we give this property 7 / 10. *Disclaimer: This is our option and does constitute a recommendation or financial advice. Do your own research. *
- Price
- 6
- Condition
- 9
- Location
- 7
- Land
- 7
- Bedrooms
- 4
- Bathrooms
- 2
- Sqft (est)
- 1,348.72
The heatmap indicates the level of crime in the area. The color of the heatmap indicates the crime severity and recency.
Metrics Year-on-Year
- Average area value
- 383,000.00 £Increased by 12.20 %
- Est sale value
- 465,308.40 £Increased by 30.19 %
- Average area rental value
- 764.00 £/moDecreased by 19.32 %
- Est letting value
- 0.00 £/mo
- Est rental Yield
- 2.39 %Decreased by 28.23 %
- Crime Rate
- 35.00 %Unchanged by 0.00 %
Agent Activity
Trilogy created the listing.
Nearby Schools
| Name | Type | Ofsted | Distance |
|---|---|---|---|
| Felbridge Primary School | Community School | Good | 0.82 KM |
| Imberhorne School | Community School | Good | 2.12 KM |
| Crawley Down Village Cofe | Voluntary Controlled School | Good | 2.85 KM |
| Halsford Park Primary School | Academy Converter | Good | 3.04 KM |
| St Peter'S Catholic Primary School | Voluntary Aided School | Good | 3.09 KM |
Images
Nearby Streets
| Name | Average Price | Average Sqft | Distance |
|---|---|---|---|
| Mortain Road | £ 425,000 | 0 | 0.00 KM |
| Birch Grove | £ 700,000 | 0 | 0.00 KM |
| Sinden Heath | £ 0 | 0 | 0.00 KM |
| Birches View | £ 925,000 | 0 | 0.00 KM |
| Whittington College | £ 0 | 0 | 0.00 KM |
Nearby Transport
| Name | NLC | TLC | Distance |
|---|---|---|---|
| East Grinstead | 5486 | EGR | 4.16 KM |
| Dormans | 5413 | DMS | 5.71 KM |
| Lingfield | 5369 | LFD | 6.57 KM |
| Godstone | 5474 | GDN | 8.80 KM |
Nearby Listings
| Address | Price | Type | Score | Distance |
|---|---|---|---|---|
| The Waldrons, Rowplatt Lane, Felbridge, RH19 | £ 665,000 | BUY | 7 / 10 | 0.00 KM |
| The Waldrons, Rowplatt Lane, Felbridge, RH19 | £ 535,000 | BUY | 6 / 10 | 0.00 KM |
| The Waldrons, Rowplatt Lane, Felbridge, RH19 | £ 650,000 | BUY | 7 / 10 | 0.00 KM |
| The Waldrons, Rowplatt Lane, Felbridge, RH19 | £ 699,950 | BUY | 7 / 10 | 0.00 KM |
| Rowplatt Lane, Felbridge, East Grinstead, RH19 2PA | £ 525,000 | BUY | 7 / 10 | 0.01 KM |
Nearby Properties
| Address | Price | Distance |
|---|---|---|
| 24a Rowplatt Lane | £ 360,000 | 0.01 KM |
| Pixie Wood Farm | £ 825,000 | 0.01 KM |
| 7 Rowplatt Lane | £ 390,000 | 0.01 KM |
| 8 Rowplatt Lane | £ 390,000 | 0.01 KM |
| Glentrool 23 Rowplatt Lane | £ 132,000 | 0.01 KM |