Mudge Way, Plymouth, Devon
BR

Mudge Way, Plymouth, Devon

By Bradleys

£ 150,000

Reviews

3 out of 5 stars

Bradleys says ..

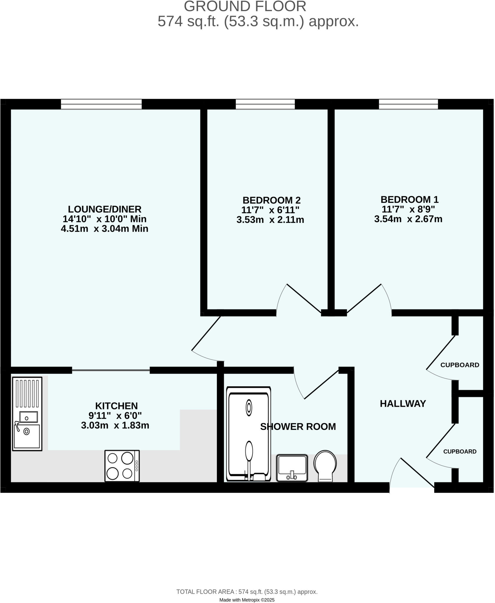
Close to Amenities Situated in the heart of Plympton, Ridgeway this two-bedroom ground floor apartment for the over 60's. Located within a secure premises. Offering both a low maintenance lifestyle and independent living. The property benefits from lift access to all floors, communal lo...

Property Oracle says ..

This property is a 2 bedroom apartment located in Plympton Erle, Plymouth. The apartment appears to be in good condition, with a modern kitchen and bathroom. While the property itself is in good condition, the surrounding area has a mix of property values. There are some nearby schools, but transportation information was not provided. The list price is below the average price for the area, but significantly higher than the price per sqft. More information is needed to accurately assess the land.

Therefore, we give this property 6 / 10. *Disclaimer: This is our option and does constitute a recommendation or financial advice. Do your own research. *

Price
7
Condition
8
Location
6
Land
3
Bedrooms
2
Bathrooms
1
Sqft (est)
397.00
Lot (est)
574.00

The heatmap indicates the level of crime in the area. The color of the heatmap indicates the crime severity and recency.

Metrics Year-on-Year

Average area value
265,555.00 £
Decreased by 8.31 %
from 289,627.00 £
Est sale value
144,905.00 £
Increased by 79.80 %
from 80,591.00 £
Average area rental value
1,450.00 £/mo
Increased by 26.53 %
from 1,146.00 £/mo
Est letting value
397.00 £/mo
from 0.00 £/mo
Est rental Yield
6.55 %
Increased by 37.89 %
from 4.75 %
Crime Rate
35.00 %
Unchanged by 0.00 %
from 35.00 %

Agent Activity

  • Bradleys created the listing.

Nearby Schools

NameTypeOfstedDistance
Plum Tree Children'S CentreChildren's Centre0.21 KM
Plympton AcademyAcademy ConverterRequires improvement0.27 KM
Old Priory Junior AcademyAcademy ConverterRequires improvement0.42 KM
Plympton St Mary'S Cofe Infant SchoolAcademy Converter0.77 KM
Longcause Community Special SchoolCommunity Special SchoolGood0.98 KM

Images

Picture No. 07 Picture No. 13 Picture No. 09 Picture No. 15 Picture No. 02 Picture No. 04 Picture No. 12 Picture No. 03 Picture No. 05 Picture No. 06 Picture No. 10 Picture No. 11 Picture No. 14

Nearby Streets

NameAverage PriceAverage SqftDistance
St Stephen's Place £ 120,00000.00 KM
Stannary Lane £ 000.00 KM
Kennel Hill £ 220,00000.00 KM
Tommys Lane £ 300,00000.00 KM
Pinewood Close £ 000.00 KM

Nearby Listings

AddressPriceTypeScoreDistance
Mudge Way, Plymouth, Devon £ 150,000BUY6 / 100.00 KM
Dark Street Lane, Plymouth £ 265,000BUYUnknown0.07 KM
Ridgeway, Plymouth £ 70,000BUYUnknown0.08 KM
Plympton, Plymouth £ 130,000BUY6 / 100.14 KM
Priory Drive, Plymouth £ 280,000BUY7 / 100.17 KM

Nearby Properties

AddressPriceDistance
67a Ridgeway £ 405,0000.08 KM
20 Geasons Lane £ 240,0000.14 KM
28 Geasons Lane £ 210,0000.14 KM
26 Geasons Lane £ 235,0000.14 KM
30 Geasons Lane £ 236,0000.14 KM