JA
Palm Drive, St. Merryn, PL28
By Jackie Stanley
£ 325,000
Reviews
3 out of 5 stars
Jackie Stanley says ..
12 Palm Drive is located on the outskirts of the bustling and highly popular village of St Merryn, approximately four miles from Padstow.
Property Oracle says ..
Therefore, we give this property 7 / 10. *Disclaimer: This is our option and does constitute a recommendation or financial advice. Do your own research. *
- Price
- 9
- Condition
- 8
- Location
- 7
- Land
- 6
- Bedrooms
- 3
- Bathrooms
- 2
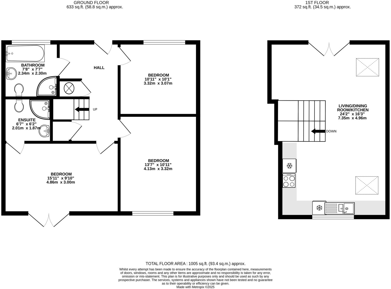
- Sqft (est)
- 905.24
The heatmap indicates the level of crime in the area. The color of the heatmap indicates the crime severity and recency.
Metrics Year-on-Year
- Average area value
- 1,382,727.00 £Increased by 100.01 %
- Est sale value
- 736,865.36 £Increased by 36.58 %
- Average area rental value
- 1,638.00 £/moIncreased by 35.60 %
- Est letting value
- 0.00 £/moDecreased by 100.00 %
- Est rental Yield
- 1.42 %Decreased by 32.38 %
- Crime Rate
- 35.00 %Unchanged by 0.00 %
from 691,318.00 £
from 539,523.04 £
from 1,208.00 £/mo
from 905.24 £/mo
from 2.10 %
from 35.00 %
Agent Activity
Jackie Stanley created the listing.
Nearby Schools
| Name | Type | Ofsted | Distance |
|---|---|---|---|
| St Merryn School | Academy Converter | Good | 1.86 KM |
| Trevisker Primary School | Academy Converter | Good | 3.83 KM |
| Padstow School | Academy Converter | Requires improvement | 4.88 KM |
| Mawgan-In-Pydar Primary School | Academy Converter | 6.68 KM | |
| St Issey Church Of England Primary School | Academy Converter | 6.97 KM |
Images
Nearby Streets
| Name | Average Price | Average Sqft | Distance |
|---|---|---|---|
| Lily Way | £ 0 | 0 | 0.00 KM |
| Pendarves Island Walk | £ 0 | 0 | 0.00 KM |
| Ivy Close | £ 205,000 | 0 | 0.00 KM |
| Warwick Close | £ 0 | 0 | 0.00 KM |
| Fairfield | £ 242,550 | 0 | 0.00 KM |
Nearby Listings
| Address | Price | Type | Score | Distance |
|---|---|---|---|---|
| Palm Drive, St. Merryn, PL28 | £ 325,000 | BUY | 7 / 10 | 0.00 KM |
| Palm Drive, St. Merryn, Padstow | £ 218,000 | BUY | 6 / 10 | 0.03 KM |
| St. Merryn, PL28 | £ 185,000 | BUY | 5 / 10 | 0.04 KM |
| St. Merryn, PL28 | £ 185,000 | BUY | 5 / 10 | 0.04 KM |
| St Merryn, PL28 | £ 795,000 | BUY | 7 / 10 | 0.10 KM |
Nearby Properties
| Address | Price | Distance |
|---|---|---|
| Rosedene | £ 164,000 | 0.11 KM |
| 11 Primrose Drive | £ 157,000 | 0.11 KM |
| 31a Primrose Drive | £ 215,000 | 0.11 KM |
| 14 Primrose Drive | £ 145,000 | 0.11 KM |
| 28 Primrose Drive | £ 147,250 | 0.11 KM |