Morval Close, Farnborough, Hampshire, GU14
By Bridges Estate Agents
£ 175,000
Reviews
3 out of 5 stars
Bridges Estate Agents says ..
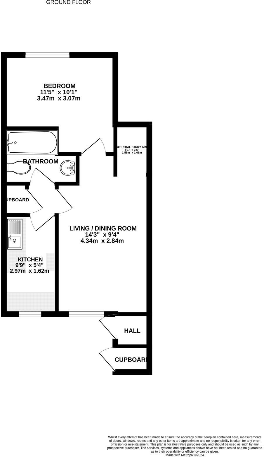
A well presented ground floor maisonette situated in a peaceful cul-de-sac in Farnborough offering a spacious double bedroom, generous lounge/diner and fitted kitchen. The property is well located for easy access to local amenities, transport links, well regarded local schools and the ...
Property Oracle says ..
This one-bedroom maisonette in Farnborough, Hampshire is conveniently located near local amenities, parks, and transportation links, including Farnborough’s main train station, which is approximately one mile away. The property appears to be in good condition based on the provided photos. While the listing does not specify the square footage or plot size, the presence of a small garden is evident in the photos. Considering the property’s location, apparent condition, and the presence of a garden, the list price of £175,000 appears reasonable when compared to similar properties in the area. However, without precise square footage information, a definitive price-per-square-foot analysis cannot be conducted.
Therefore, we give this property 7 / 10. *Disclaimer: This is our option and does constitute a recommendation or financial advice. Do your own research. *
- Price
- 7
- Condition
- 8
- Location
- 7
- Land
- 6
- Bedrooms
- 1
- Bathrooms
- 1
The heatmap indicates the level of crime in the area. The color of the heatmap indicates the crime severity and recency.
Metrics Year-on-Year
- Average area value
- 359,375.00 £Decreased by 28.31 %
- Average area rental value
- 1,575.00 £/moIncreased by 0.25 %
- Est rental Yield
- 5.26 %Increased by 39.89 %
- Crime Rate
- 5.00 %Unchanged by 0.00 %
Agent Activity
Bridges Estate Agents created the listing.
Nearby Schools
| Name | Type | Ofsted | Distance |
|---|---|---|---|
| Southwood Infant School | Community School | Good | 0.66 KM |
| Cove School | Foundation School | Good | 0.68 KM |
| Cove Junior School | Community School | Good | 0.76 KM |
| Cove Infant School | Community School | Requires improvement | 0.86 KM |
| Parsonage Farm Nursery And Infant School | Community School | Outstanding | 1.19 KM |
Images
Nearby Streets
| Name | Average Price | Average Sqft | Distance |
|---|---|---|---|
| Kendal Close | £ 0 | 0 | 0.00 KM |
| Church Lane | £ 675,000 | 0 | 0.00 KM |
| Apollo Rise | £ 407,500 | 0 | 0.00 KM |
| Rhine Banks | £ 0 | 0 | 0.00 KM |
| West Heath Roundabout | £ 0 | 0 | 0.00 KM |
Nearby Transport
| Name | NLC | TLC | Distance |
|---|---|---|---|
| Farnborough (Main) | 5521 | FNB | 2.87 KM |
| Blackwater | 5625 | BAW | 4.19 KM |
| Frimley | 5683 | FML | 4.30 KM |
| Farnborough North | 5688 | FNN | 4.35 KM |
| Fleet | 5522 | FLE | 5.46 KM |
Nearby Listings
| Address | Price | Type | Score | Distance |
|---|---|---|---|---|
| Morval Close, Farnborough, Hampshire, GU14 | £ 175,000 | BUY | 7 / 10 | 0.00 KM |
| Morval Close, Farnborough, Hampshire, GU14 | £ 190,000 | BUY | Unknown | 0.00 KM |
| Morval Close, Farnborough , GU14 | £ 185,000 | BUY | 6 / 10 | 0.02 KM |
| Morval Close, Farnborough, GU14 0JF | £ 195,000 | BUY | 7 / 10 | 0.03 KM |
| Southwood Road, Farnborough | £ 600,000 | BUY | 7 / 10 | 0.09 KM |
Nearby Properties
| Address | Price | Distance |
|---|---|---|
| 5 Morval Close | £ 183,000 | 0.02 KM |
| 4 Morval Close | £ 165,000 | 0.02 KM |
| 9 Morval Close | £ 139,995 | 0.02 KM |
| 10 Morval Close | £ 179,950 | 0.02 KM |
| 15 Morval Close | £ 186,000 | 0.02 KM |