SO
Characterful Flint Home With Countryside Views, Carbrooke
By Sowerbys
£ 350,000
Reviews
3 out of 5 stars
Sowerbys says ..
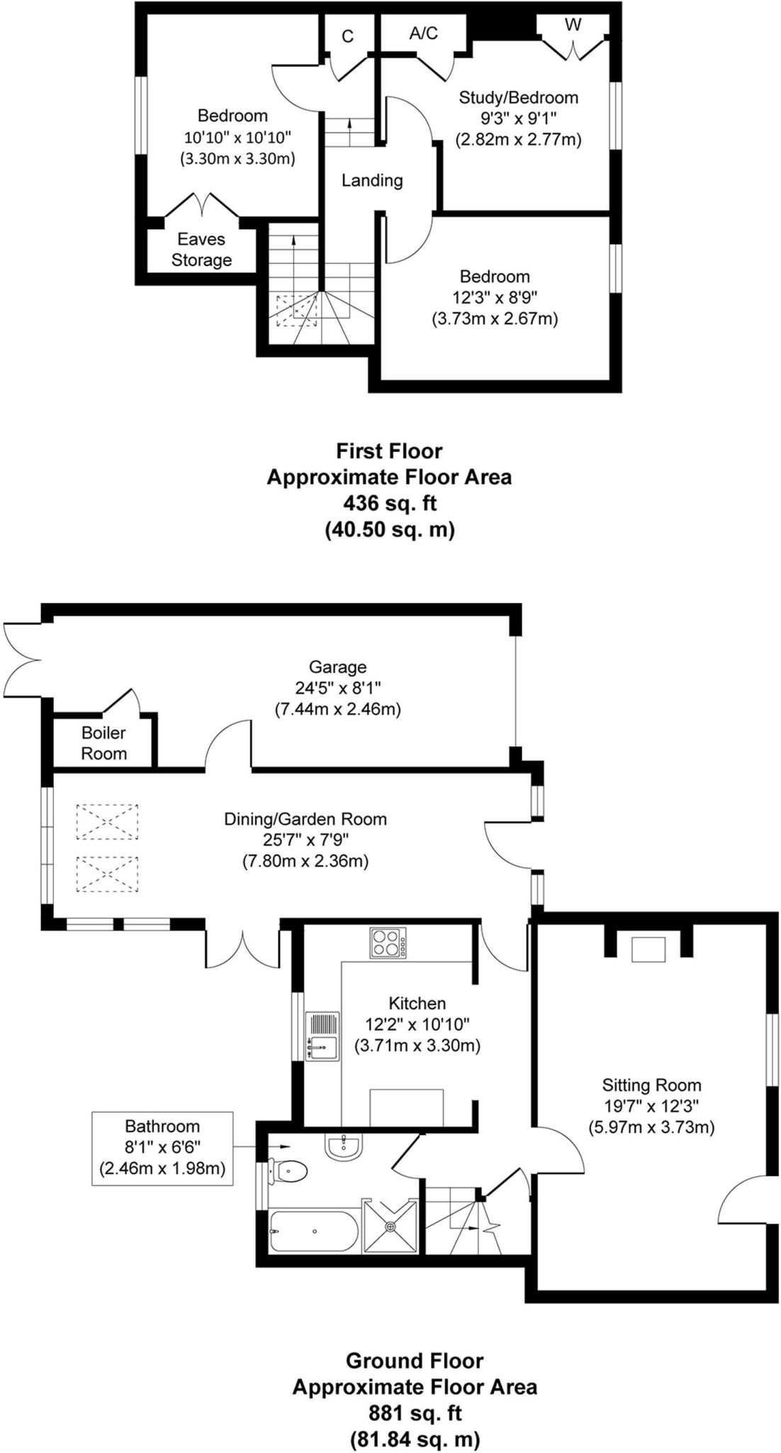
Rose Cottage is a charming flint-built home with countryside views, period features, and light-filled living space, perfect as a full-time residence or peaceful Norfolk retreat.
Property Oracle says ..
Characterful semi-detached flint home in Carbrooke, Norfolk. Close to local schooling. Well-maintained interior with traditional features and a good-sized garden.
Therefore, we give this property 7 / 10. *Disclaimer: This is our option and does constitute a recommendation or financial advice. Do your own research. *
- Price
- 8
- Condition
- 8
- Location
- 7
- Land
- 7
- Bedrooms
- 3
- Bathrooms
- 1
- Sqft (est)
- 1,132.96
The heatmap indicates the level of crime in the area. The color of the heatmap indicates the crime severity and recency.
Metrics Year-on-Year
- Average area value
- 1,013,000.00 £Increased by 145.45 %
- Est sale value
- 425,992.96 £Increased by 46.88 %
- Average area rental value
- 875.00 £/moDecreased by 5.61 %
- Est letting value
- 0.00 £/mo
- Est rental Yield
- 1.04 %Decreased by 61.48 %
- Crime Rate
- 0.00 %
from 412,711.00 £
from 290,037.76 £
from 927.00 £/mo
from 0.00 £/mo
from 2.70 %
from 0.00 %
Agent Activity
Sowerbys created the listing.
Nearby Schools
| Name | Type | Ofsted | Distance |
|---|---|---|---|
| St Peter And St Paul Church Of England Primary Academy & Nursery | Academy Converter | Good | 0.64 KM |
| Caston Church Of England Primary Academy | Academy Sponsor Led | 3.92 KM | |
| Wayland Academy | Academy Converter | Requires improvement | 5.35 KM |
| Watton Children'S Centre | Children's Centre | 5.61 KM | |
| Watton Westfield Infant And Nursery School | Academy Sponsor Led | Good | 5.72 KM |
Images
Nearby Streets
| Name | Average Price | Average Sqft | Distance |
|---|---|---|---|
| Shackleton Road | £ 205,000 | 0 | 0.00 KM |
| Fortress Road | £ 190,000 | 0 | 0.00 KM |
Nearby Listings
| Address | Price | Type | Score | Distance |
|---|---|---|---|---|
| Characterful Flint Home With Countryside Views, Carbrooke | £ 350,000 | BUY | 7 / 10 | 0.00 KM |
| Drury Lane, Carbrooke, Thetford, Norfolk, IP25 | £ 650,000 | BUY | 7 / 10 | 0.10 KM |
| Drury Lane, Carbrooke, IP25 | £ 250,000 | BUY | 7 / 10 | 0.10 KM |
| 8 Drury Lane, Carbrooke, Thetford, Norfolk IP25 6SJ | £ 180,000 | BUY | 6 / 10 | 0.18 KM |
| Bridge Street, Carbrooke, Thetford, Norfolk, IP25 | £ 575,000 | BUY | 7 / 10 | 0.59 KM |
Nearby Properties
| Address | Price | Distance |
|---|---|---|
| 10 Drury Lane | £ 361,500 | 0.10 KM |
| Cowslip Lodge | £ 540,000 | 0.10 KM |
| Rose Cottage | £ 225,000 | 0.10 KM |
| Tumbleweed | £ 600,000 | 0.10 KM |
| The Lodge | £ 600,000 | 0.10 KM |