Plymstock, Plymouth
JU

Plymstock, Plymouth

By Julian Marks

£ 475,000

Reviews

3 out of 5 stars

Julian Marks says ..

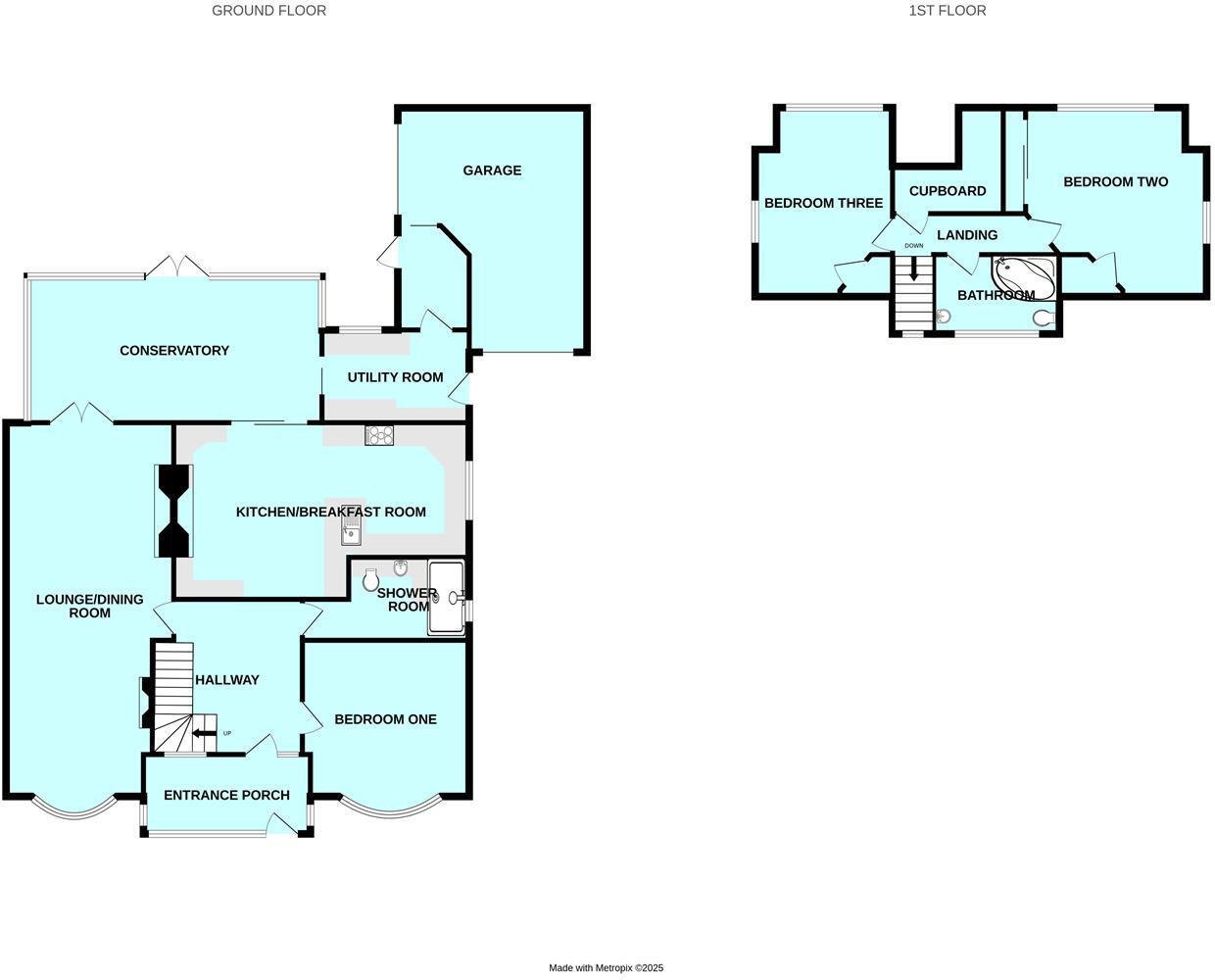
An exceptional detached dormer bungalow situated in this very popular position close to central Plymstock with lovely views towards Staddon Heights. Plentiful off-road parking to the front & south-west facing garden to the rear. The accommodation briefly comprises an entrance porch & hallway, ope...

Property Oracle says ..

The property is a detached bungalow located in Plymstock, Plymouth, Devon. Based on the provided images, the property appears to be in good condition, well-maintained, and has had some modernisation while retaining some traditional character. The kitchen and bathrooms look recently updated. There is a conservatory and what appears to be a good-sized garden. The property also benefits from off-street parking. The location in Plymstock is a desirable residential area. The proximity to Pomphlett Primary School and Plymstock School, both rated ‘Good’ by Ofsted, is a significant positive. The relatively close distance to Plymouth city centre via train (Great Western Railway) also adds to its appeal. Considering the average house price in the area is £301,788 and the average price per square foot is £354, the list price of £475,000 for this property requires further consideration. Without the square footage of the property, a precise price per square foot comparison cannot be made. However, given the apparent good condition, the desirable location, and the presence of a garden and off-street parking, the list price may be at the higher end of the market but not necessarily unreasonable compared to nearby comparable properties listed at £700,000 and £375,000. More information on the size of the property would allow for a more precise evaluation of the price.

Therefore, we give this property 7 / 10. *Disclaimer: This is our option and does constitute a recommendation or financial advice. Do your own research. *

Price
7
Condition
9
Location
8
Land
7
Bedrooms
3
Bathrooms
2

The heatmap indicates the level of crime in the area. The color of the heatmap indicates the crime severity and recency.

Metrics Year-on-Year

Average area value
339,996.00 £
Increased by 4.84 %
from 324,288.00 £
Average area rental value
1,581.00 £/mo
Increased by 51.87 %
from 1,041.00 £/mo
Est rental Yield
5.58 %
Increased by 44.94 %
from 3.85 %
Crime Rate
14.00 %
Unchanged by 0.00 %
from 14.00 %

Agent Activity

  • Julian Marks created the listing.

Nearby Schools

NameTypeOfstedDistance
Pomphlett Primary SchoolAcademy Converter0.38 KM
Plymstock SchoolAcademy ConverterGood0.46 KM
Morley Meadow Primary SchoolAcademy Converter0.88 KM
Goosewell Primary AcademyAcademy Sponsor LedGood1.22 KM
Plymstock Children'S CentreChildren's Centre1.49 KM

Images

IMG_2028.jpeg IMG_2056.jpeg IMG_2057.jpeg IMG_2060.jpeg IMG_2061.jpeg IMG_2072.jpeg IMG_2068.jpeg IMG_2058.jpeg IMG_2062.jpeg IMG_2059.jpeg IMG_2067.jpeg IMG_2064.jpeg IMG_2034.jpeg IMG_2065.jpeg IMG_2033.jpeg IMG_2066.jpeg IMG_2063.jpeg IMG_2073.jpeg IMG_2030.jpeg IMG_2029.jpeg IMG_2026.jpeg IMG_2027.jpeg

Nearby Streets

NameAverage PriceAverage SqftDistance
Reigate Road £ 282,50000.00 KM
Church Road £ 327,50000.00 KM
Encombe Street £ 240,00000.00 KM
Cotswold Avenue £ 000.00 KM
Moor View £ 000.00 KM

Nearby Transport

NameNLCTLCDistance
Plymouth3580PLY5.92 KM
Devonport3579DPT8.88 KM
Dockyard (Devonport)3588DOC9.53 KM

Nearby Listings

AddressPriceTypeScoreDistance
Plymstock, Plymouth £ 475,000BUY7 / 100.00 KM
Pomphlett Road, Plymouth, PL9 £ 700,000BUY6 / 100.10 KM
Rockville Park, Plymouth Stylish 1950s Three-Bedroom Semi-Detached Home £ 390,000BUY7 / 100.19 KM
Rockville Park, Plymstock, Plymouth. £ 495,000BUYUnknown0.19 KM
Swallows End, Plymstock, Plymouth, Devon, PL9 £ 160,750BUY7 / 100.20 KM

Nearby Properties

AddressPriceDistance
134 Pomphlett Road £ 210,0000.03 KM
146 Pomphlett Road £ 134,0000.03 KM
48 Bedford Road £ 93,0000.19 KM
46 Bedford Road £ 185,0000.19 KM
283 Dean Cross Road £ 311,5000.23 KM