Southgate Estates says ..
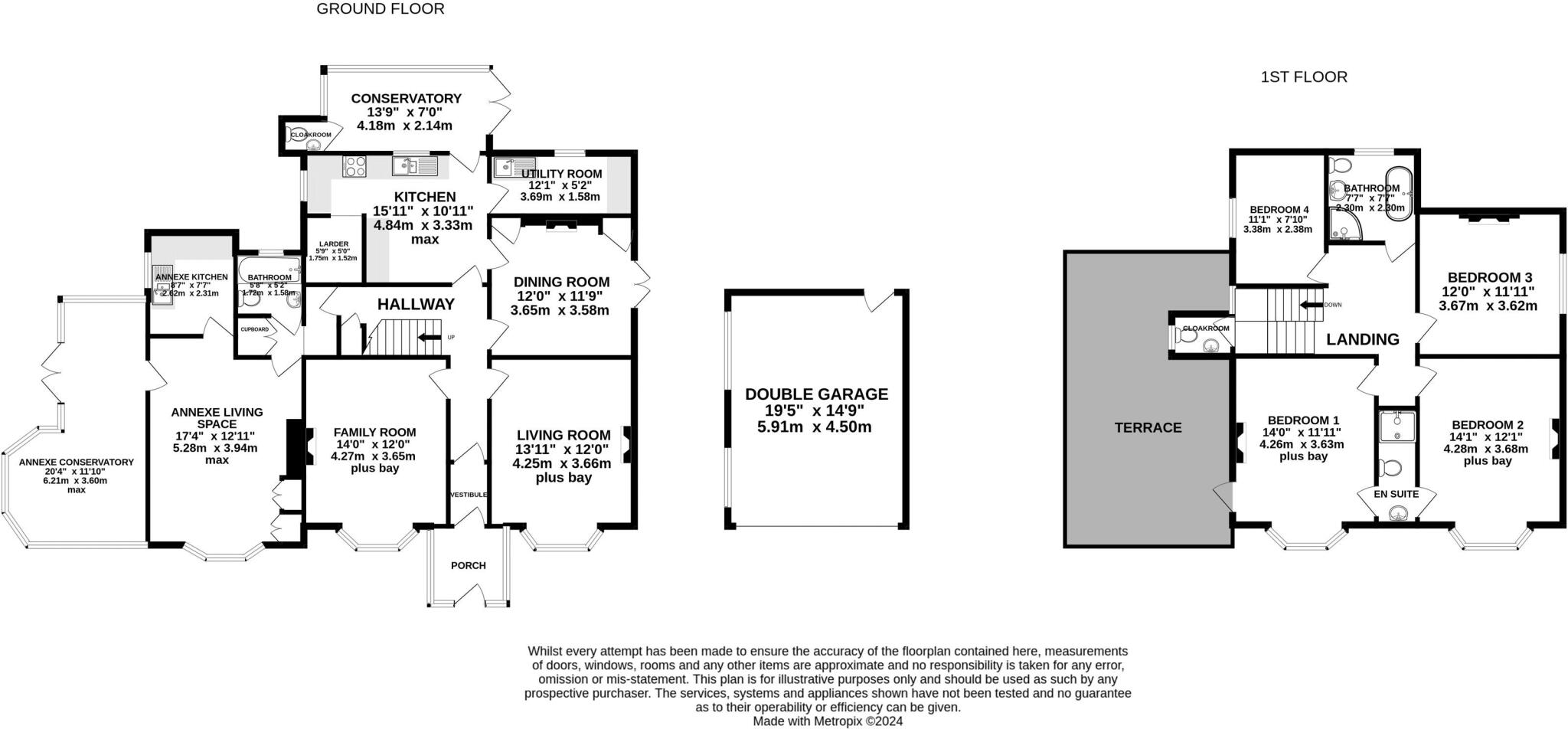
A spacious detached house situated in the popular village of Exton, perfectly positioned to enjoy stunning estuary views to the front. The property is complemented by a number of attractive period features, and also includes a double garage, a driveway, and a large enclosed garden. The internal a...
Property Oracle says ..
This is a substantial detached property located in a sought-after area of East Devon. The house offers five bedrooms and three bathrooms, making it suitable for a family. While the property is generally in good order, some aspects of the interior, particularly the kitchen and bathrooms, would benefit from updating. The property features a large garden, which is a significant asset. The location is convenient, with good transport links and access to well-regarded schools. The price is reasonable, considering the size and location, but potential buyers should factor in the cost of renovations when making an offer.
Therefore, we give this property 7 / 10. *Disclaimer: This is our option and does constitute a recommendation or financial advice. Do your own research. *
- Price
- 7
- Condition
- 6
- Location
- 8
- Land
- 8
- Bedrooms
- 5
- Bathrooms
- 3
- Sqft (est)
- 2,277.00
The heatmap indicates the level of crime in the area. The color of the heatmap indicates the crime severity and recency.
Metrics Year-on-Year
- Average area value
- 633,850.00 £Increased by 20.04 %
- Est sale value
- 617,067.00 £Decreased by 36.68 %
- Average area rental value
- 1,138.00 £/moDecreased by 18.71 %
- Est letting value
- 0.00 £/moDecreased by 100.00 %
- Est rental Yield
- 2.15 %Decreased by 32.39 %
- Crime Rate
- 54.00 %Unchanged by 0.00 %
Agent Activity
Southgate Estates created the listing.
Nearby Schools
| Name | Type | Ofsted | Distance |
|---|---|---|---|
| Lady Seaward'S Church Of England Primary School | Academy Converter | Outstanding | 2.46 KM |
| Lympstone Church Of England Primary School | Voluntary Controlled School | Requires improvement | 2.60 KM |
| St Peter'S Preparatory School | Other Independent School | 3.63 KM | |
| The Topsham School | Community School | Good | 3.65 KM |
| Woodbury Church Of England Primary School | Voluntary Aided School | Good | 4.75 KM |
Images
Nearby Streets
| Name | Average Price | Average Sqft | Distance |
|---|---|---|---|
| Lympstone Exton Cycle Path | £ 0 | 0 | 0.00 KM |
| Lower Lane | £ 622,500 | 0 | 0.00 KM |
| The Ridings | £ 1,100,000 | 0 | 0.00 KM |
| Shepherds Court | £ 0 | 0 | 0.00 KM |
| Tremletts Yard | £ 0 | 0 | 0.00 KM |
Nearby Transport
| Name | NLC | TLC | Distance |
|---|---|---|---|
| Exton | 5760 | EXN | 0.30 KM |
| Lympstone Commando | 5762 | LYC | 0.65 KM |
| Lympstone Village | 5761 | LYM | 2.48 KM |
| Topsham | 5758 | TOP | 3.25 KM |
| Starcross | 3413 | SCS | 4.52 KM |
Nearby Listings
| Address | Price | Type | Score | Distance |
|---|---|---|---|---|
| Station Road, Exton | £ 1,125,000 | BUY | 7 / 10 | 0.00 KM |
| Nurseries Close, Exton | £ 1,100,000 | BUY | 7 / 10 | 0.11 KM |
| Exton, Exeter, Devon, EX3 | £ 2,500,000 | BUY | 8 / 10 | 0.20 KM |
| Exton, Devon | £ 750,000 | BUY | Unknown | 0.21 KM |
| Exton, Devon | £ 1,950,000 | BUY | 7 / 10 | 0.24 KM |
Nearby Properties
| Address | Price | Distance |
|---|---|---|
| Lynwood | £ 115,000 | 0.11 KM |
| Garden Cottage | £ 290,000 | 0.11 KM |
| 4 Nurseries Close | £ 675,000 | 0.11 KM |
| 8 Nurseries Close | £ 1,100,000 | 0.11 KM |
| 5 Nurseries Close | £ 677,500 | 0.11 KM |