Mansion Heights, Whickham Highway, Gateshead, NE11
By Sarah Mains Residential Sales and Lettings
£ 275,000
Reviews
3 out of 5 stars
Sarah Mains Residential Sales and Lettings says ..
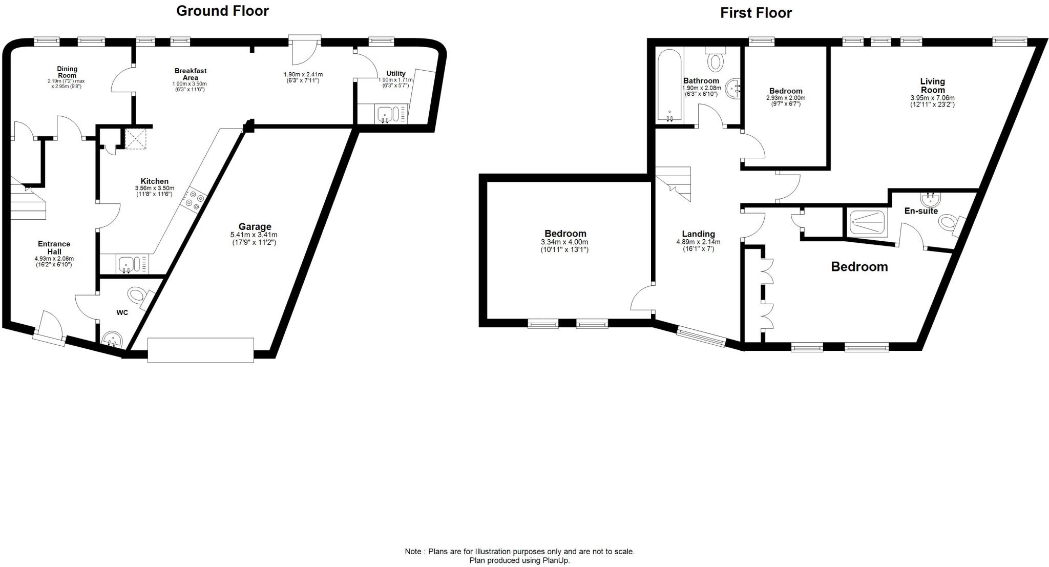
A FABULOUS HOME semi within the highly desirable Mansion Heights development. Boasting driveway parking, an INTEGRAL GARAGE and rear garden. The living space includes a guest cloaks/wc, dining room, IMPRESSIVE DINING KITCHEN and useful utility room to the ground floor. The spacious loung...
Property Oracle says ..
Therefore, we give this property 7 / 10. *Disclaimer: This is our option and does constitute a recommendation or financial advice. Do your own research. *
- Price
- 8
- Condition
- 8
- Location
- 8
- Land
- 7
- Bedrooms
- 3
- Bathrooms
- 2
- Sqft (est)
- 1,281.01
The heatmap indicates the level of crime in the area. The color of the heatmap indicates the crime severity and recency.
Metrics Year-on-Year
- Average area value
- 265,000.00 £Increased by 2.60 %
- Est sale value
- 339,467.65 £Increased by 9.05 %
- Average area rental value
- 1,270.00 £/moDecreased by 15.05 %
- Est letting value
- 1,281.01 £/moUnchanged by 0.00 %
- Est rental Yield
- 5.75 %Decreased by 17.27 %
- Crime Rate
- 5.00 %Unchanged by 0.00 %
from 258,279.00 £
from 311,285.43 £
from 1,495.00 £/mo
from 1,281.01 £/mo
from 6.95 %
from 5.00 %
Agent Activity
Sarah Mains Residential Sales and Lettings created the listing.
Nearby Schools
| Name | Type | Ofsted | Distance |
|---|---|---|---|
| Kingsmeadow Community Comprehensive School | Community School | Good | 0.71 KM |
| Dunston Hill Community Primary School | Community School | Good | 0.72 KM |
| St Mary'S Roman Catholic Primary School | Voluntary Aided School | Good | 1.17 KM |
| Washingwell Community Primary School | Community School | Good | 1.33 KM |
| Riverside Primary Academy | Academy Converter | Outstanding | 1.94 KM |
Images
Nearby Streets
| Name | Average Price | Average Sqft | Distance |
|---|---|---|---|
| Park Avenue | £ 315,000 | 0 | 0.00 KM |
| Market Lane | £ 158,333 | 0 | 0.00 KM |
| Bowness Road | £ 320,000 | 0 | 0.00 KM |
| Ash Grove | £ 0 | 0 | 0.00 KM |
| Normount Road | £ 350,000 | 0 | 0.00 KM |
Nearby Transport
| Name | NLC | TLC | Distance |
|---|---|---|---|
| Metrocentre | 7725 | MCE | 1.69 KM |
| Dunston | 7744 | DOT | 1.83 KM |
| Newcastle | 7728 | NCL | 5.16 KM |
| Blaydon | 7503 | BLO | 6.44 KM |
| Manors | 7603 | MAS | 6.61 KM |
Nearby Listings
| Address | Price | Type | Score | Distance |
|---|---|---|---|---|
| Mansion Heights, Whickham Highway, Gateshead, NE11 | £ 275,000 | BUY | 7 / 10 | 0.00 KM |
| Mansion Heights, Whickham, NE11 | £ 175,000 | BUY | 7 / 10 | 0.00 KM |
| Mansion House, Gateshead | £ 195,000 | BUY | 6 / 10 | 0.06 KM |
| The Mansion House, Mansion Heights, Whickham, NE11 | £ 360,000 | BUY | 7 / 10 | 0.12 KM |
| Dunston Bank, Dunston, Gateshead, NE11 | £ 450,000 | BUY | 7 / 10 | 0.58 KM |
Nearby Properties
| Address | Price | Distance |
|---|---|---|
| 34 Mansion Heights | £ 115,000 | 0.02 KM |
| 35 Mansion Heights | £ 169,995 | 0.02 KM |
| Hayloft | £ 515,000 | 0.03 KM |
| 33 Mansion Heights | £ 152,500 | 0.03 KM |
| 36 Mansion Heights | £ 151,950 | 0.03 KM |