Main Road, Gidea Park
OC

Main Road, Gidea Park

By OC Homes

£ 230,000

Reviews

3 out of 5 stars

OC Homes says ..

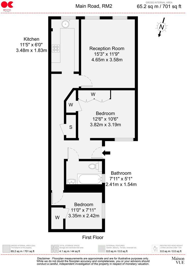
** TWO BEDROOM BTL INVESTMENT OPPORTUNITY WITH 8% YIELD. TENANT IN PLACE AT £1550 PCM. CLOSE TO GIDEA PARK STATION ON ELIZABETH LINE. CHAIN FREE ** * VIRTUAL TOUR ONLINE * OC Homes are pleased to offer for sale this well-presented two-bedroom flat, situated above commercial prem...

Property Oracle says ..

This is a two-bedroom flat located on Main Road, Gidea Park. The property is in a good location, with convenient access to transportation and local schools. Internally, the flat appears to be in good condition, with a modern kitchen and bathroom. However, the communal outdoor space is less appealing. The asking price of £230,000 seems reasonable for the area and the type of property. It is a good opportunity for first-time buyers or investors looking for a property in a well-connected suburban location. The lack of private outdoor space is a potential drawback.

Therefore, we give this property 6 / 10. *Disclaimer: This is our option and does constitute a recommendation or financial advice. Do your own research. *

Price
8
Condition
7
Location
7
Land
3
Bedrooms
2
Bathrooms
1

The heatmap indicates the level of crime in the area. The color of the heatmap indicates the crime severity and recency.

Metrics Year-on-Year

Average area value
744,333.00 £
Increased by 18.53 %
from 627,970.00 £
Average area rental value
1,770.00 £/mo
Decreased by 1.28 %
from 1,793.00 £/mo
Est rental Yield
2.85 %
Decreased by 16.91 %
from 3.43 %
Crime Rate
4.00 %
Unchanged by 0.00 %
from 4.00 %

Agent Activity

  • OC Homes created the listing.

Nearby Schools

NameTypeOfstedDistance
Gidea Park Preparatory School And CollegeOther Independent School0.09 KM
Gidea Park Primary SchoolCommunity SchoolGood0.75 KM
St Mary'S Hare Park SchoolOther Independent School0.92 KM
The Royal Liberty SchoolAcademy ConverterGood1.12 KM
Squirrels Heath Infant SchoolCommunity SchoolGood1.22 KM

Images

Photo 18-09-2025, 09 41 55 (2).jpg Photo 18-09-2025, 09 47 24 (1).jpg Photo 18-09-2025, 09 56 23 (2).jpg Photo 18-09-2025, 09 55 12 (1).jpg Photo 18-09-2025, 10 02 08 (2).jpg Photo 18-09-2025, 10 02 52 (2).jpg Photo 18-09-2025, 10 05 24 (2).jpg Photo 18-09-2025, 10 06 06 (2).jpg Photo 18-09-2025, 10 06 41 (1).jpg Photo 18-09-2025, 09 42 23 (2).jpg Photo 18-09-2025, 09 42 48 (1).jpg Photo 18-09-2025, 09 43 36 (1).jpg Photo 18-09-2025, 09 43 51 (1).jpg Photo 18-09-2025, 09 47 01.jpg Photo 18-09-2025, 09 47 36 (2).jpg Photo 18-09-2025, 09 54 03 (1).jpg Photo 18-09-2025, 10 02 25.jpg Photo 18-09-2025, 10 05 13 (2).jpg

Nearby Streets

NameAverage PriceAverage SqftDistance
Severn Avenue £ 000.00 KM
Tudor Gardens £ 825,00000.00 KM
Mead Close £ 1,350,00000.00 KM
Eastern Avenue East £ 400,00000.00 KM
Roberts Close £ 000.00 KM

Nearby Transport

NameNLCTLCDistance
Gidea Park6877GDP0.85 KM
Romford6886RMF2.28 KM
Emerson Park7473EMP3.00 KM
Harold Wood6879HRO3.72 KM
Upminster7464UPM6.41 KM

Nearby Listings

AddressPriceTypeScoreDistance
Main Road, Gidea Park £ 230,000BUY6 / 100.00 KM
Gidea Lodge, Romford £ 315,000BUYUnknown0.05 KM
Gidea Park Exhibition Estate £ 1,500,000BUY6 / 100.09 KM
Gidea Lodge, Main Road, Gidea Park, RM2 £ 200,000BUY6 / 100.11 KM
Heath Drive, Romford £ 1,450,000BUY6 / 100.12 KM

Nearby Properties

AddressPriceDistance
81a Main Road £ 111,0000.04 KM
87a Main Road £ 55,0000.04 KM
89a Main Road £ 118,0000.05 KM
89b Main Road £ 180,0000.05 KM
87b Main Road £ 132,0000.05 KM