Castlemaine Avenue, Medway, Kent, ME7
By Statuum
£ 190,000
Reviews
2 out of 5 stars
Statuum says ..
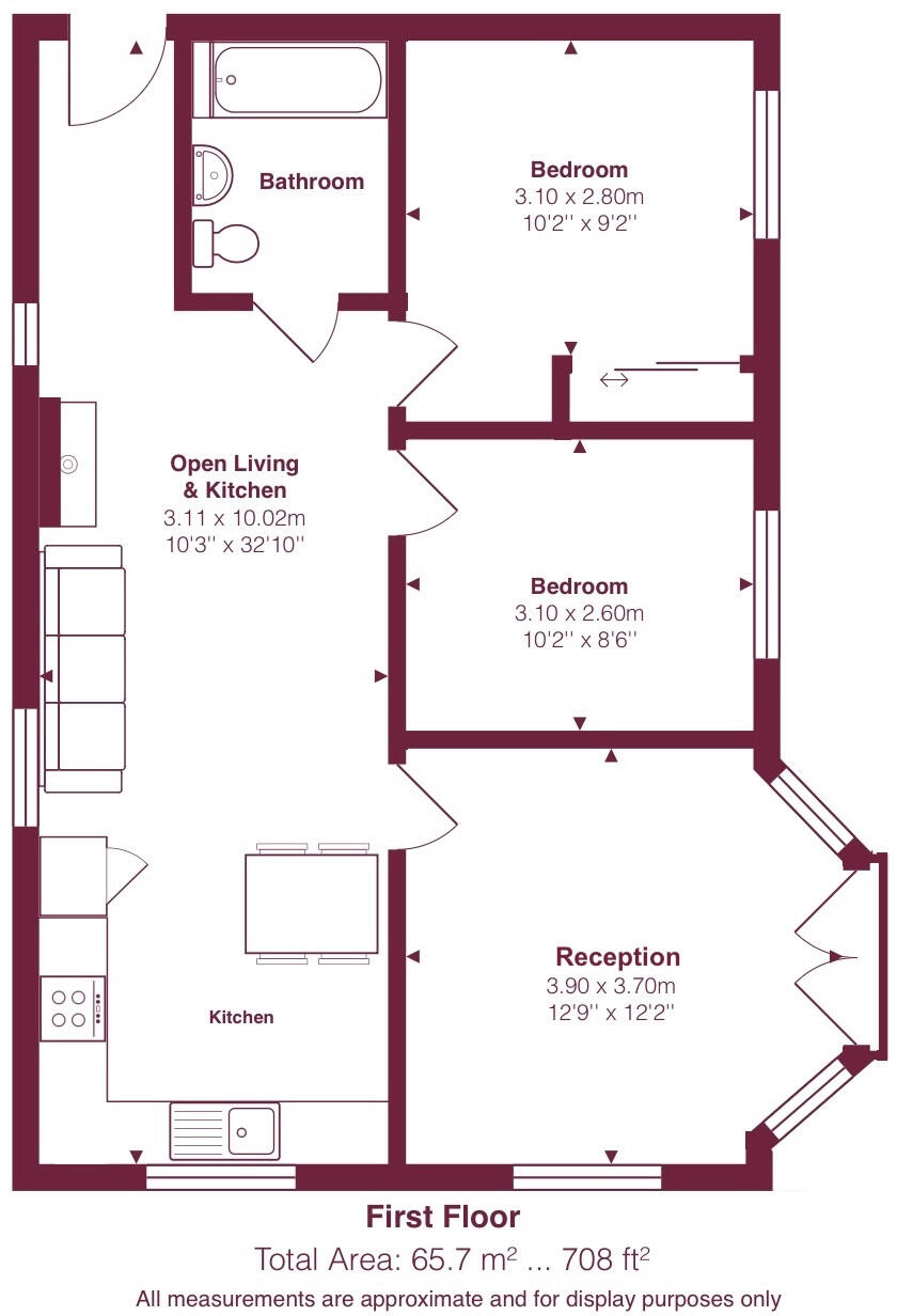
Statuum are excited to offer this attractive Two bed firstfloor apartment near Gillingham Station & Uni of Greenwich. Features two reception, two bedrooms, bathroom suite, allocated parking. Perfect for commuters, students or investors.
Property Oracle says ..
This is a two-bedroom apartment located in Gillingham North, Kent. The property is listed for £190,000. The apartment appears to be in generally good condition, with modern fixtures. The price per square foot is below the average for the area, suggesting it’s reasonably priced. Nearby, there are several schools and transportation options. The apartment has no garden.
Therefore, we give this property 5 / 10. *Disclaimer: This is our option and does constitute a recommendation or financial advice. Do your own research. *
- Price
- 7
- Condition
- 7
- Location
- 6
- Land
- 3
- Bedrooms
- 2
- Bathrooms
- 1
- Sqft (est)
- 707.19
The heatmap indicates the level of crime in the area. The color of the heatmap indicates the crime severity and recency.
Metrics Year-on-Year
- Average area value
- 258,294.00 £Increased by 3.99 %
- Est sale value
- 263,781.87 £Increased by 24.75 %
- Average area rental value
- 1,321.00 £/moDecreased by 18.41 %
- Est letting value
- 707.19 £/moUnchanged by 0.00 %
- Est rental Yield
- 6.14 %Decreased by 21.48 %
- Crime Rate
- 4.00 %Unchanged by 0.00 %
Agent Activity
Statuum created the listing.
Nearby Schools
| Name | Type | Ofsted | Distance |
|---|---|---|---|
| Woodlands Primary School | Academy Converter | Good | 0.82 KM |
| Academy Of Woodlands Children'S Centre | Children's Centre | 0.86 KM | |
| The Gfc School | Other Independent School | Good | 0.86 KM |
| Saxon Way Primary School | Academy Sponsor Led | Good | 1.03 KM |
| Saxon Way Primary School And Children'S Centre | Children's Centre | 1.03 KM |
Images
Nearby Streets
| Name | Average Price | Average Sqft | Distance |
|---|---|---|---|
| Thirlmere Close | £ 0 | 0 | 0.00 KM |
| Woodlands Road | £ 0 | 0 | 0.00 KM |
| GB38 | £ 0 | 0 | 0.00 KM |
| Cornwallis Avenue | £ 290,000 | 0 | 0.00 KM |
| Redfern Avenue | £ 300,000 | 0 | 0.00 KM |
Nearby Transport
| Name | NLC | TLC | Distance |
|---|---|---|---|
| Gillingham (Kent) | 5169 | GLM | 2.07 KM |
| Chatham | 5199 | CTM | 5.31 KM |
| Rainham (Kent) | 5177 | RAI | 5.35 KM |
| Rochester | 5203 | RTR | 6.44 KM |
| Strood (Kent) | 5191 | SOO | 7.60 KM |
Nearby Listings
| Address | Price | Type | Score | Distance |
|---|---|---|---|---|
| Castlemaine Avenue, Medway, Kent, ME7 | £ 190,000 | BUY | 5 / 10 | 0.00 KM |
| Castlemaine Avenue, Gillingham, Kent, ME7 | £ 150,000 | BUY | 7 / 10 | 0.02 KM |
| Castlemaine Avenue, Gillingham, Kent, ME7 | £ 350,000 | BUY | Unknown | 0.04 KM |
| Griffin Court, Gillingham, Kent, ME7 | £ 170,000 | BUY | Unknown | 0.05 KM |
| Griffin Court, Gillingham, Kent | £ 116,000 | BUY | Unknown | 0.05 KM |
Nearby Properties
| Address | Price | Distance |
|---|---|---|
| 102a Castlemaine Avenue | £ 198,000 | 0.02 KM |
| 1 Griffin Court | £ 129,950 | 0.05 KM |
| 4 Griffin Court | £ 123,000 | 0.05 KM |
| 3 Griffin Court | £ 160,000 | 0.05 KM |
| 6 Griffin Court | £ 122,500 | 0.05 KM |