Julian Marks says ..
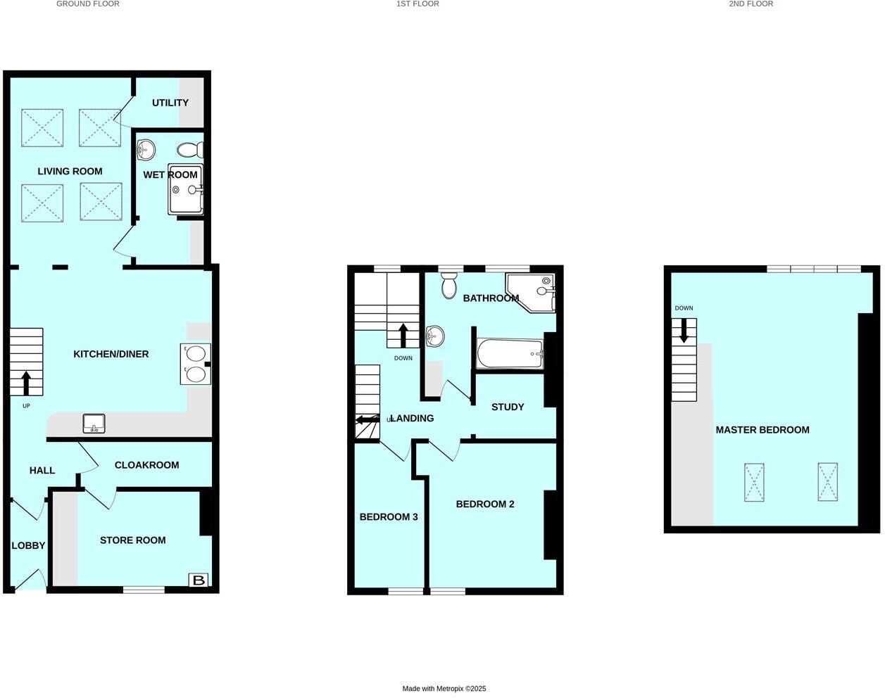
STUNNING MEWS STYLE FAMILY HOME - MUST BE VIEWED. You get a lot for your money with this property. This charming character period property has been renovated to a high standard with a bespoke barn-style extension. This deceptively spacious, light accommodation is laid out over 3 storeys with gene...
Property Oracle says ..
This three-bedroom terraced house in Plymouth is located on Commercial Road, in the Sutton And Mount Gould area. The property benefits from being close to several primary schools, with Ace Schools Plymouth, rated as “Good” by Ofsted, being approximately 1.15km away. Plymouth railway station is also relatively close, at 2.27km. The house itself appears well-maintained and recently renovated, with a modern kitchen and bathrooms. The extension to the rear provides additional living space with a vaulted ceiling and skylights. While the plot size is listed as 0.00 sqft, the images suggest a small, possibly shared, yard. The list price of £250,000 is slightly higher than the average price of £223,679 for the area, but the average price per sqft is £192, while this property is larger than average at 1425 sqft. Considering the condition, location and size, the price appears reasonable, although further investigation into the specifics of the plot and comparable properties would be beneficial.
Therefore, we give this property 6 / 10. *Disclaimer: This is our option and does constitute a recommendation or financial advice. Do your own research. *
- Price
- 7
- Condition
- 9
- Location
- 7
- Land
- 3
- Bedrooms
- 3
- Bathrooms
- 2
- Sqft (est)
- 1,425.00
The heatmap indicates the level of crime in the area. The color of the heatmap indicates the crime severity and recency.
Metrics Year-on-Year
- Average area value
- 253,125.00 £Increased by 15.55 %
- Est sale value
- 326,325.00 £Increased by 9.05 %
- Average area rental value
- 741.00 £/moIncreased by 14.88 %
- Est letting value
- 0.00 £/mo
- Est rental Yield
- 3.51 %Decreased by 0.57 %
- Crime Rate
- 8.00 %Unchanged by 0.00 %
Agent Activity
Julian Marks created the listing.
Nearby Schools
| Name | Type | Ofsted | Distance |
|---|---|---|---|
| Nomony Children'S Centre | Children's Centre | 0.34 KM | |
| Holy Cross Catholic Primary School | Academy Converter | 0.85 KM | |
| Salisbury Road Primary School | Academy Converter | Requires improvement | 1.01 KM |
| Ace Schools Plymouth | Academy Alternative Provision Converter | Good | 1.15 KM |
| Prince Rock Primary School | Academy Converter | 1.29 KM |
Images
Nearby Streets
| Name | Average Price | Average Sqft | Distance |
|---|---|---|---|
| Holborn Street | £ 0 | 0 | 0.00 KM |
| Alma Street | £ 375,000 | 0 | 0.00 KM |
| Cattedown Roundabout | £ 0 | 0 | 0.00 KM |
| Friary Retail Park | £ 180,000 | 0 | 0.00 KM |
| Egerton Road | £ 179,700 | 0 | 0.00 KM |
Nearby Transport
| Name | NLC | TLC | Distance |
|---|---|---|---|
| Plymouth | 3580 | PLY | 2.27 KM |
| Devonport | 3579 | DPT | 5.08 KM |
| Dockyard (Devonport) | 3588 | DOC | 5.75 KM |
| Keyham | 3571 | KEY | 6.44 KM |
| St Budeaux Ferry Road | 3590 | SBF | 7.73 KM |
Nearby Listings
| Address | Price | Type | Score | Distance |
|---|---|---|---|---|
| Commercial Road, Plymouth | £ 250,000 | BUY | 6 / 10 | 0.00 KM |
| Commercial Road, PLYMOUTH | £ 250,000 | BUY | Unknown | 0.04 KM |
| 3 commercial Place Plymouth well presented Cottage style Home | £ 210,000 | BUY | 6 / 10 | 0.06 KM |
| Plymouth, PL4 0LX | £ 140,000 | BUY | 5 / 10 | 0.13 KM |
| Parr Street, Plymouth | £ 220,000 | BUY | 7 / 10 | 0.18 KM |
Nearby Properties
| Address | Price | Distance |
|---|---|---|
| 16 Commercial Road | £ 165,000 | 0.04 KM |
| 15 Commercial Road | £ 80,000 | 0.04 KM |
| 11 Commercial Road | £ 121,500 | 0.04 KM |
| 17 Commercial Road | £ 35,000 | 0.04 KM |
| 14 Commercial Road | £ 185,500 | 0.04 KM |