Jacobs Steel says ..
We are delighted to offer for sale this spacious reconfigured two double bedroom two ensuite mid terrace house situated in this popular central Shoreham location.
Property Oracle says ..
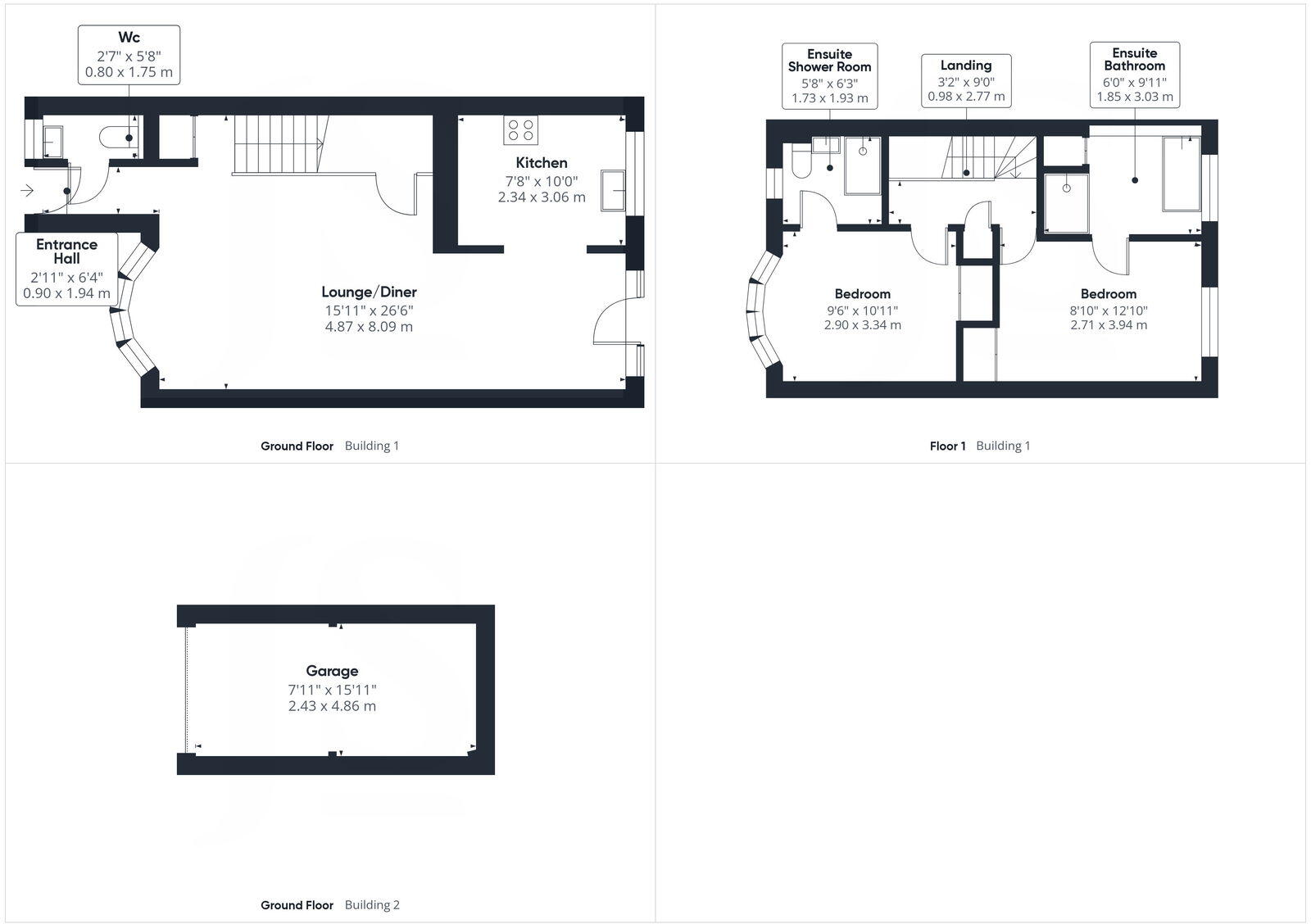
The property is a terraced house located in Shoreham-by-Sea, West Sussex. It’s a two-bedroom, two-bathroom property with a total area of 877.47 sqft and a listed price of £400,000. The property benefits from a small garden.
The location is good, with nearby primary schools receiving a “Good” Ofsted rating and a train station within 0.50 KM. The average house price in the area is £367,691, and the average price per sqft is £330. Nearby properties on The Close have sold for between £282,500 and £495,000, indicating some price variation in the immediate vicinity. However, the provided data lacks sufficient information to make a definitive judgement on the overall desirability of the location.
Based on the photos, the property appears to be in good condition. The interior is presented well, with a modern kitchen and updated bathrooms. There is no visible evidence of significant repairs needed. The property shows signs of modernisation, retaining traditional character.
The property has a small garden, which is a positive feature, although the plot size is relatively small. More information on the dimensions of the garden would be beneficial for a more comprehensive assessment.
Considering the property’s condition, the relatively small plot size, and the location, the list price of £400,000 seems slightly higher than the average price per sqft for the area. However, the higher-priced nearby properties suggest that this price point might be justifiable, depending on specific factors not detailed in the available information, such as the size and condition of the garden.
Therefore, we give this property 6 / 10. *Disclaimer: This is our option and does constitute a recommendation or financial advice. Do your own research. *
- Price
- 6
- Condition
- 8
- Location
- 7
- Land
- 4
- Bedrooms
- 2
- Bathrooms
- 2
- Sqft (est)
- 877.47
The heatmap indicates the level of crime in the area. The color of the heatmap indicates the crime severity and recency.
Metrics Year-on-Year
- Average area value
- 456,875.00 £Increased by 1.27 %
- Est sale value
- 376,434.63 £Increased by 22.57 %
- Average area rental value
- 1,264.00 £/moDecreased by 16.90 %
- Est letting value
- 877.47 £/moUnchanged by 0.00 %
- Est rental Yield
- 3.32 %Decreased by 18.02 %
- Crime Rate
- 1.00 %Unchanged by 0.00 %
Agent Activity
Jacobs Steel created the listing.
Nearby Schools
| Name | Type | Ofsted | Distance |
|---|---|---|---|
| Buckingham Park Primary School | Community School | Good | 0.32 KM |
| Swiss Gardens Primary School | Community School | Good | 0.71 KM |
| St Peter'S Catholic Primary School, Shoreham-By-Sea | Voluntary Aided School | Good | 1.14 KM |
| Shoreham Beach Primary School | Community School | Good | 1.29 KM |
| Kingston Buci Children & Family Centre | Children's Centre | 1.40 KM |
Images
Nearby Streets
| Name | Average Price | Average Sqft | Distance |
|---|---|---|---|
| Western Road | £ 287,500 | 0 | 0.00 KM |
| St Mary's Road | £ 349,975 | 0 | 0.00 KM |
| John Street | £ 449,982 | 0 | 0.00 KM |
| High Street | £ 289,975 | 0 | 0.00 KM |
| Bridges Bank | £ 0 | 0 | 0.00 KM |
Nearby Transport
| Name | NLC | TLC | Distance |
|---|---|---|---|
| Shoreham-By-Sea | 5277 | SSE | 0.50 KM |
| Southwick | 5286 | SWK | 4.20 KM |
| Lancing | 5275 | LAC | 5.63 KM |
| Fishersgate | 5284 | FSG | 6.00 KM |
| Portslade | 5276 | PLD | 7.54 KM |
Nearby Listings
| Address | Price | Type | Score | Distance |
|---|---|---|---|---|
| The Close, Shoreham by Sea | £ 400,000 | BUY | 6 / 10 | 0.00 KM |
| Oxen Avenue, Central Shoreham | £ 375,000 | BUY | 6 / 10 | 0.10 KM |
| Oxen Avenue, Shoreham-By-Sea | £ 275,000 | BUY | 6 / 10 | 0.10 KM |
| Oxen Court, Oxen Avenue | £ 400,000 | BUY | 6 / 10 | 0.10 KM |
| The Close, Shoreham-By-Sea, West Sussex, BN43 5AH | £ 775,000 | BUY | 7 / 10 | 0.14 KM |
Nearby Properties
| Address | Price | Distance |
|---|---|---|
| 4a The Close | £ 495,000 | 0.08 KM |
| 7 The Close | £ 479,950 | 0.08 KM |
| 2 The Close | £ 290,000 | 0.08 KM |
| 18 The Close | £ 282,500 | 0.08 KM |
| 1 The Close | £ 389,000 | 0.08 KM |