30 Back Road, Dollar FK14 7EA
HA

30 Back Road, Dollar FK14 7EA

By Harper & Stone Limited

£ 280,000

Reviews

2 out of 5 stars

Harper & Stone Limited says ..

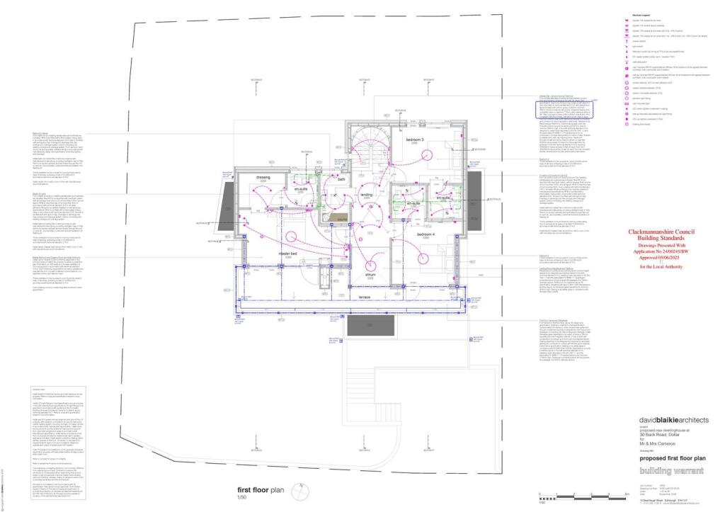
Opportunity to create a spectacular 3 storey family home located in one of Dollar’s most sort after locations. Building Plot with full Planning Permission and Building Warrant in situ. Basement: Double Garage, Games Room, Cinema/Music Room, Laundry, Plant Room & WC. G...

Property Oracle says ..

The property at 30 Back Road, Dollar FK14 7EA is listed as land for sale with approved planning permission. The listing agent is Harper & Stone Limited. The asking price is £280,000. The location is in Clackmannanshire East, in the district of Eastern Scotland. The property type is land. The surrounding area includes residential properties and open green spaces. The listing is for land with approved planning permission for a new dwelling house. The architectural drawings indicate a modern design with multiple levels, including a basement, ground floor, and first floor. The drawings also suggest the inclusion of terraces and potentially a garage. Given the property is land with planning permission, the condition is ‘needs renovation’ in the sense that it requires construction. The location offers a blend of rural and residential living.

Therefore, we give this property 5 / 10. *Disclaimer: This is our option and does constitute a recommendation or financial advice. Do your own research. *

Price
8
Condition
1
Location
7
Land
6
Bedrooms
0
Bathrooms
0

The heatmap indicates the level of crime in the area. The color of the heatmap indicates the crime severity and recency.

Metrics Year-on-Year

Average area value
453,954.00 £
Increased by 9.80 %
from 413,435.00 £
Average area rental value
1,181.00 £/mo
Increased by 9.86 %
from 1,075.00 £/mo
Est rental Yield
3.12 %
Unchanged by 0.00 %
from 3.12 %
Crime Rate
0.00 %
from 0.00 %

Agent Activity

  • Harper & Stone Limited created the listing.

Images

Image 1 Image 2 Image 3 Proposed Elevations Sheet 1 - revB.jpg Proposed Basement Floor Plan - revB.jpg Proposed Ground Floor Plan - revB.jpg Proposed First Floor Plan -  revB.jpg Location Plan.jpg Proposed Roof Plan - revB.jpg 509_Proposed Elevations Sheet 2 - revC.jpg 510_Proposed Sections.jpg 511_Proposed Site Plan.jpg

Nearby Streets

NameAverage PriceAverage SqftDistance
Harviestoun Road £ 000.00 KM
Graham Place £ 165,00000.00 KM
Cairnpark Street £ 000.00 KM
Lower Mains £ 264,95000.00 KM
The Devon Way £ 000.00 KM

Nearby Listings

AddressPriceTypeScoreDistance
30 Back Road, Dollar FK14 7EA £ 280,000BUY5 / 100.00 KM
Rozell Cottage, Back Road, Dollar FK14 7EA £ 340,000BUY5 / 100.27 KM
Snowplough Meadow, Glendevon, Dollar £ 165,000BUY8 / 100.29 KM
Glensherup Farm, Glendevon FK10 7JY £ 905,000BUY6 / 100.29 KM
Thornbank Road, Dollar £ 179,000BUY6 / 100.32 KM