Upton Road, Bristol, BS3
By CJ Hole
£ 315,000
CJ Hole says ..
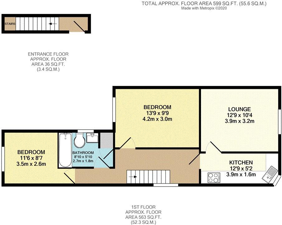
This well-laid-out first-floor flat with off street parking offers comfortable and practical living, ideal for first-time buyers, downsizers, or investors.
- Bedrooms
- 2
- Bathrooms
- 1
- Sqft (est)
- 469.31
The heatmap indicates the level of crime in the area. The color of the heatmap indicates the crime severity and recency.
Metrics Year-on-Year
- Average area value
- 347,833.00 £Decreased by 12.30 %
- Est sale value
- 194,763.65 £Decreased by 4.16 %
- Average area rental value
- 1,855.00 £/moIncreased by 23.17 %
- Est letting value
- 938.62 £/moIncreased by 100.00 %
- Est rental Yield
- 6.40 %Increased by 40.35 %
- Crime Rate
- 1.00 %Unchanged by 0.00 %
from 396,637.00 £
from 203,211.23 £
from 1,506.00 £/mo
from 469.31 £/mo
from 4.56 %
from 1.00 %
Agent Activity
CJ Hole created the listing.
Nearby Schools
| Name | Type | Ofsted | Distance |
|---|---|---|---|
| Ashton Gate Primary School | Community School | Outstanding | 0.46 KM |
| Compass Point: South Street School & Children'S Centre | Children's Centre | 0.66 KM | |
| Southville Primary School | Community School | Good | 0.70 KM |
| Luckwell Primary School | Academy Sponsor Led | 0.72 KM | |
| Compass Point Primary School | Academy Converter | 0.79 KM |
Images
Nearby Streets
| Name | Average Price | Average Sqft | Distance |
|---|---|---|---|
| Mardyke Ferry Road | £ 0 | 0 | 0.00 KM |
| Gas Ferry Road | £ 325,000 | 0 | 0.00 KM |
| Walter Street | £ 454,000 | 0 | 0.00 KM |
| Frobisher Road | £ 0 | 0 | 0.00 KM |
| Wapping Railway Wharf | £ 425,000 | 0 | 0.00 KM |
Nearby Transport
| Name | NLC | TLC | Distance |
|---|---|---|---|
| Parson Street | 3246 | PSN | 1.16 KM |
| Bedminster | 3245 | BMT | 1.83 KM |
| Clifton Down | 3202 | CFN | 2.36 KM |
| Redland | 3247 | RDA | 3.04 KM |
| Bristol Temple Meads | 3231 | BRI | 3.27 KM |
Nearby Listings
| Address | Price | Type | Score | Distance |
|---|---|---|---|---|
| Upton Road, Bristol, BS3 | £ 315,000 | BUY | Unknown | 0.00 KM |
| Upton Road, Southville | £ 325,000 | BUY | 7 / 10 | 0.03 KM |
| Lime Road, Southville, Bristol | £ 500,000 | BUY | 5 / 10 | 0.04 KM |
| Raleigh Road, Southville, BS3 | £ 330,000 | BUY | Unknown | 0.05 KM |
| Raleigh Road, Southville, Bristol, BS3 | £ 315,000 | BUY | Unknown | 0.05 KM |
Nearby Properties
| Address | Price | Distance |
|---|---|---|
| 16 Upton Road | £ 458,000 | 0.03 KM |
| 10 Upton Road | £ 248,000 | 0.03 KM |
| 12 Upton Road | £ 27,750 | 0.03 KM |
| 10a Upton Road | £ 105,000 | 0.03 KM |
| 30b Upton Road | £ 265,000 | 0.03 KM |