Cavendish Close, Saltford, Bristol
By Davies & Way
£ 700,000
Reviews
4 out of 5 stars
Davies & Way says ..
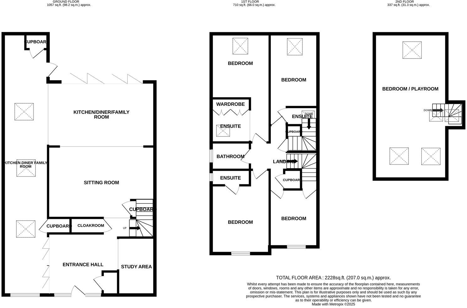
Located in the sought-after village of Saltford, this stunning detached house offers a perfect blend of modern living and comfort. With an impressive open plan ground floor, the property boasts spacious reception areas that seamlessly connect, creating an inviting space for both relaxation and e...
Property Oracle says ..
This property is a 4 bedroom, 4 bathroom detached house located in Saltford, Bristol. Saltford is a desirable village with good local amenities and schools, and is well-connected to Bristol and Bath. The property itself is modern and well-maintained, with a good-sized garden. The asking price is slightly above the average for the area, but this is justified by the property’s size, condition, and location. Overall, this is a great family home.
Therefore, we give this property 8 / 10. *Disclaimer: This is our option and does constitute a recommendation or financial advice. Do your own research. *
- Price
- 7
- Condition
- 9
- Location
- 9
- Land
- 8
- Bedrooms
- 4
- Bathrooms
- 4
- Sqft (est)
- 2,104.00
- Lot (est)
- 2,228.00
The heatmap indicates the level of crime in the area. The color of the heatmap indicates the crime severity and recency.
Metrics Year-on-Year
- Average area value
- 310,000.00 £Decreased by 11.97 %
- Est sale value
- 408,176.00 £Decreased by 38.22 %
- Average area rental value
- 1,300.00 £/moIncreased by 1.33 %
- Est letting value
- 0.00 £/moDecreased by 100.00 %
- Est rental Yield
- 5.03 %Increased by 15.10 %
- Crime Rate
- 5.00 %Unchanged by 0.00 %
Agent Activity
Davies & Way created the listing.
Nearby Schools
| Name | Type | Ofsted | Distance |
|---|---|---|---|
| Saltford Cofe Primary School | Academy Converter | Good | 0.65 KM |
| Chandag Junior School | Academy Converter | 2.37 KM | |
| Chandag Infant School | Academy Converter | Good | 2.37 KM |
| Two Rivers Church Of England Primary | Free Schools | 2.45 KM | |
| Wellsway School | Academy Converter | Good | 2.59 KM |
Images
Nearby Streets
| Name | Average Price | Average Sqft | Distance |
|---|---|---|---|
| Kingston Avenue | £ 585,000 | 0 | 0.00 KM |
| Stratton Road | £ 300,000 | 0 | 0.00 KM |
| Collingwood Close | £ 0 | 0 | 0.00 KM |
| The Batch | £ 0 | 0 | 0.00 KM |
Nearby Transport
| Name | NLC | TLC | Distance |
|---|---|---|---|
| Keynsham | 3237 | KYN | 3.78 KM |
| Oldfield Park | 3219 | OLF | 9.79 KM |
Nearby Listings
| Address | Price | Type | Score | Distance |
|---|---|---|---|---|
| Cavendish Close, Saltford, Bristol | £ 700,000 | BUY | 8 / 10 | 0.00 KM |
| Boyd Road, Saltford, Bristol | £ 459,950 | BUY | 7 / 10 | 0.13 KM |
| Boyd Road, Saltford, Bristol | £ 550,000 | BUY | 7 / 10 | 0.17 KM |
| Vernon Close, Saltford, Bristol | £ 475,000 | BUY | 7 / 10 | 0.20 KM |
| Raleigh Close, Saltford, Bristol | £ 700,000 | BUY | 6 / 10 | 0.21 KM |
Nearby Properties
| Address | Price | Distance |
|---|---|---|
| 17 Cavendish Close | £ 550,000 | 0.04 KM |
| 6 Cavendish Close | £ 331,000 | 0.04 KM |
| 11 Cavendish Close | £ 485,000 | 0.04 KM |
| 5 Cavendish Close | £ 288,950 | 0.04 KM |
| 3 Cavendish Close | £ 321,000 | 0.04 KM |