Dexters says ..
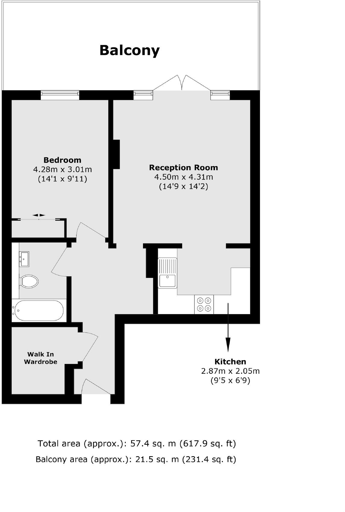
This one-bedroom, third floor apartment, is located in the attractive 'art-deco' style building, just a short distance from Spitalfields Market. Located on the fourth floor, the apartment benefits from a large private roof terrace with views of the City, an open plan kitchen/living room and a lar...
Property Oracle says ..
Therefore, we give this property 6 / 10. *Disclaimer: This is our option and does constitute a recommendation or financial advice. Do your own research. *
- Price
- 6
- Condition
- 8
- Location
- 8
- Land
- 3
- Bedrooms
- 1
- Bathrooms
- 1
- Sqft (est)
- 617.85
The heatmap indicates the level of crime in the area. The color of the heatmap indicates the crime severity and recency.
Metrics Year-on-Year
- Average area value
- 650,000.00 £Decreased by 4.52 %
- Est sale value
- 571,511.25 £Increased by 11.04 %
- Average area rental value
- 2,512.00 £/moIncreased by 3.16 %
- Est letting value
- 1,853.55 £/moIncreased by 50.00 %
- Est rental Yield
- 4.64 %Increased by 8.16 %
- Crime Rate
- 5.00 %Unchanged by 0.00 %
from 680,754.00 £
from 514,669.05 £
from 2,435.00 £/mo
from 1,235.70 £/mo
from 4.29 %
from 5.00 %
Agent Activity
Dexters created the listing.
Nearby Schools
| Name | Type | Ofsted | Distance |
|---|---|---|---|
| The Aldgate School | Voluntary Aided School | Outstanding | 0.40 KM |
| City Of London Child And Family Centre At The Aldgate School | Children's Centre | 0.40 KM | |
| Christ Church Cofe School | Voluntary Aided School | Good | 0.48 KM |
| David Game College | Other Independent School | Outstanding | 0.48 KM |
| The Complete Works | Other Independent School | Good | 0.54 KM |
Images
Nearby Streets
| Name | Average Price | Average Sqft | Distance |
|---|---|---|---|
| Tenter Ground | £ 0 | 0 | 0.00 KM |
| Gravel Lane | £ 0 | 0 | 0.00 KM |
| Artillery Passage | £ 0 | 0 | 0.00 KM |
| The Avenue | £ 0 | 0 | 0.00 KM |
| Spitalfields Market | £ 0 | 0 | 0.00 KM |
Nearby Transport
| Name | NLC | TLC | Distance |
|---|---|---|---|
| Liverpool Street | 6965 | LST | 0.62 KM |
| Shoreditch High Street | 1024 | SDC | 0.70 KM |
| Fenchurch Street | 7490 | FST | 0.70 KM |
| Moorgate | 6005 | MOG | 1.45 KM |
| Hoxton | 1023 | HOX | 1.60 KM |
Nearby Listings
| Address | Price | Type | Score | Distance |
|---|---|---|---|---|
| Leyden Street, Aldgate | £ 625,000 | BUY | 6 / 10 | 0.00 KM |
| Leyden Street, Aldgate | £ 775,000 | BUY | 6 / 10 | 0.00 KM |
| St Clements House, 11 Leyden Street, London, E1 | £ 775,000 | BUY | 5 / 10 | 0.01 KM |
| Cobb Street, London, E1 | £ 520,000 | BUY | Unknown | 0.03 KM |
| Leyden Street, Spitalfields, London, E1 | £ 30,000 | BUY | 6 / 10 | 0.04 KM |
Nearby Properties
| Address | Price | Distance |
|---|---|---|
| 17b Wentworth Street | £ 585,000 | 0.07 KM |
| 11 Wentworth Street | £ 1,100,000 | 0.07 KM |
| 19 Wentworth Street | £ 1,330,000 | 0.07 KM |
| 5 Cobb Street | £ 980,000 | 0.08 KM |
| 70 Middlesex Street | £ 550,000 | 0.11 KM |