Sunny Bank Road, Mirfield, WF14
By Trust Sales & Lettings
£ 245,000
Reviews
3 out of 5 stars
Trust Sales & Lettings says ..
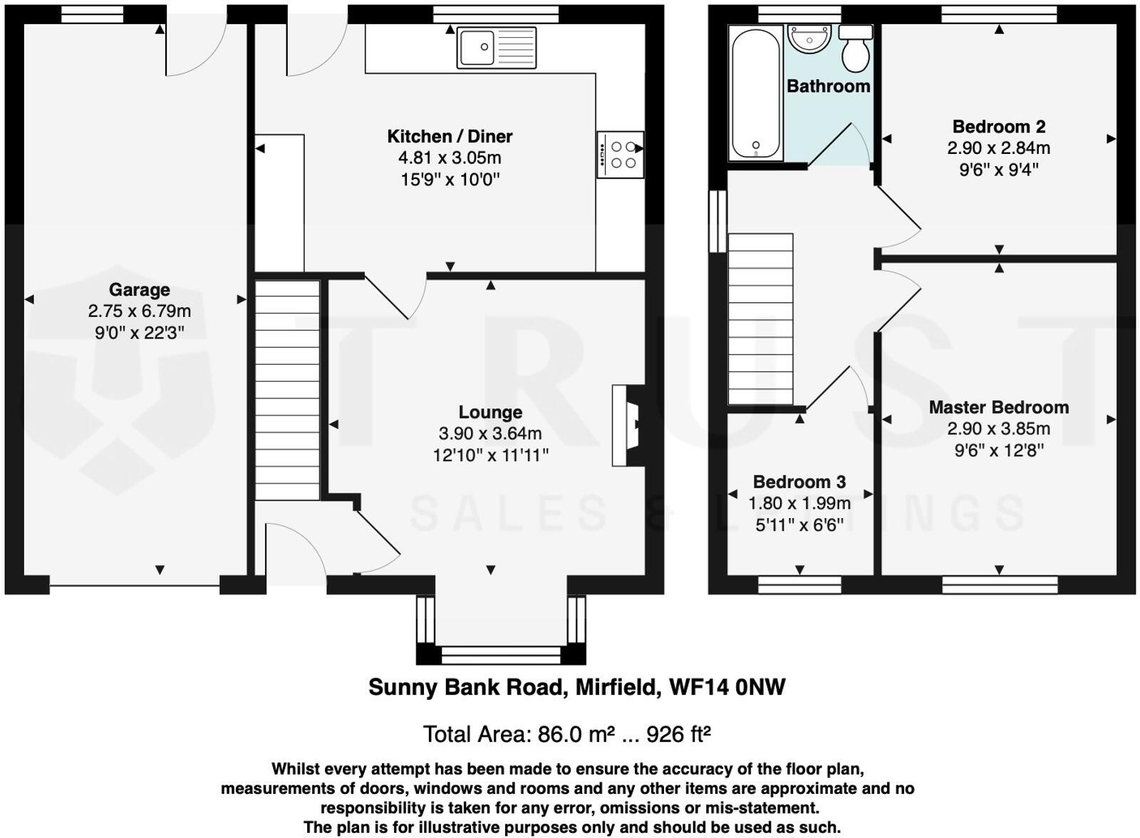
A fantastic opportunity for first-time buyers! This 3-bed semi-detached house features modern comforts, extended driveway, stylish kitchen and bathroom, low-maintenance garden. Ideal location close to amenities and schools. A blend of comfort and convenience!
Property Oracle says ..
This is a well-presented three-bedroom semi-detached property in Mirfield. The property benefits from a modern kitchen and bathroom, a garden, and off-street parking. The property is located close to schools and transportation links, making it an ideal family home.
Therefore, we give this property 7 / 10. *Disclaimer: This is our option and does constitute a recommendation or financial advice. Do your own research. *
- Price
- 7
- Condition
- 8
- Location
- 7
- Land
- 6
- Bedrooms
- 3
- Bathrooms
- 1
- Sqft (est)
- 926.00
The heatmap indicates the level of crime in the area. The color of the heatmap indicates the crime severity and recency.
Metrics Year-on-Year
- Average area value
- 344,993.00 £Increased by 17.80 %
- Est sale value
- 248,168.00 £Increased by 1.13 %
- Average area rental value
- 1,042.00 £/moIncreased by 19.91 %
- Est letting value
- 0.00 £/mo
- Est rental Yield
- 3.62 %Increased by 1.69 %
- Crime Rate
- 3.00 %Unchanged by 0.00 %
Agent Activity
Trust Sales & Lettings created the listing.
Nearby Schools
| Name | Type | Ofsted | Distance |
|---|---|---|---|
| Old Bank Academy | Academy Sponsor Led | 0.34 KM | |
| Mirfield Children'S Centre | Children's Centre | 0.46 KM | |
| Crossley Fields Junior And Infant School | Community School | Good | 0.67 KM |
| The Mirfield Free Grammar | Academy Converter | Good | 0.94 KM |
| Castle Hall Academy | Academy Converter | 1.19 KM |
Images
Nearby Streets
| Name | Average Price | Average Sqft | Distance |
|---|---|---|---|
| Wellhouse | £ 0 | 0 | 0.00 KM |
| Over Hall Close | £ 0 | 0 | 0.00 KM |
| Fernhurst Crescent | £ 0 | 0 | 0.00 KM |
| Norman Road | £ 0 | 0 | 0.00 KM |
| Fernhurst Close | £ 0 | 0 | 0.00 KM |
Nearby Transport
| Name | NLC | TLC | Distance |
|---|---|---|---|
| Mirfield | 8518 | MIR | 1.99 KM |
| Ravensthorpe | 8519 | RVN | 4.55 KM |
| Deighton | 8441 | DHN | 6.77 KM |
| Dewsbury | 8326 | DEW | 6.78 KM |
| Batley | 8484 | BTL | 8.23 KM |
Nearby Listings
| Address | Price | Type | Score | Distance |
|---|---|---|---|---|
| Sunny Bank Road, Mirfield, WF14 | £ 245,000 | BUY | 7 / 10 | 0.00 KM |
| Sunny Bank Avenue, Mirfield | £ 199,950 | BUY | 7 / 10 | 0.07 KM |
| Sunny Bank Grove, Mirfield, WF14 | £ 269,995 | BUY | 7 / 10 | 0.09 KM |
| Robin Royd Grove, Mirfield | £ 215,000 | BUY | 7 / 10 | 0.12 KM |
| Plot 5, Old Bank Road, Mirfield, WF14 0HY | £ 340,000 | BUY | 7 / 10 | 0.15 KM |
Nearby Properties
| Address | Price | Distance |
|---|---|---|
| 36 Sunny Bank Avenue | £ 136,000 | 0.02 KM |
| 13 Sunny Bank Avenue | £ 204,000 | 0.02 KM |
| 14 Sunny Bank Avenue | £ 115,000 | 0.02 KM |
| 16 Sunny Bank Avenue | £ 117,000 | 0.02 KM |
| 15 Sunny Bank Avenue | £ 130,000 | 0.02 KM |