Parklands, Evesham, Worcestershire
By Leaders Sales
£ 200,000
Reviews
3 out of 5 stars
Leaders Sales says ..
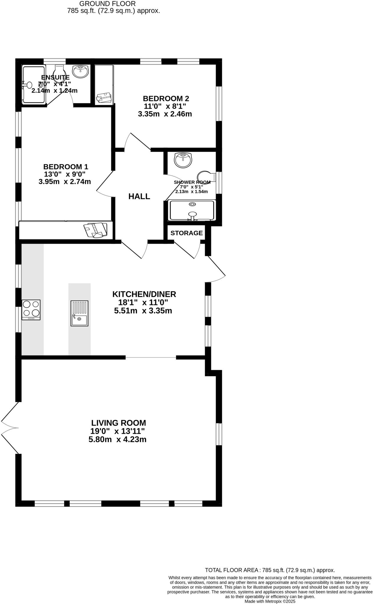
***CHAIN FREE FULLY RESIDENTIAL PARK HOME LOCATED AT PARKLANDS PARK, EVESHAM*** This FULLY RESIDENTIAL PARK HOME has a SPACIOUS LOUNGE, KITCHEN/DINER, ENSUITE TO THE MAIN BEDROOM and OFF ROAD PARKING. The property is sold with NO ONWARD CHAIN. The plot that the home will oc...
Property Oracle says ..
This property is a modern, detached home located in Evesham, Worcestershire. The location is reasonably convenient, with a train station approximately 1.9km away and several schools within a 2.5km radius. The property itself appears to be in excellent condition, with modern fixtures and finishes throughout. The plot size is relatively small at 785 sqft. The list price of £200,000 is significantly below the average price for the area (£324,495), and also below the average price per sqft (£238). However, it is important to note that the average sqft for the area is 1360 sqft, significantly larger than this property. Therefore, while the price may seem low compared to average prices, it could be considered reasonable given the smaller size of the property.
Therefore, we give this property 7 / 10. *Disclaimer: This is our option and does constitute a recommendation or financial advice. Do your own research. *
- Price
- 8
- Condition
- 10
- Location
- 7
- Land
- 3
- Bedrooms
- 2
- Bathrooms
- 2
- Sqft (est)
- 705.00
- Lot (est)
- 785.00
The heatmap indicates the level of crime in the area. The color of the heatmap indicates the crime severity and recency.
Metrics Year-on-Year
- Average area value
- 301,250.00 £Increased by 7.10 %
- Est sale value
- 250,980.00 £Decreased by 2.20 %
- Average area rental value
- 964.00 £/moDecreased by 5.21 %
- Est letting value
- 705.00 £/moUnchanged by 0.00 %
- Est rental Yield
- 3.84 %Decreased by 11.52 %
- Crime Rate
- 1.00 %Unchanged by 0.00 %
Agent Activity
Leaders Sales created the listing.
Nearby Schools
| Name | Type | Ofsted | Distance |
|---|---|---|---|
| St Andrew'S Ce School | Voluntary Controlled School | Good | 0.51 KM |
| St Mary'S Catholic Primary School | Academy Converter | Good | 1.91 KM |
| Swan Lane First School | Community School | Good | 1.98 KM |
| St Egwin'S Cofe Middle School | Voluntary Controlled School | Good | 2.06 KM |
| Prince Henry'S High School | Academy Converter | Outstanding | 2.49 KM |
Images
Nearby Streets
| Name | Average Price | Average Sqft | Distance |
|---|---|---|---|
| Churchill Court | £ 120,000 | 0 | 0.00 KM |
| Rosemary Close | £ 0 | 0 | 0.00 KM |
| Pershore Road | £ 0 | 0 | 0.00 KM |
| Abbot Chyryton's Place | £ 0 | 0 | 0.00 KM |
| The Mews | £ 360,000 | 0 | 0.00 KM |
Nearby Transport
| Name | NLC | TLC | Distance |
|---|---|---|---|
| Evesham | 4740 | EVE | 1.89 KM |
Nearby Listings
| Address | Price | Type | Score | Distance |
|---|---|---|---|---|
| Parklands, Evesham, Worcestershire | £ 200,000 | BUY | 7 / 10 | 0.00 KM |
| Parklands, Evesham | £ 135,000 | BUY | 7 / 10 | 0.00 KM |
| Parklands, Evesham, Worcestershire, WR11 | £ 75,000 | BUY | 6 / 10 | 0.00 KM |
| Parklands | £ 85,000 | BUY | 6 / 10 | 0.00 KM |
| School Road, Evesham | £ 155,000 | BUY | 6 / 10 | 0.14 KM |
Nearby Properties
| Address | Price | Distance |
|---|---|---|
| 9 Clarks Hill Rise | £ 122,950 | 0.14 KM |
| 24 Clarks Hill Rise | £ 129,950 | 0.14 KM |
| 16 Clarks Hill Rise | £ 334,995 | 0.14 KM |
| 1 Clarks Hill Rise | £ 200,000 | 0.14 KM |
| 28 Clarks Hill Rise | £ 249,000 | 0.14 KM |