Gascoigne Halman says ..
Set in generous grounds including mature gardens and a detached garage, this beautifully appointed period end terrace offers buyers a deceptively spacious interior over three floors that will suit a variety of prospective buyers. Situated at the far end of a private unadopted road the property al...
Property Oracle says ..
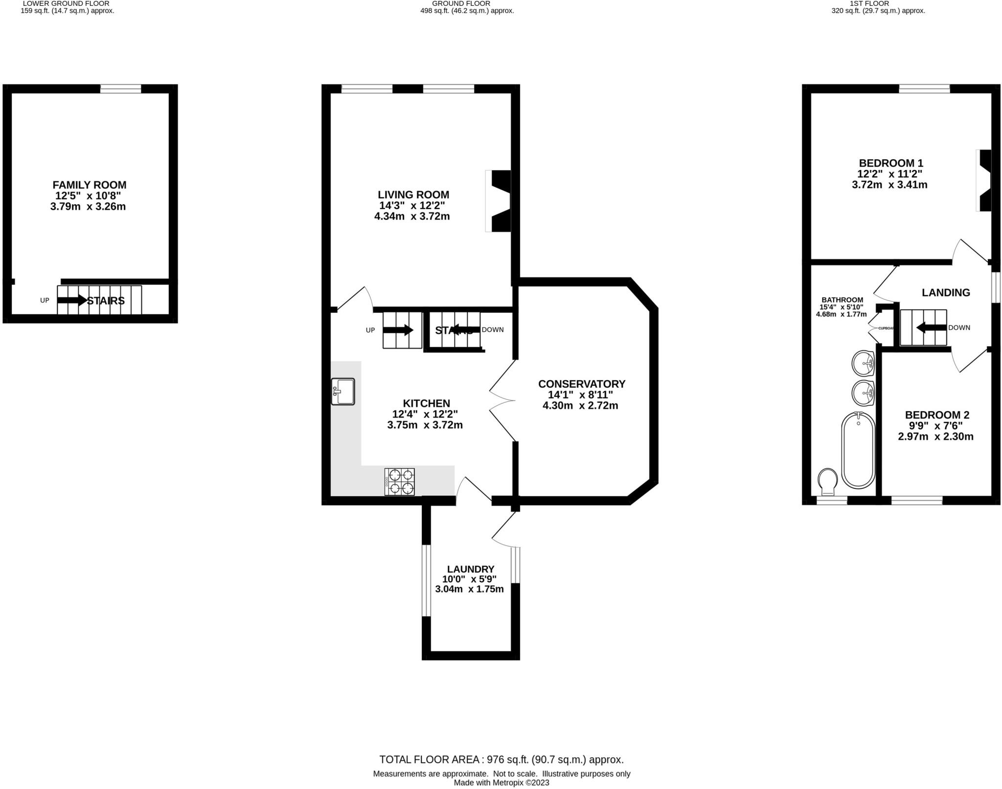
This end-of-terrace property in Dinting, Glossop, offers a blend of modern living within a traditional setting. The house features two bedrooms and one bathroom, with a total square footage of 976.29 sqft. One of the standout features of this property is its extensive garden, complete with a patio, shed, and greenhouse. The interior is well-maintained, with a modern kitchen and bathroom. The property is located near local schools and transportation, making it a convenient location for families and commuters. While the list price is above the average for the area, the condition and land may justify the premium.
Therefore, we give this property 7 / 10. *Disclaimer: This is our option and does constitute a recommendation or financial advice. Do your own research. *
- Price
- 6
- Condition
- 8
- Location
- 7
- Land
- 9
- Bedrooms
- 2
- Bathrooms
- 1
- Sqft (est)
- 976.29
The heatmap indicates the level of crime in the area. The color of the heatmap indicates the crime severity and recency.
Metrics Year-on-Year
- Average area value
- 334,167.00 £Increased by 24.23 %
- Est sale value
- 250,906.53 £Decreased by 19.44 %
- Average area rental value
- 1,252.00 £/moIncreased by 4.33 %
- Est letting value
- 0.00 £/moDecreased by 100.00 %
- Est rental Yield
- 4.50 %Decreased by 15.89 %
- Crime Rate
- 2.00 %Unchanged by 0.00 %
Agent Activity
Gascoigne Halman created the listing.
Nearby Schools
| Name | Type | Ofsted | Distance |
|---|---|---|---|
| Dinting Church Of England Voluntary Aided Primary School | Voluntary Aided School | Good | 0.35 KM |
| Simmondley Primary School | Community School | Good | 0.88 KM |
| Glossopdale School And Sixth Form | Academy Sponsor Led | 1.25 KM | |
| Gamesley Early Excellence Centre | Local Authority Nursery School | Outstanding | 1.37 KM |
| Gamesley Primary School | Academy Sponsor Led | 1.40 KM |
Images
Nearby Streets
| Name | Average Price | Average Sqft | Distance |
|---|---|---|---|
| Glossop Road | £ 150,000 | 0 | 0.00 KM |
| Dinting Road | £ 0 | 0 | 0.00 KM |
| Shaw Lane | £ 0 | 0 | 0.00 KM |
| Cottage Court | £ 169,950 | 0 | 0.00 KM |
| Rowsley Mews | £ 0 | 0 | 0.00 KM |
Nearby Transport
| Name | NLC | TLC | Distance |
|---|---|---|---|
| Dinting | 2893 | DTG | 0.54 KM |
| Hadfield | 2896 | HDF | 1.91 KM |
| Glossop | 2895 | GLO | 2.69 KM |
| Broadbottom | 2892 | BDB | 4.80 KM |
| Hattersley | 2604 | HTY | 7.40 KM |
Nearby Listings
| Address | Price | Type | Score | Distance |
|---|---|---|---|---|
| Adderley Place, Glossop | £ 375,000 | BUY | 7 / 10 | 0.00 KM |
| The Peaks, Glossop | £ 355,000 | BUY | 7 / 10 | 0.04 KM |
| Dinting Vale, Dinting , Glossop | £ 179,950 | BUY | 6 / 10 | 0.23 KM |
| Dinting Vale, Glossop | £ 125,000 | BUY | 5 / 10 | 0.25 KM |
| Kestrel View, Glossop | £ 499,950 | BUY | 8 / 10 | 0.37 KM |
Nearby Properties
| Address | Price | Distance |
|---|---|---|
| Avening | £ 695,000 | 0.03 KM |
| 4 Adderley Place | £ 158,163 | 0.03 KM |
| 5 Adderley Place | £ 195,000 | 0.03 KM |
| 2 Adderley Place | £ 162,000 | 0.03 KM |
| 3 Adderley Place | £ 180,000 | 0.03 KM |