Glyn Dulais Court, Crynant, Neath
By Peter Alan
£ 225,000
Reviews
3 out of 5 stars
Peter Alan says ..
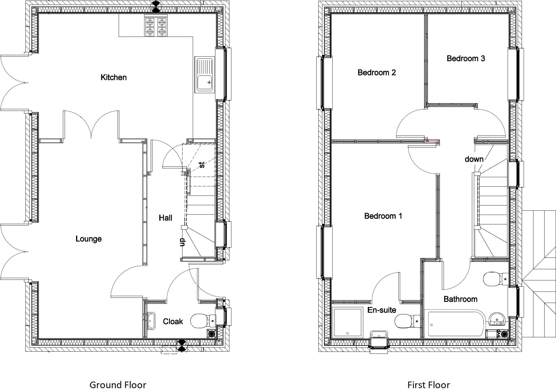
**NEW-BUILD HOME** A delightful 3 bedroom home. locate in an exclusive new development. This detached property perfect for a growing family, with accommodation comprising; hallway, cloakroom/wc, lounge, kitchen/diner, 3 bedrooms, en-suite, family bathroom, off road parking & private rear garden.
Property Oracle says ..
This property is a new-build, three-bedroom detached house located in Crynant, Neath Port Talbot. The photos showcase a modern and well-presented interior with contemporary fixtures and finishes. The kitchen and bathrooms appear to be newly fitted and in excellent condition. The property also boasts a private rear garden, although the exact size is not specified.
The location in Crynant offers a balance between rural tranquility and proximity to Neath town, providing access to a range of amenities. A primary school is within walking distance, which is beneficial to families. The absence of detailed Ofsted reports for nearby schools and limited information on the nearby transportation options (beyond the distance to Neath Train Station) makes a complete assessment of the location challenging. However, based on available information, the location is deemed reasonable, particularly for those seeking a balance between quiet living and access to town amenities.
The asking price seems to be consistent with other similar properties in the area. Due to the absence of square footage data for the property and nearby comparable properties, a definitive conclusion on the value for money cannot be precisely established. However, considering the condition and apparent quality of the build, the price point appears to be within the reasonable range for a new-build detached house in this location. Further price comparison data would allow for a more accurate assessment.
Overall, this new-build property presents a good option for families and individuals seeking a modern, well-maintained home in a semi-rural location within a reasonable commute to Neath. The lack of precise data on plot size and local market pricing per sqft limit the scope of analysis somewhat.
Therefore, we give this property 6 / 10. *Disclaimer: This is our option and does constitute a recommendation or financial advice. Do your own research. *
- Price
- 7
- Condition
- 9
- Location
- 7
- Land
- 4
- Bedrooms
- 3
- Bathrooms
- 2
- Sqft (est)
- 780.00
The heatmap indicates the level of crime in the area. The color of the heatmap indicates the crime severity and recency.
Metrics Year-on-Year
- Average area value
- 406,364.00 £Increased by 51.98 %
- Est sale value
- 256,620.00 £Increased by 29.02 %
- Average area rental value
- 1,294.00 £/moIncreased by 17.32 %
- Est letting value
- 780.00 £/moUnchanged by 0.00 %
- Est rental Yield
- 3.82 %Decreased by 22.83 %
- Crime Rate
- 99.00 %Unchanged by 0.00 %
Agent Activity
Peter Alan created the listing.
Nearby Schools
| Name | Type | Ofsted | Distance |
|---|---|---|---|
| Creunant Primary School | Welsh Establishment | 0.67 KM | |
| Ysgol Maes-Y-Dderwen | Welsh Establishment | 5.05 KM | |
| Cilffriw Primary School | Welsh Establishment | 5.62 KM | |
| Blaendulais Primary School | Welsh Establishment | 6.05 KM | |
| Ygg Blaendulais | Welsh Establishment | 6.05 KM |
Images
Nearby Streets
| Name | Average Price | Average Sqft | Distance |
|---|---|---|---|
| The Crescent | £ 185,000 | 0 | 0.00 KM |
| Heol Berllan | £ 0 | 0 | 0.00 KM |
Nearby Transport
| Name | NLC | TLC | Distance |
|---|---|---|---|
| Neath | 4216 | NTH | 9.57 KM |
Nearby Listings
| Address | Price | Type | Score | Distance |
|---|---|---|---|---|
| Glyn Dulais Court, Crynant, Neath | £ 225,000 | BUY | 6 / 10 | 0.00 KM |
| Glyn Dulais Court, Crynant, Neath | £ 225,000 | BUY | 6 / 10 | 0.00 KM |
| Glyn Dulais Court, Crynant, Neath | £ 225,000 | BUY | 6 / 10 | 0.00 KM |
| Glyn Dulais Court, Crynant, Neath | £ 200,000 | BUY | 5 / 10 | 0.00 KM |
| Glyn Dulais Court, Crynant, Neath | £ 200,000 | BUY | 7 / 10 | 0.00 KM |
Nearby Properties
| Address | Price | Distance |
|---|---|---|
| 2 Mary Street | £ 21,000 | 0.03 KM |
| 4 Mary Street | £ 87,950 | 0.03 KM |
| 8 Mary Street | £ 95,250 | 0.03 KM |
| 1 Mary Street | £ 43,500 | 0.03 KM |
| 9 Mary Street | £ 110,000 | 0.03 KM |