RE
The Mall, Old Town, Swindon
By Resides Swindon
£ 489,995
Reviews
3 out of 5 stars
Resides Swindon says ..
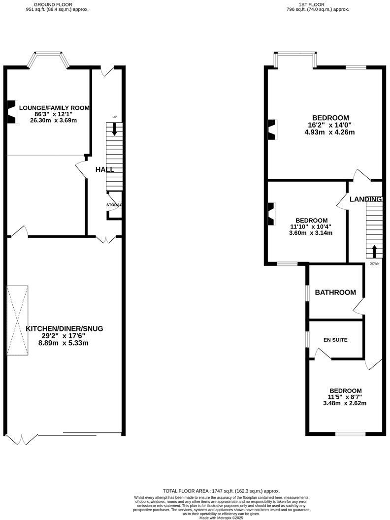
Resides Swindon are delighted to be marketing this much improved three bedroom terrace property located in the popular location 'The Mall', Old Town. The hub of the home is the bespoke 'parlour farm' Kitchen/diner/snug with integrated appliances which include, dishwasher ,washing machine, double ...
Property Oracle says ..
Therefore, we give this property 7 / 10. *Disclaimer: This is our option and does constitute a recommendation or financial advice. Do your own research. *
- Price
- 7
- Condition
- 8
- Location
- 8
- Land
- 7
- Bedrooms
- 3
- Bathrooms
- 2
The heatmap indicates the level of crime in the area. The color of the heatmap indicates the crime severity and recency.
Metrics Year-on-Year
- Average area value
- 364,023.00 £Increased by 8.60 %
- Average area rental value
- 1,137.00 £/moDecreased by 2.15 %
- Est rental Yield
- 3.75 %Decreased by 9.86 %
- Crime Rate
- 2.00 %Unchanged by 0.00 %
from 335,191.00 £
from 1,162.00 £/mo
from 4.16 %
from 2.00 %
Agent Activity
Resides Swindon created the listing.
Nearby Schools
| Name | Type | Ofsted | Distance |
|---|---|---|---|
| The Commonweal School | Academy Converter | Good | 0.07 KM |
| Lethbridge Primary School | Academy Converter | Good | 0.91 KM |
| East Wichel Primary School & Nursery | Community School | Good | 0.92 KM |
| King William Street Church Of England Primary School | Academy Converter | Good | 0.98 KM |
| Robert Le Kyng Primary School | Community School | Good | 1.34 KM |
Images
Nearby Streets
| Name | Average Price | Average Sqft | Distance |
|---|---|---|---|
| Okus Road | £ 385,000 | 0 | 0.00 KM |
| Blackberry Alley | £ 240,000 | 0 | 0.00 KM |
| Bacon Close | £ 0 | 0 | 0.00 KM |
| Bow Court | £ 0 | 0 | 0.00 KM |
| The Mews | £ 0 | 0 | 0.00 KM |
Nearby Transport
| Name | NLC | TLC | Distance |
|---|---|---|---|
| Swindon (Wilts) | 3333 | SWI | 1.77 KM |
Nearby Listings
| Address | Price | Type | Score | Distance |
|---|---|---|---|---|
| The Mall, Old Town, Swindon | £ 489,995 | BUY | 7 / 10 | 0.00 KM |
| The Mall, Old Town, Swindon, SN1 | £ 425,000 | BUY | 8 / 10 | 0.05 KM |
| The Mall, Old Town, Swindon, SN1 | £ 460,000 | BUY | 7 / 10 | 0.06 KM |
| The Mall, Swindon | £ 585,000 | BUY | Unknown | 0.10 KM |
| The Mall, Old Town, Swindon | £ 395,000 | BUY | 7 / 10 | 0.11 KM |
Nearby Properties
| Address | Price | Distance |
|---|---|---|
| 19 The Mall | £ 275,000 | 0.08 KM |
| 55 The Mall | £ 325,000 | 0.08 KM |
| 27 The Mall | £ 193,000 | 0.08 KM |
| 45 The Mall | £ 344,000 | 0.08 KM |
| 41 The Mall | £ 250,000 | 0.08 KM |