Noble Estates says ..
A well presented Victorian house on Marmion Road, currently divided into two spacious flats.
Property Oracle says ..
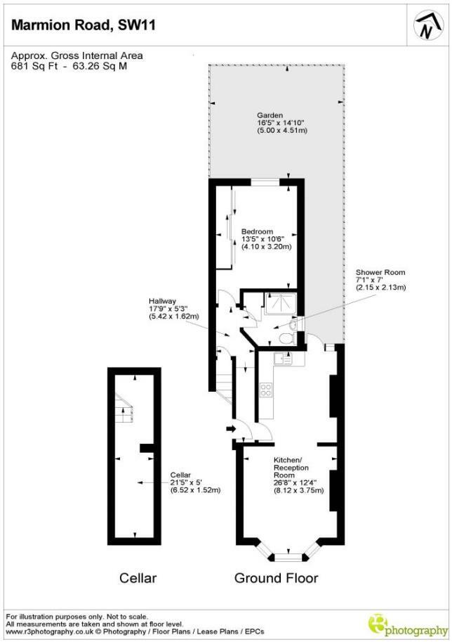
This property is a four-bedroom, three-bathroom house located on Marmion Road in the sought-after SW11 postcode. The exterior photos showcase a typical, well-maintained Victorian terrace house in a desirable residential street. The interior photos reveal a property that is habitable and reasonably well-presented, but could benefit from some modernizations. The kitchen, in particular, looks dated. Similarly, the bathrooms while functional might not be in line with contemporary buyers’ preferences. The property has a small garden area, which is a valuable addition given its urban setting. The list price is in line with market trends in the area; however, the absence of a precise plot size and detailed sales information for comparable properties limits a completely accurate pricing analysis. The proximity to Clapham Common, transport links, and well-regarded schools further enhances the overall attractiveness of the property. Overall, the property is a decent investment for a family seeking a home in a convenient, family-friendly area. Potential buyers might want to factor in costs for some renovations and modernizations to meet their requirements. The property’s lack of detailed information regarding the precise plot size could be considered a drawback.
Therefore, we give this property 6 / 10. *Disclaimer: This is our option and does constitute a recommendation or financial advice. Do your own research. *
- Price
- 7
- Condition
- 7
- Location
- 8
- Land
- 4
- Bedrooms
- 4
- Bathrooms
- 3
- Sqft (est)
- 1,123.00
The heatmap indicates the level of crime in the area. The color of the heatmap indicates the crime severity and recency.
Metrics Year-on-Year
- Average area value
- 592,760.00 £Decreased by 27.61 %
- Est sale value
- 783,854.00 £Decreased by 16.90 %
- Average area rental value
- 2,532.00 £/moDecreased by 6.77 %
- Est letting value
- 2,246.00 £/moUnchanged by 0.00 %
- Est rental Yield
- 5.13 %Increased by 28.89 %
- Crime Rate
- 4.00 %Unchanged by 0.00 %
Agent Activity
Noble Estates created the listing.
Nearby Schools
| Name | Type | Ofsted | Distance |
|---|---|---|---|
| Parkgate House School | Other Independent School | Good | 0.20 KM |
| Belleville Wix Academy | Academy Sponsor Led | Good | 0.26 KM |
| Eaton House The Manor School | Other Independent School | 0.34 KM | |
| Macaulay Church Of England Primary School | Voluntary Aided School | Outstanding | 0.69 KM |
| John Burns Primary School | Community School | Good | 0.69 KM |
Images
Nearby Streets
| Name | Average Price | Average Sqft | Distance |
|---|---|---|---|
| Forth Bridge Road | £ 917,500 | 0 | 0.00 KM |
| Woodmere Close | £ 0 | 0 | 0.00 KM |
| Tipthorpe Road | £ 0 | 0 | 0.00 KM |
| Lavender Hill | £ 0 | 0 | 0.00 KM |
| Beaufoy Road | £ 0 | 0 | 0.00 KM |
Nearby Transport
| Name | NLC | TLC | Distance |
|---|---|---|---|
| Queenstown Road (Battersea) | 5596 | QRB | 1.51 KM |
| Battersea Park | 5420 | BAK | 1.66 KM |
| Wandsworth Road | 5372 | WWR | 1.84 KM |
| Clapham Junction | 5595 | CLJ | 1.84 KM |
| Wandsworth Common | 5395 | WSW | 2.19 KM |
Nearby Listings
| Address | Price | Type | Score | Distance |
|---|---|---|---|---|
| MARMION ROAD, SW11 | £ 1,450,000 | BUY | 6 / 10 | 0.00 KM |
| Marmion Road, London, SW11 | £ 775,000 | BUY | Unknown | 0.00 KM |
| Marmion Road, Clapham, London, SW11 | £ 950,000 | BUY | 7 / 10 | 0.00 KM |
| MARMION ROAD, SW11 | £ 600,000 | BUY | 6 / 10 | 0.00 KM |
| Fontarabia Road, Clapham Common Northside | £ 1,450,000 | BUY | 7 / 10 | 0.06 KM |
Nearby Properties
| Address | Price | Distance |
|---|---|---|
| 58b Marmion Road | £ 660,000 | 0.00 KM |
| 60 Marmion Road | £ 157,000 | 0.00 KM |
| 24 Marmion Road | £ 1,050,000 | 0.00 KM |
| 42 Marmion Road | £ 415,000 | 0.00 KM |
| 30 Marmion Road | £ 486,000 | 0.00 KM |