Heath Rise, Virginia Water, GU25
By Hamptons Sales
£ 3,395,000
Reviews
3 out of 5 stars
Hamptons Sales says ..
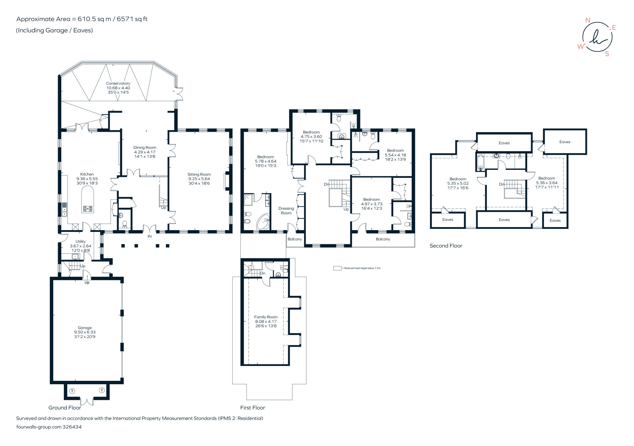
Impressive reception areas with very large kitchen/breakfast room opening to conservatory and dining room, adaptable family room over garage, ample driveway parking for most families, about one third of a mile to shops and station.
Property Oracle says ..
This six-bedroom, five-bathroom property located on Heath Rise in the exclusive Virginia Water area of Surrey presents a compelling opportunity for discerning buyers. Situated on the prestigious Wentworth Estate, this home offers substantial living space and impressive finishes. The large kitchen and multiple reception rooms provide ample areas for both family living and entertaining. The inclusion of a triple garage offers convenient parking. The images reveal a well-maintained interior with contemporary features, including high-quality fixtures and fittings. The property includes a private, spacious garden – though the exact size needs clarification. Overall, it appears to be a comfortable and high-quality family home. The proximity to both Virginia Water station and well-regarded schools is likely to be a strong draw for families. However, the lack of detailed plot size data and further information on the specific construction and age of the property needs clarification, and potential buyers should seek professional assessments before purchasing. The price point appears competitive for the Wentworth Estate, yet precise evaluation requires more specific details regarding comparable properties on the estate, thereby allowing for a more exact comparison against average prices per square foot.
Therefore, we give this property 7 / 10. *Disclaimer: This is our option and does constitute a recommendation or financial advice. Do your own research. *
- Price
- 7
- Condition
- 8
- Location
- 9
- Land
- 7
- Bedrooms
- 6
- Bathrooms
- 5
- Sqft (est)
- 6,571.00
The heatmap indicates the level of crime in the area. The color of the heatmap indicates the crime severity and recency.
Metrics Year-on-Year
- Average area value
- 984,706.00 £Decreased by 55.76 %
- Est sale value
- 7,727,496.00 £Increased by 1.20 %
- Average area rental value
- 3,036.00 £/moDecreased by 44.87 %
- Est letting value
- 19,713.00 £/moIncreased by 50.00 %
- Est rental Yield
- 3.70 %Increased by 24.58 %
- Crime Rate
- 1.00 %Unchanged by 0.00 %
Agent Activity
Hamptons Sales created the listing.
Nearby Schools
| Name | Type | Ofsted | Distance |
|---|---|---|---|
| Trumps Green Infant School | Community School | Outstanding | 1.06 KM |
| St Ann'S Heath Junior School | Community School | Good | 1.33 KM |
| Acs Egham International School | Other Independent School | 1.63 KM | |
| Royal Holloway And Bedford New College | Higher Education Institutions | 2.14 KM | |
| St Cuthbert'S Catholic Primary School, Englefield Green | Voluntary Aided School | Outstanding | 2.19 KM |
Images
Nearby Streets
| Name | Average Price | Average Sqft | Distance |
|---|---|---|---|
| Friars Road | £ 2,450,000 | 0 | 0.00 KM |
| Trotsworth Court | £ 361,667 | 0 | 0.00 KM |
| Fairway | £ 3,000,000 | 0 | 0.00 KM |
Nearby Transport
| Name | NLC | TLC | Distance |
|---|---|---|---|
| Virginia Water | 5676 | VIR | 0.73 KM |
| Egham | 5669 | EGH | 3.48 KM |
| Longcross | 5674 | LNG | 3.82 KM |
| Wraysbury | 5673 | WRY | 6.39 KM |
| Chertsey | 5553 | CHY | 6.74 KM |
Nearby Listings
| Address | Price | Type | Score | Distance |
|---|---|---|---|---|
| Heath Rise, Virginia Water, GU25 | £ 3,395,000 | BUY | 7 / 10 | 0.00 KM |
| Heath Rise, Virginia Water | £ 3,395,000 | BUY | 7 / 10 | 0.04 KM |
| Heath Rise, Virginia Water | £ 4,350,000 | BUY | 8 / 10 | 0.04 KM |
| Heath Rise, Virginia Water, Surrey, GU25 | £ 2,100,000 | BUY | 7 / 10 | 0.07 KM |
| Heath Rise, Wentworth Estate, GU25 | £ 3,750,000 | BUY | 7 / 10 | 0.08 KM |
Nearby Properties
| Address | Price | Distance |
|---|---|---|
| 87 Heath Rise | £ 1,900,000 | 0.04 KM |
| Ambergate | £ 2,250,000 | 0.04 KM |
| Withany | £ 2,425,000 | 0.04 KM |
| Fox Hollow | £ 2,500,000 | 0.04 KM |
| Willows | £ 4,100,000 | 0.04 KM |