Westwood Hill, London
PR

Westwood Hill, London

By Property World

£ 500,000

Reviews

2 out of 5 stars

Property World says ..

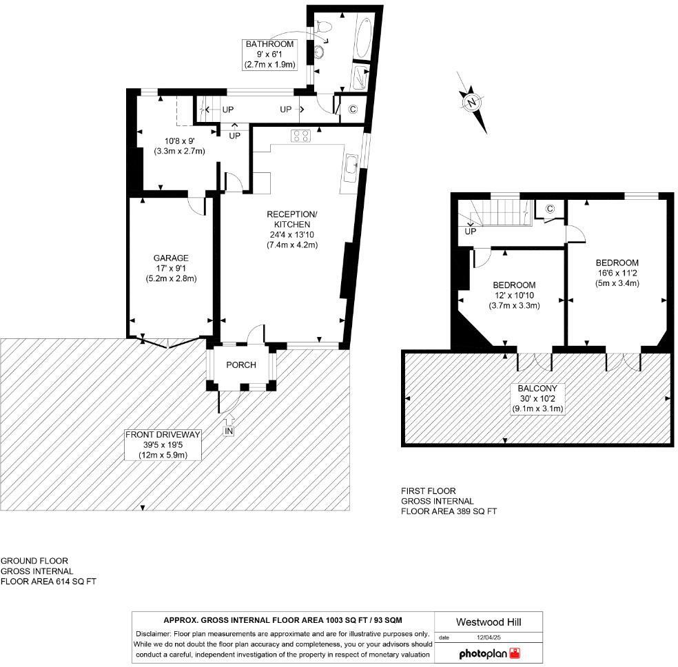
Guide Price: £500,000 - £550,000 / LOCATION, LOCATION, LOCATION. At the very start of Westwood Hill, with a view of historic Cobbs Corner, and minutes from Sydenham mainline station & shops, this rare THREE BEDROOM, FREEHOLD, COACH HOUSE, with a front garden, full width BALCONY, DRIVE...

Property Oracle says ..

This property is located in Sydenham, a suburb of London. The area benefits from good transport links, with Sydenham Overground station being 0.32km away, and several other stations within a 2km radius. There are also a number of well-regarded schools nearby, including St Bartholomews’S Church Of England Primary School and Sydenham High School. The property itself is a house with 3 bedrooms and 1 bathroom, and has a total area of 1003 sqft. The property is in need of significant renovation. The walls and ceilings show significant damage and require repair. The flooring appears to be in reasonable condition, but the overall state of the property suggests a substantial amount of work is required. There is a small garden to the rear of the property, and a garage. The list price is £500,000. The average price for properties in the area is £521,464, with an average price per sqft of £547. Considering the condition of the property and the need for extensive renovation, the list price appears to be reasonable, potentially slightly below average for the area given the property’s condition. However, the lack of plot size information makes a complete assessment of the price difficult.

Therefore, we give this property 5 / 10. *Disclaimer: This is our option and does constitute a recommendation or financial advice. Do your own research. *

Price
6
Condition
3
Location
8
Land
4
Bedrooms
3
Bathrooms
1
Sqft (est)
1,003.00

The heatmap indicates the level of crime in the area. The color of the heatmap indicates the crime severity and recency.

Metrics Year-on-Year

Average area value
541,000.00 £
Increased by 7.25 %
from 504,413.00 £
Est sale value
685,049.00 £
Increased by 51.44 %
from 452,353.00 £
Average area rental value
1,900.00 £/mo
Increased by 1.17 %
from 1,878.00 £/mo
Est letting value
2,006.00 £/mo
Increased by 100.00 %
from 1,003.00 £/mo
Est rental Yield
4.21 %
Decreased by 5.82 %
from 4.47 %
Crime Rate
11.00 %
Unchanged by 0.00 %
from 11.00 %

Agent Activity

  • Property World created the listing.

Nearby Schools

NameTypeOfstedDistance
St Bartholomews'S Church Of England Primary SchoolVoluntary Aided SchoolGood0.48 KM
Sydenham High School GdstOther Independent School0.79 KM
Sydenham SchoolCommunity SchoolGood0.82 KM
Kelvin Grove Primary SchoolCommunity SchoolGood0.87 KM
Kelvin Grove Children'S CentreChildren's Centre0.88 KM

Images

03-9d0cJHPropWorld - 1 Westhood Hill - 7-medium.jp 15-437eJHPropWorld - 1 Westhood Hill - 43-medium.j 05-996dJHPropWorld - 1 Westhood Hill - 13-medium.j 14-38a9JHPropWorld - 1 Westhood Hill - 40-medium.j 12-d8e7JHPropWorld - 1 Westhood Hill - 34-medium.j 02-cc85JHPropWorld - 1 Westhood Hill - 4-medium.jp 10-6ff3JHPropWorld - 1 Westhood Hill - 28-medium.j 06-4189JHPropWorld - 1 Westhood Hill - 16-medium.j 11-0415JHPropWorld - 1 Westhood Hill - 31-medium.j 09-7dc9JHPropWorld - 1 Westhood Hill - 25-medium.j 01-f8e3JHPropWorld - 1 Westhood Hill - 1-medium.jp 04-0a16JHPropWorld - 1 Westhood Hill - 10-medium.j 07-9803JHPropWorld - 1 Westhood Hill - 19-medium.j 13-39f8JHPropWorld - 1 Westhood Hill - 37-medium.j

Nearby Streets

NameAverage PriceAverage SqftDistance
Newman Close £ 000.00 KM
Chulsa Road £ 340,00000.00 KM
Peter's Path £ 375,00000.00 KM
Bradford Close £ 000.00 KM
Bradford Close £ 000.00 KM

Nearby Transport

NameNLCTLCDistance
Sydenham5437SYD0.32 KM
Penge East5072PNE0.93 KM
Penge West5378PNW1.14 KM
Forest Hill5362FOH1.42 KM
Anerley5397ANZ1.93 KM

Nearby Listings

AddressPriceTypeScoreDistance
Westwood Hill, London £ 500,000BUY5 / 100.00 KM
Kirkdale Corner, Westwood Hill, London, SE26 £ 250,000BUYUnknown0.07 KM
Kirkdale, Sydenham, London, SE26 £ 635,000BUY7 / 100.07 KM
Kirkdale, London, SE26 £ 525,000BUYUnknown0.07 KM
Kirkdale Corner, Westwood Hill, London, SE26 £ 400,000BUY5 / 100.08 KM

Nearby Properties

AddressPriceDistance
1 Westwood Hill £ 222,5000.05 KM
228 Kirkdale £ 445,0000.07 KM
206 Kirkdale £ 173,0000.07 KM
251 Kirkdale £ 320,0000.11 KM
249a Kirkdale £ 387,0000.11 KM