Dexters says ..
A rarely available and truly stunning double fronted Victorian home nestled away in the heart of the Tooting with exceptional accommodation extending to just under 1400 sq'ft which offers off street parking and a large south facing garden.
Property Oracle says ..
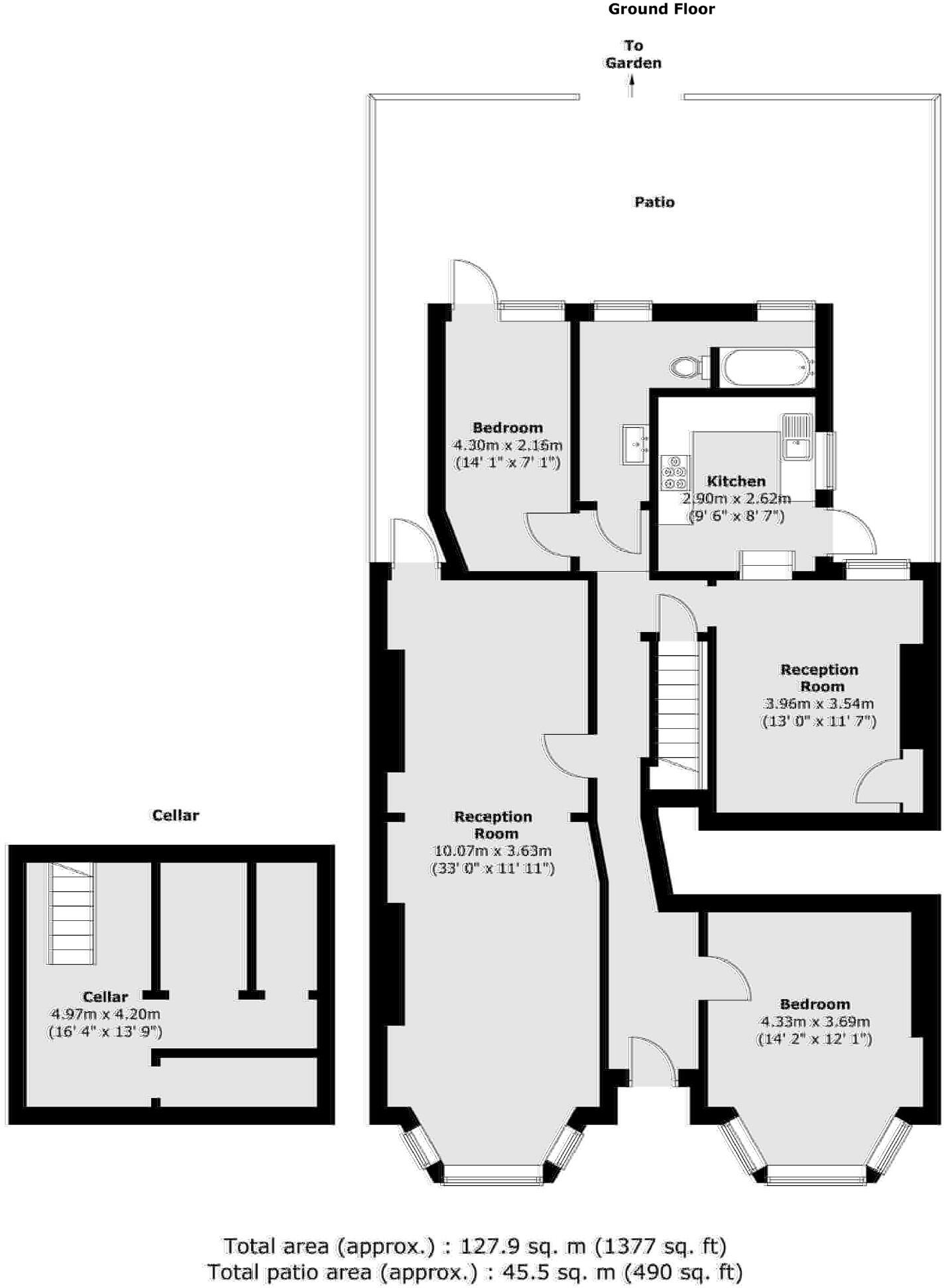
This is a two-bedroom maisonette located on Longley Road in Tooting, London. Marketed by Dexters, the property has a list price of £725,000 and offers 1,376.70 sqft of living space. The property features two bathrooms and is situated in the Graveney locality. Nearby, there are several schools, including Sellincourt Primary School and St Boniface RC Primary School. Transportation links include Tooting Station, approximately 1.07 KM away. The property appears to be in good condition, with a modern kitchen and a well-maintained garden. While the price is slightly above the local average, the property’s size and location make it a desirable option.
Therefore, we give this property 6 / 10. *Disclaimer: This is our option and does constitute a recommendation or financial advice. Do your own research. *
- Price
- 6
- Condition
- 7
- Location
- 7
- Land
- 7
- Bedrooms
- 2
- Bathrooms
- 2
- Sqft (est)
- 1,376.70
The heatmap indicates the level of crime in the area. The color of the heatmap indicates the crime severity and recency.
Metrics Year-on-Year
- Average area value
- 685,278.00 £Increased by 17.39 %
- Est sale value
- 768,198.60 £Decreased by 18.30 %
- Average area rental value
- 2,413.00 £/moDecreased by 6.91 %
- Est letting value
- 1,376.70 £/moDecreased by 66.67 %
- Est rental Yield
- 4.23 %Decreased by 20.64 %
- Crime Rate
- 1.00 %Unchanged by 0.00 %
Agent Activity
Dexters created the listing.
Nearby Schools
| Name | Type | Ofsted | Distance |
|---|---|---|---|
| Sellincourt Primary School | Community School | Good | 0.27 KM |
| St George'S Hospital Medical School | Higher Education Institutions | 0.72 KM | |
| St Boniface Rc Primary School | Voluntary Aided School | Outstanding | 0.81 KM |
| Singlegate Primary School | Community School | Outstanding | 0.83 KM |
| Gatton (Va) Primary School | Voluntary Aided School | Outstanding | 0.96 KM |
Images
Nearby Streets
| Name | Average Price | Average Sqft | Distance |
|---|---|---|---|
| Douglas Court | £ 0 | 0 | 0.00 KM |
| Watson Close | £ 375,000 | 0 | 0.00 KM |
| Laurel Close | £ 0 | 0 | 0.00 KM |
| Holmbury Court | £ 0 | 0 | 0.00 KM |
| North Place | £ 0 | 0 | 0.00 KM |
Nearby Transport
| Name | NLC | TLC | Distance |
|---|---|---|---|
| Tooting | 5389 | TOO | 1.07 KM |
| Haydons Road | 5289 | HYR | 2.04 KM |
| Mitcham Eastfields | 5069 | MTC | 2.40 KM |
| Wandsworth Common | 5395 | WSW | 2.78 KM |
| Earlsfield | 5584 | EAD | 2.92 KM |
Nearby Listings
| Address | Price | Type | Score | Distance |
|---|---|---|---|---|
| Longley Road, Tooting | £ 725,000 | BUY | 6 / 10 | 0.00 KM |
| Longley Road, London, SW17 | £ 315,000 | BUY | 5 / 10 | 0.00 KM |
| Longley Road, Tooting, SW17 | £ 460,000 | BUY | 6 / 10 | 0.01 KM |
| Longley Road, London, SW17 | £ 750,000 | BUY | Unknown | 0.01 KM |
| Longley Road, Tooting | £ 415,000 | BUY | 7 / 10 | 0.03 KM |
Nearby Properties
| Address | Price | Distance |
|---|---|---|
| 36 Longley Road | £ 303,000 | 0.00 KM |
| 2 Longley Road | £ 106,000 | 0.00 KM |
| 10 Longley Road | £ 662,500 | 0.00 KM |
| 26 Longley Road | £ 250,000 | 0.00 KM |
| 50a Longley Road | £ 650,000 | 0.00 KM |