Jonathan Cunliffe says ..
For sale for the first time in 60 years, an extraordinary period house set in just under 6 acres in a romantic and tranquil waterfront setting on the Truro River at the upper reaches of the Fal Estuary
Property Oracle says ..
This is a substantial detached property located in a sought-after waterfront location in Cornwall. The house offers significant square footage and boasts extensive gardens and grounds. While the property benefits from its prime location and period features, some areas require renovation. The price per square foot is lower than the local average, but the overall list price reflects the property’s size, location, and potential.
Therefore, we give this property 6 / 10. *Disclaimer: This is our option and does constitute a recommendation or financial advice. Do your own research. *
- Price
- 3
- Condition
- 6
- Location
- 8
- Land
- 9
- Bedrooms
- 7
- Bathrooms
- 0
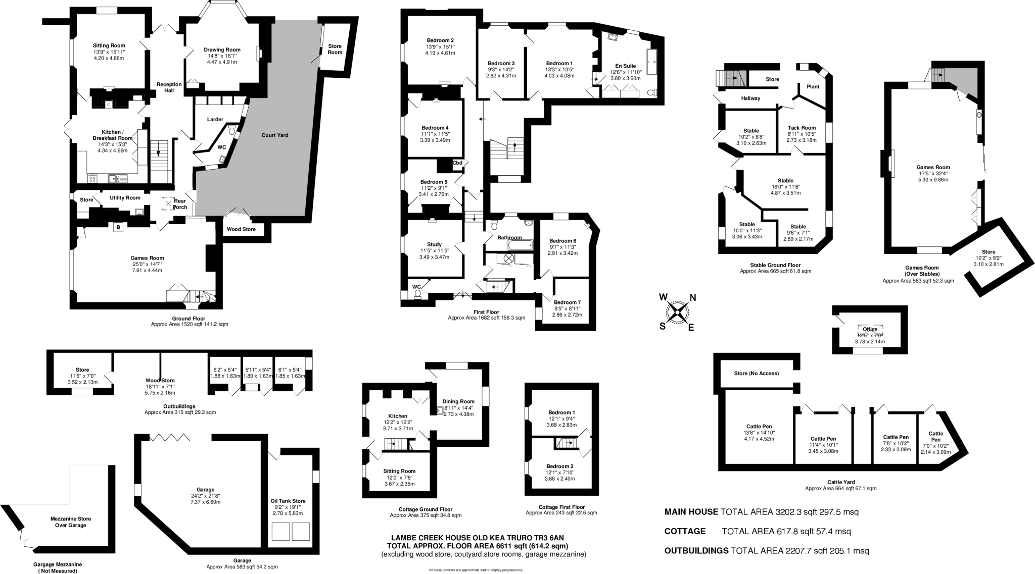
- Sqft (est)
- 13,907.00
The heatmap indicates the level of crime in the area. The color of the heatmap indicates the crime severity and recency.
Metrics Year-on-Year
- Average area value
- 380,500.00 £Decreased by 7.95 %
- Est sale value
- 4,241,635.00 £Increased by 0.66 %
- Average area rental value
- 1,550.00 £/moIncreased by 31.91 %
- Est letting value
- 13,907.00 £/mo
- Est rental Yield
- 4.89 %Increased by 43.40 %
- Crime Rate
- 0.00 %
Agent Activity
Jonathan Cunliffe created the listing.
Nearby Schools
| Name | Type | Ofsted | Distance |
|---|---|---|---|
| Truro School | Other Independent School | 2.84 KM | |
| Trelander Community & Children'S Centre | Children's Centre Linked Site | 2.86 KM | |
| Tregolls School - An Academy | Academy Sponsor Led | Requires improvement | 3.06 KM |
| Penair School | Academy Converter | Good | 3.12 KM |
| Truro High School | Other Independent School | 3.65 KM |
Images
Nearby Streets
| Name | Average Price | Average Sqft | Distance |
|---|---|---|---|
| Park Farm | £ 0 | 0 | 0.00 KM |
Nearby Transport
| Name | NLC | TLC | Distance |
|---|---|---|---|
| Truro | 3540 | TRU | 4.84 KM |
| Perranwell | 3528 | PRW | 9.59 KM |
Nearby Listings
| Address | Price | Type | Score | Distance |
|---|---|---|---|---|
| Old Kea, nr Truro | £ 3,000,000 | BUY | 6 / 10 | 0.00 KM |
| Malpas, Truro, Cornwall, TR1 | £ 450,000 | BUY | 7 / 10 | 0.41 KM |
| Malpas, Truro | £ 925,000 | BUY | 7 / 10 | 0.43 KM |
| Malpas, Truro, Cornwall | £ 1,500,000 | BUY | 7 / 10 | 0.48 KM |
| Malpas, Truro | £ 1,195,000 | BUY | 7 / 10 | 0.48 KM |
Nearby Properties
| Address | Price | Distance |
|---|---|---|
| 4 Victoria Quay | £ 295,000 | 0.51 KM |
| 3 Victoria Quay | £ 575,000 | 0.51 KM |
| 11 Victoria Quay | £ 310,000 | 0.51 KM |
| 16 Victoria Quay | £ 320,000 | 0.51 KM |
| 22 Victoria Quay | £ 465,000 | 0.51 KM |